☆希少な新築計画倉庫☆魚住町西岡
ここに注目!☆ReYZのコメント☆ 広告の内容はプラン例です。 新築につき、借人と打ち合わせの上、建築プランは決定します。また、建物規模により建築協力金が発生する場合があります。 定期借家権10年、更新可能。 ご希望など、お気軽にご相談ください。 オーナー様のご希望によりこちらに掲載していない物件のご紹介も可能です。
この物件の契約期間は 10年間です。
定期借家物件は、賃貸借契約期間満了後、原則として契約の更新ができない物件です。再契約の可否については不動産会社にお問合せください。
| 賃料・費用 |
183万7,000円
(+管理費等 4万4,000円)
坪単価:約1.2万円/坪
敷1,002万円礼551万1,000円(3ヶ月)仲183万7,000円
|
|---|---|
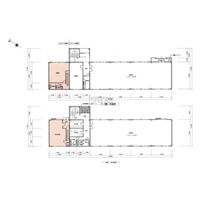
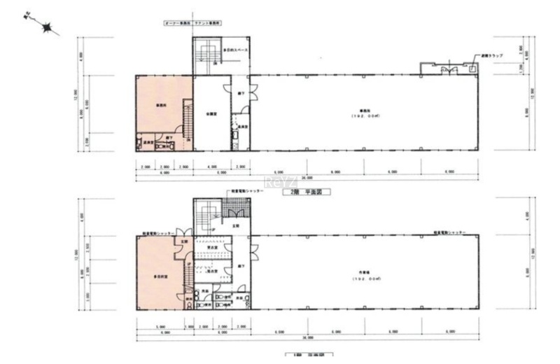
| 専有面積 | 528m² (159.72坪) |
| 住所 | 兵庫県明石市魚住町西岡 (詳細非公開) |
| 交通 | 山陽魚住駅(徒歩4分)|魚住駅(徒歩15分) |
| 階/階建 | 2階 / 2階建 |
| 築年月 | |
| 駐車場 |
【WEB面談可】
空室確認、見学、詳細を知りたい方はこちら!
お電話の際は「連合隊の物件」とお伝えください。
情報掲載期限:あと22日(更新日 2025/12/4)
- 物件写真・概要
- 周辺地図
-
【WEB面談可】
空室確認、見学、詳細を知りたい方はこちら!おすすめポイント
- 駅徒歩5分以内
- 複数路線利用可
交通
- 山陽魚住駅山陽電鉄本線徒歩4分(約320m)
- 魚住駅JR神戸線(神戸~姫路)徒歩15分(約1.2km)
物件概要
所在階/建物の階建 2階 / 地上2階建 主要採光面 構造 鉄骨造 間取り 契約期間 定期借家(10年間) 権利金 住宅保険 出店推奨業種 その他(倉庫) 出店不可業種 土地面積 1149.8m² (347.81坪)引渡し 相談(未着工) 管理人 取引態様 仲介 物件No 479736 設備・特徴 - 複数路線利用可
備考 要望があれば建築や改装のプロの内装相談までワンストップで可能です。※司法書士(見積もり無料)※工務店(請負契約完了までは一切費用がかかりません。)※火災保険(音響機器やレジまで幅広く提案)※オンライン重要事項説明(来店が必要なく、夜でも在宅で契約処理が完了できます。) ※空室でお困りの貸主様すぐに広告打ちますのでご応募お待ちしております。 -
ホームページはこちら兵庫県知事 (2) 第11981号
(株)ReYZ 【WEB面談可】- 加入団体
- (一社)兵庫県宅地建物取引業協会
- 保証協会
- (公社)全国宅地建物取引業保証協会
- 公正取引協議会
- (公社)近畿地区不動産公正取引協議会
※連合隊は物件情報の精度向上に努めています:「物件情報に誤りがある」「成約済みである」などお気付きの点がございましたらこちらよりご連絡ください。
写真枚数:5枚