八幡通|神戸市役所向かいのオフィスビル
ここに注目!清潔感あるオフィスビル・神戸市役所向かいの好立地 / 地下通路を通って各線サンノミヤ駅へ行ける便利なアクセス / 共用部分に流し台・男女別トイレあり / ...。..・⁺**・.. ■注》》「①当社以外の不動産業者へ物件情報を持ち出す行為」「②建物の管理者等へ直接取引を持ち掛ける行為」「③情報無断流用・盗用行為」は固くお断りいたします。※不動産業者による同行為は法的措置の対象です
| 賃料・費用 |
45万5,000円
(+管理費等 なし)
坪単価:約1.3万円/坪
敷45万5,000円(1ヶ月)礼91万円(2ヶ月)仲45万5,000円
|
|---|---|
| 専有面積 | 115.71m² (35坪) |
| 住所 | 兵庫県神戸市中央区八幡通 (詳細非公開) |
| 交通 | 三ノ宮駅(徒歩8分)|貿易センター駅(徒歩7分)|神戸三宮駅(徒歩8分) |
| 階/階建 | 9階 |
| 築年月 | 築42年(1984年3月) |
| 駐車場 |
空室確認、見学、詳細を知りたい方はこちら!
お電話の際は「連合隊の物件」とお伝えください。
情報掲載期限:あと27日(更新日 2026/4/4)
- 物件写真・概要
- 周辺地図
-
空室確認、見学、詳細を知りたい方はこちら!
おすすめポイント
- 複数路線利用可
- 24時間セキュリティー
交通
- 三ノ宮駅JR神戸線(大阪~神戸)徒歩8分(約579m)
- 貿易センター駅ポートライナー徒歩7分(約497m)
- 神戸三宮駅阪急神戸本線徒歩8分(約634m)
物件概要
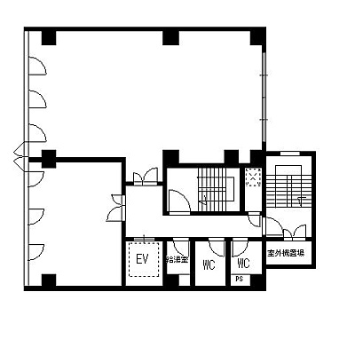
所在階/建物の階建 9階 主要採光面 構造 鉄骨鉄筋コンクリート(SRC)造 間取り 契約期間 2年間 権利金 住宅保険 お問合せください 引渡し 相談 管理人 非常駐 取引態様 仲介 物件No 設備・特徴 - 複数路線利用可
- 幹線道路沿い
- エレベーター
- 照明器具付
- ビルトインエアコン
- 24時間セキュリティー
- 男女別トイレ(共用部)
- 事務所向き
- area さんのみや駅
- area 磯上ポーアイ
- type 快適オフィス
備考 ■物件詳細・内見希望・開業相談・その他ご質問はお気軽に当社スタッフまでお尋ねください ■家賃保証加入が必要な契約です (加入時・更新時に料金は発生いたします / 詳細は当社スタッフまでお尋ねください) .....。.......⁺*..。 〖〇〗詳細問合せ先 / 当社 〖〇〗物件内見申請先 / 当社 〖〇〗物件申込先 / 当社 〖〇〗審査・契約窓口 / 当社 〖〇〗その他ご質問窓口 / 当社 主な周辺施設
- 三菱UFJ銀行三宮支店約136m(徒歩2分)
- 神戸市役所約222m(徒歩3分)
- ジョーシン三宮1ばん館約166m(徒歩3分)
- 神戸市中央区役所約281m(徒歩4分)
- スターバックスコーヒー三宮磯上通店約282m(徒歩4分)
- みずほ銀行神戸支店約213m(徒歩3分)
- 神戸国際会館SOL約213m(徒歩3分)
- 神戸国際会館内郵便局約213m(徒歩3分)
- スターバックスコーヒー神戸国際会館SOL店約321m(徒歩5分)
- 神戸ロフト約232m(徒歩3分)
-
ホームページはこちら
兵庫県知事(4) 第11371号
ライフギャラリー(株)〒651-0094
TEL:078-251-6265
FAX:078-251-6266
営業時間:10:00~19:30
定休日:毎週 水曜
- 加入団体
- (公社)全日本不動産協会
- 保証協会
- (公社)不動産保証協会
- 公正取引協議会
- (公社)近畿地区不動産公正取引協議会
※連合隊は物件情報の精度向上に努めています:「物件情報に誤りがある」「成約済みである」などお気付きの点がございましたらこちらよりご連絡ください。
写真枚数:13枚
八幡通4
フラワーロード(市役所通り)
フラワーロード(市役所通り)








神戸市内事業用テナント物件「探す」「見つける」「お店をOPENする」 ■ 物販SHOP・美容サロン・レストラン・カフェ・健康スタジオ・オフィスなど幅広い業種に対応できるアドバイザー在籍の不動産会社です
■事業用テナント物件の仲介実績続々増加中、当社との取引を経て新しいお店が神戸にたくさん誕生してます☆彡 ■テナント物件や開業に詳しいアドバイザーが在籍する神戸で数少ない経験値を備えた不動産会社なので、初めて開業を目指す個人事業者さんにも優しい対応が可能です ■スケルトン・居抜き・ロードサイド・チェーン店・プライベートサロン・原状回復など専門的な知識が必要な事業用テナントのコトは当社にお任せください