兵庫県庁前|クリニック・オフィスビル (新築)
ここに注目!元町山手・兵庫県庁エリアに医療&オフィス新築ビルが竣工予定 / 先行して募集開始 / 2~4Fはクリニック・5~10Fはオフィス / 天井高2940mm・床荷重180kg/1㎡・電灯31Kva・動力37.5KW・都市ガス50A(共用部まで) / エレベーター1基・非接触ICカードによるオートロック・防犯カメラ・24時間機械警備・宅配BOX / ■お問合せの際に"業種"を詳細にお聞かせいただくと進捗がスムーズです // 必要な設備 (上下水道・電気・ガス・排気など) をお聞かせください..⁺*物件によっては調査してご回答も可能です*⁺..
この物件の契約期間は 5年間です。
定期借家物件は、賃貸借契約期間満了後、原則として契約の更新ができない物件です。再契約の可否については不動産会社にお問合せください。
| 賃料・費用 |
30万8,000円
(+管理費等 なし)
坪単価:約1.8万円/坪
敷112万円礼30万8,000円(1ヶ月)仲30万8,000円
|
|---|---|
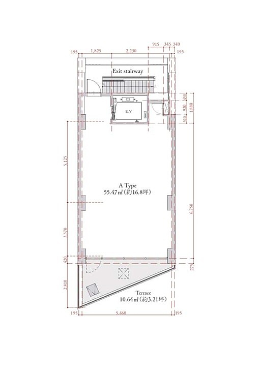
| 専有面積 | 55.47m² (16.77坪) |
| 住所 | 兵庫県神戸市中央区下山手通 (詳細非公開) |
| 交通 | 県庁前駅(徒歩5分)|元町駅(徒歩11分)|花隈駅(徒歩9分) |
| 階/階建 | 3階 |
| 築年月 | 建築中(2026年11月完成予定) |
| 駐車場 |
空室確認、見学、詳細を知りたい方はこちら!
お電話の際は「連合隊の物件」とお伝えください。
新着 情報掲載期限:あと26日(更新日 2026/3/17)
- 物件写真・概要
- 周辺地図
-
空室確認、見学、詳細を知りたい方はこちら!
おすすめポイント
- 駅徒歩5分以内
- 複数路線利用可
- スケルトン
- 24時間セキュリティー
- 出店するなら…この業種がおすすめ!
- 飲食全般(重飲食含む)

- 喫茶・カフェ(軽飲食)

- バー・クラブ・スナック

- 小売・物販

- 美容・健康・介護

- 医療

- 教育・スクール

- 事務所

- アミューズメント

交通
- 県庁前駅神戸市営地下鉄西神・山手線徒歩5分(約362m)
- 元町駅JR神戸線(大阪~神戸)、神戸高速東西線、阪神本線徒歩11分(約878m)
- 花隈駅神戸高速東西線徒歩9分(約656m)
物件概要
所在階/建物の階建 3階 主要採光面 構造 鉄筋コンクリート(RC)造 間取り バルコニー あり契約期間 定期借家(5年間) 権利金 住宅保険 お問合せください 出店推奨業種 医療 出店不可業種 引渡し 2026年11月初旬 管理人 非常駐 取引態様 仲介 物件No 設備・特徴 - 複数路線利用可
- 給排水設備
- エレベーター
- スケルトン
- スケルトン引渡し物件
- type スケルトン
- area 元町
- area 県庁元町山手
- ガス設備
- 24時間セキュリティー
備考 ■家賃保証加入が必要な物件です (加入時・更新時に料金は発生します) ■内見希望・物件詳細ご質問は「貸店舗gallery・ライフギャラリー㈱」まで必ずご連絡ください ■当掲載物件情報を「当社以外の不動産業者へ持ち出す行為」「建物の管理者等へ直接取引を持ち掛ける行為」「ほか情報流用盗用行為」は厳禁です ※それら行為により被った当社損失は請求の対象となります。 主な周辺施設
- ロイヤルホスト下山手店約155m(徒歩2分)
- 兵庫県庁約267m(徒歩4分)
- 兵庫県警察本部約350m(徒歩5分)
- 相楽園約572m(徒歩8分)
- ライフ下山手店約401m(徒歩6分)
- 神戸下山手郵便局約515m(徒歩7分)
-
ホームページはこちら
兵庫県知事(4) 第11371号
ライフギャラリー(株)〒651-0094
TEL:078-251-6265
FAX:078-251-6266
営業時間:10:00~19:30
定休日:毎週 水曜
- 加入団体
- (公社)全日本不動産協会
- 保証協会
- (公社)不動産保証協会
- 公正取引協議会
- (公社)近畿地区不動産公正取引協議会
※連合隊は物件情報の精度向上に努めています:「物件情報に誤りがある」「成約済みである」などお気付きの点がございましたらこちらよりご連絡ください。
写真枚数:11枚
山手幹線・兵庫県庁
山手幹線・兵庫県庁
山手幹線・兵庫県庁








神戸市内の事業用テナント物件のコトならお任せください! 物販SHOP・美容サロン・レストラン・cafe・健康スタジオ・オフィスなど幅広い業種に対応するサポート体制が整っております。
■事業用テナント仲介実績多数、たくさんの開業サポートによって培った経験と知識をもつ事業用専門スタッフが在籍しているので幅広い業種の物件探しをお手伝い可能です ■店舗内装デザイナー・融資アドバーザーとの連携でスムーズな開業サポートが可能、自治体の勉強会とは異なる「まちを歩いて情報を集める」リアルタイムな視点でのアドバイスが可能なことにより、あなたの初めての開業がよりスムーズに動き出すかも。