岡本石畳商店街|ガラス面が映える2F区画
ここに注目!岡本石畳商店街・ガラス面で店内が見える2F区画 / ■最寄り駅はJR線摂津本山駅*⁺..神戸市東灘区の商業エリア // 駅から徒歩アクセス圏内なのでお客様の来訪に便利です*⁺.・ // スタバが近くにアリ..⁺*散策にも通学にも生活にも快適な人気エリア*⁺.. ■当物件は美容salon・健康studio・教育school・医療clinic・物販shop・事務所office・他サービス業に適してます*⁺..⌒ ■お問合せの際に"業種"を詳細にお聞かせいただくと進捗がスムーズです // 必要な設備 (上下水道・電気・ガス・排気など) をお聞かせください..⁺*物件によっては調査してご回答も可能です*⁺..
| 賃料・費用 |
21万円
(+管理費等 4,000円)
坪単価:約1.3万円/坪
敷21万円(1ヶ月)礼52万5,000円(2.5ヶ月)仲21万円
|
|---|---|
| 専有面積 | 54.96m² (16.62坪) |
| 住所 | 兵庫県神戸市東灘区本山北町3 |
| 交通 | 摂津本山駅(徒歩2分)|岡本駅(徒歩4分)道順を見る |
| 階/階建 | 2階 |
| 築年月 | 築37年(1988年11月) |
| 駐車場 |
空室確認、見学、詳細を知りたい方はこちら!
お電話の際は「連合隊の物件」とお伝えください。
情報掲載期限:あと28日(更新日 2026/3/9)
- 物件写真・概要
- 周辺地図
-
▼クリックで左の拡大画像が変わります。 すべての写真を拡大
空室確認、見学、詳細を知りたい方はこちら!
おすすめポイント
- 駅徒歩3分以内
- 複数路線利用可
- スケルトン
- 出店するなら…この業種がおすすめ!
- 飲食全般(重飲食含む)

- 喫茶・カフェ(軽飲食)

- バー・クラブ・スナック

- 小売・物販

- 美容・健康・介護

- 医療

- 教育・スクール

- 事務所

- アミューズメント

交通色がついているアイコンをクリックすると、本物件までの道順を見ることができます。
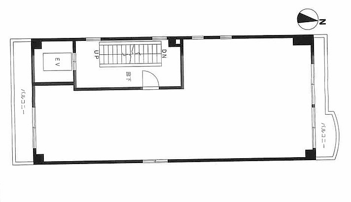
物件概要
所在階/建物の階建 2階 主要採光面 構造 鉄骨造 間取り バルコニー あり契約期間 2年間 権利金 住宅保険 お問合せください 出店推奨業種 小売・物販、美容・健康・介護、教育・スクール 出店不可業種 引渡し 相談 管理人 非常駐 取引態様 仲介 物件No 設備・特徴 - 複数路線利用可
- ガス設備
- スケルトン
- 前面ガラス張り
- スケルトン引渡し物件
- type スケルトン
- 事務所向き
- 物販店向き店舗
- 美容系向き物件
- type 小物販
- type 美容サロン
- エレベーター
備考 ■家賃保証加入が必要な物件です (加入時・更新時に料金は発生します) ■内見希望・物件詳細ご質問は「貸店舗gallery・ライフギャラリー㈱」まで必ずご連絡ください ■当掲載物件情報を「当社以外の不動産業者へ持ち出す行為」「建物の管理者等へ直接取引を持ち掛ける行為」「ほか情報流用盗用行為」は厳禁です ※それら行為により被った当社損失は請求の対象となります。 主な周辺施設色がついているアイコンをクリックすると、本物件までの道順を見ることができます。
-
ホームページはこちら
兵庫県知事(4) 第11371号
ライフギャラリー(株)〒651-0094
TEL:078-251-6265
FAX:078-251-6266
営業時間:10:00~19:30
定休日:毎週 水曜
- 加入団体
- (公社)全日本不動産協会
- 保証協会
- (公社)不動産保証協会
- 公正取引協議会
- (公社)近畿地区不動産公正取引協議会
※連合隊は物件情報の精度向上に努めています:「物件情報に誤りがある」「成約済みである」などお気付きの点がございましたらこちらよりご連絡ください。
写真枚数:16枚
ライフギャラリー株式会社
ライフギャラリー株式会社
ライフギャラリー株式会社
ライフギャラリー株式会社
ライフギャラリー株式会社
ライフギャラリー株式会社
ライフギャラリー株式会社
ライフギャラリー株式会社
ライフギャラリー株式会社
ライフギャラリー株式会社
ライフギャラリー株式会社
ライフギャラリー株式会社
ライフギャラリー株式会社
本山北町3
本山北町3
本山北町3








神戸市内の事業用テナント物件のコトならお任せください! 物販SHOP・美容サロン・レストラン・cafe・健康スタジオ・オフィスなど幅広い業種に対応するサポート体制が整っております。
■事業用テナント仲介実績多数、たくさんの開業サポートによって培った経験と知識をもつ事業用専門スタッフが在籍しているので幅広い業種の物件探しをお手伝い可能です ■店舗内装デザイナー・融資アドバーザーとの連携でスムーズな開業サポートが可能、自治体の勉強会とは異なる「まちを歩いて情報を集める」リアルタイムな視点でのアドバイスが可能なことにより、あなたの初めての開業がよりスムーズに動き出すかも。