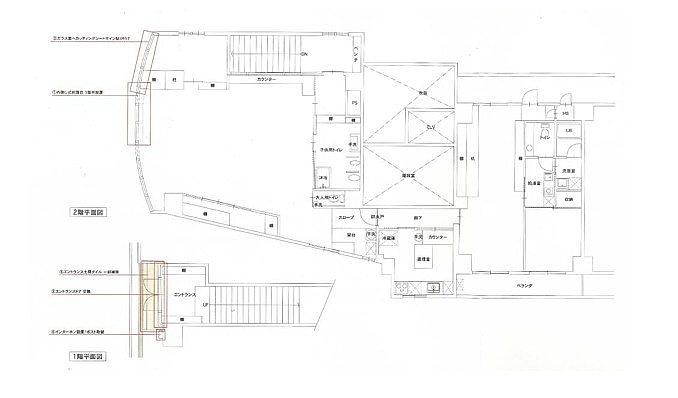
2F 採光良好窓面|元町山手 保育園跡
ここに注目!1F路面から専用入口のある2階テナント区画 / coop元町山手の並びです / ■最寄り駅はJR線モトマチ駅*⁺..神戸市中央区の山手居住エリア // 駅から徒歩アクセス圏内なのでお客様の来訪に便利です*⁺.・ // 兵庫県庁が近くにアリ..⁺*散策に快適なエリア*⁺.. ■当物件は美容salon・健康studio・教育school・医療clinic・物販shop・事務所office・他サービス業に適してます*⁺..⌒ ■お問合せの際に"業種"を詳細にお聞かせいただくと進捗がスムーズです // 必要な設備 (上下水道・電気・ガス・排気など) をお聞かせください..⁺*物件によっては調査してご回答も可能です*⁺..
この物件は居抜き物件です。
現状の設備が残されたまま取引されるため、初期費用を抑え速やかに事業を開始できるメリットがあります。
| 賃料・費用 |
71万5,000円
(+管理費等 7万640円)
坪単価:約1.3万円/坪
敷65万円礼143万円(2ヶ月)仲71万5,000円
|
|---|---|
| 専有面積 | 182.74m² (55.27坪) |
| 住所 | 兵庫県神戸市中央区中山手通4 |
| 交通 | 県庁前駅(徒歩6分)|元町駅(徒歩9分)道順を見る |
| 階/階建 | 2階 |
| 築年月 | 築37年(1988年7月) |
| 駐車場 |
空室確認、見学、詳細を知りたい方はこちら!
お電話の際は「連合隊の物件」とお伝えください。
情報掲載期限:あと25日(更新日 2026/2/27)
- 物件写真・概要
- 周辺地図
-
▼クリックで左の拡大画像が変わります。 すべての写真を拡大
空室確認、見学、詳細を知りたい方はこちら!
おすすめポイント
- 複数路線利用可
- 幹線道路沿い
- 出店するなら…この業種がおすすめ!
- 飲食全般(重飲食含む)

- 喫茶・カフェ(軽飲食)

- バー・クラブ・スナック

- 小売・物販

- 美容・健康・介護

- 医療

- 教育・スクール

- 事務所

- アミューズメント

交通色がついているアイコンをクリックすると、本物件までの道順を見ることができます。
物件概要
所在階/建物の階建 2階 主要採光面 構造 鉄骨鉄筋コンクリート(SRC)造 間取り 契約期間 2年間 権利金 住宅保険 お問合せください 出店推奨業種 美容・健康・介護、医療、教育・スクール 出店不可業種 居抜き情報 [その他(保育施設)] の居抜き引渡し 2026年6月初旬 管理人 非常駐 取引態様 仲介 物件No 設備・特徴 - 複数路線利用可
- 幹線道路沿い
- ガス設備
- 給排水設備
- 前面ガラス張り
- 事務所向き
- 美容系向き物件
- 飲食店以外居抜き物件
- area 元町
- area 県庁元町山手
- type 美容サロン
- type 快適オフィス
備考 ■家賃保証加入が必要な物件です (加入時・更新時に料金は発生します) ■内見希望・物件詳細ご質問は「貸店舗gallery・ライフギャラリー㈱」までご連絡ください ★彡 お考えの業種・スケジュール感・法人名など自己紹介が充実していると契約進行がスムーズです! 主な周辺施設色がついているアイコンをクリックすると、本物件までの道順を見ることができます。
-
ホームページはこちら
兵庫県知事(4) 第11371号
ライフギャラリー(株)〒651-0094
TEL:078-251-6265
FAX:078-251-6266
営業時間:10:00~19:30
定休日:毎週 水曜
- 加入団体
- (公社)全日本不動産協会
- 保証協会
- (公社)不動産保証協会
- 公正取引協議会
- (公社)近畿地区不動産公正取引協議会
※連合隊は物件情報の精度向上に努めています:「物件情報に誤りがある」「成約済みである」などお気付きの点がございましたらこちらよりご連絡ください。
写真枚数:10枚
ライフギャラリー株式会社
ライフギャラリー株式会社
ライフギャラリー株式会社
ライフギャラリー株式会社
ライフギャラリー株式会社
当社は店舗オフィスなど事業用テナント物件を専門に扱うKOBEの不動産会社です / 開業に関する幅広いご相談に対応OK!!
ライフギャラリー株式会社
ライフギャラリー株式会社
元町山手・中山手通4
元町山手・中山手通4








神戸市内の事業用テナント物件のコトならお任せください! 物販SHOP・美容サロン・レストラン・cafe・健康スタジオ・オフィスなど幅広い業種に対応するサポート体制が整っております。
■事業用テナント仲介実績多数、たくさんの開業サポートによって培った経験と知識をもつ事業用専門スタッフが在籍しているので幅広い業種の物件探しをお手伝い可能です ■店舗内装デザイナー・融資アドバーザーとの連携でスムーズな開業サポートが可能、自治体の勉強会とは異なる「まちを歩いて情報を集める」リアルタイムな視点でのアドバイスが可能なことにより、あなたの初めての開業がよりスムーズに動き出すかも。