JR三ノ宮駅から東 | 琴ノ緒町4 店舗事務所
ここに注目!線路前で明るい立地 / ■最寄り駅は全線サンノミヤ駅*⁺..神戸市中央区の中心エリア // 駅から徒歩アクセス圏内なのでお客様の来訪に便利です*⁺.・ // 二宮商店街が近くにアリ..⁺*散策にも生活にも快適なエリア*⁺.. ■当物件は美容salon・健康studio・教育school・医療clinic・事務所office・他サービス業に適してます*⁺..⌒ ■お問合せの際に"業種"を詳細にお聞かせいただくと進捗がスムーズです // 必要な設備 (上下水道・電気・ガス・排気など) をお聞かせください..⁺*物件によっては調査してご回答も可能です*⁺..
希望条件を伝えて事業用テナント物件探しを依頼するならコチラ‥
この物件は エステサロン の居抜き物件です。
現状の設備が残されたまま取引されるため、初期費用を抑え速やかに事業を開始できるメリットがあります。
| 賃料・費用 |
11万円
(+管理費等 1万5,200円)
坪単価:約1.2万円/坪
敷10万円礼30万円仲11万円
|
|---|---|
| 専有面積 | 29.19m² (8.82坪) |
| 住所 | 兵庫県神戸市中央区琴ノ緒町4 |
| 交通 | 神戸三宮駅(徒歩9分)|三ノ宮駅(徒歩3分)道順を見る |
| 階/階建 | 4階 |
| 築年月 | 築28年(1997年3月) |
| 駐車場 |
空室確認、見学、詳細を知りたい方はこちら!
お電話の際は「連合隊の物件」とお伝えください。
情報掲載期限:あと28日(更新日 2025/12/19)
- 物件写真・概要
- 周辺地図
-
▼クリックで左の拡大画像が変わります。 すべての写真を拡大
空室確認、見学、詳細を知りたい方はこちら!
おすすめポイント
- 駅徒歩3分以内
- 複数路線利用可
- 造作譲渡料無料
- 光ファイバー
- 24時間セキュリティー
- 出店するなら…この業種がおすすめ!
- 飲食全般(重飲食含む)

- 喫茶・カフェ(軽飲食)

- バー・クラブ・スナック

- 小売・物販

- 美容・健康・介護

- 医療

- 教育・スクール

- 事務所

- アミューズメント

交通色がついているアイコンをクリックすると、本物件までの道順を見ることができます。
物件概要
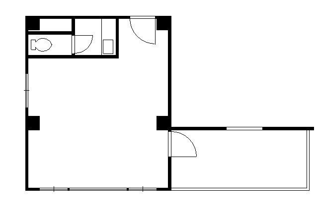
所在階/建物の階建 4階 主要採光面 構造 鉄骨造 間取り バルコニー あり契約期間 2年間 権利金 住宅保険 お問合せください 出店推奨業種 美容・健康・介護、教育・スクール、事務所 出店不可業種 居抜き情報 [エステサロン] の居抜き造作譲渡料 無料 その他費用 毎月の費用 - 水道料:1,100円
一時金 - 鍵交換料:1万9,800円
引渡し 相談 管理人 非常駐 取引態様 仲介 物件No 設備・特徴 - 複数路線利用可
- エレベーター
- 給排水設備
- 24時間セキュリティー
- ブロードバンド回線(光ファイバー等の高速インターネット)
- 事務所向き
- 美容系向き物件
- 飲食店以外居抜き物件
- area さんのみや駅
- type 美容サロン
- 照明器具付
- ビルトインエアコン
備考 ■内見希望・物件詳細ご質問は「貸店舗gallery・ライフギャラリー㈱」までご連絡ください ★彡 お考えの業種・スケジュール感・法人名など自己紹介が充実していると契約進行がスムーズです! ■家賃保証加入が必要な物件です (加入時・更新時に料金は発生します) 主な周辺施設色がついているアイコンをクリックすると、本物件までの道順を見ることができます。
-
ホームページはこちら
兵庫県知事(4) 第11371号
ライフギャラリー(株)〒651-0094
TEL:078-251-6265
FAX:078-251-6266
営業時間:10:00~19:30
定休日:毎週 水曜
- 加入団体
- (公社)全日本不動産協会
- 保証協会
- (公社)不動産保証協会
- 公正取引協議会
- (公社)近畿地区不動産公正取引協議会
※連合隊は物件情報の精度向上に努めています:「物件情報に誤りがある」「成約済みである」などお気付きの点がございましたらこちらよりご連絡ください。
写真枚数:20枚
当社は店舗オフィスなど事業用テナント物件を専門に扱うKOBEの不動産会社です / 開業に関する幅広いご相談に対応OK!!
当社は店舗オフィスなど事業用テナント物件を専門に扱うKOBEの不動産会社です / 開業に関する幅広いご相談に対応OK!!
琴ノ緒町
サンノミヤ駅東
琴ノ緒町
琴ノ緒町








神戸市内の事業用テナント物件のコトならお任せください! 物販SHOP・美容サロン・レストラン・cafe・健康スタジオ・オフィスなど幅広い業種に対応するサポート体制が整っております。
■事業用テナント仲介実績多数、たくさんの開業サポートによって培った経験と知識をもつ事業用専門スタッフが在籍しているので幅広い業種の物件探しをお手伝い可能です ■店舗内装デザイナー・融資アドバーザーとの連携でスムーズな開業サポートが可能、自治体の勉強会とは異なる「まちを歩いて情報を集める」リアルタイムな視点でのアドバイスが可能なことにより、あなたの初めての開業がよりスムーズに動き出すかも。