敷地内に駐車6台可能|2階建マルチoffice・倉庫
ここに注目!駐車スペース複数台アリ // 最寄り駅は地下鉄海岸線和田岬駅..⁺*・神戸市兵庫区の海岸エリアです // 複数駅からアクセス可能なのでお客様の来訪に便利ですね*⁺..・イオンモールが近くにアリ・KOBEはだいたいどこも治安は良好‥安心な都市です // ⁺°..・ 法人店舗開発・FC事業・多店舗展開もスムーズに取次できます*°・KOBEで事業用テナント仲介実績増加中の⁺Life Gallery++に「内見・申込・契約」業務はお任せくださいσ*°
希望条件を伝えて事業用テナント物件探しを依頼するならコチラ‥
この物件の契約期間は 10年間です。
定期借家物件は、賃貸借契約期間満了後、原則として契約の更新ができない物件です。再契約の可否については不動産会社にお問合せください。
| 賃料・費用 |
209万円
(+管理費等 なし)
坪単価:約1.4万円/坪
敷1,900万円礼なし仲209万円
敷引・償却金:627万円(3ヶ月)
|
|---|---|
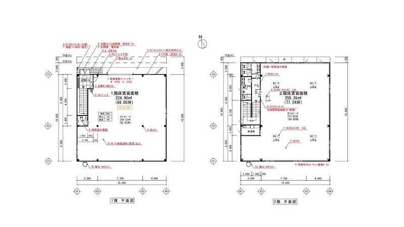
| 専有面積 | 480.32m² (145.29坪) |
| 住所 | 兵庫県神戸市兵庫区和田宮通 (詳細非公開) |
| 交通 | 和田岬駅(徒歩5分)|兵庫駅(徒歩22分) |
| 階/階建 | 2階建 |
| 築年月 | 築1年(2024年4月) |
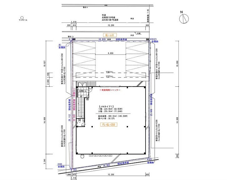
| 駐車場 |
あり (無料) 駐車可能台数:6台
|
空室確認、見学、詳細を知りたい方はこちら!
お電話の際は「連合隊の物件」とお伝えください。
情報掲載期限:あと20日(更新日 2026/3/15)
- 物件写真・概要
- 周辺地図
-
▼クリックで左の拡大画像が変わります。 すべての写真を拡大
空室確認、見学、詳細を知りたい方はこちら!
おすすめポイント
- 駅徒歩5分以内
- 複数路線利用可
- 駐車2台以上可
- 男女別トイレ
- OAフロア
交通
- 和田岬駅JR山陽本線(兵庫~和田岬)、神戸市営地下鉄海岸線徒歩5分(約360m)
- 兵庫駅JR山陽本線(兵庫~和田岬)、JR神戸線(神戸~姫路)徒歩22分(約1.8km)
物件概要
建物の階建 地上2階建 総戸数 1戸 構造 鉄骨造 間取り 契約期間 定期借家(10年間) 権利金 住宅保険 お問合せください 土地面積 459.88m² (139.11坪)接道状況 一方 - 北側幅8.00mの公道に接道
用途地域 - 準工業地域
引渡し 2026年5月初旬 管理人 非常駐 取引態様 仲介 物件No 設備・特徴 - 複数路線利用可
- 給排水設備
- 照明器具付
- OAフロア
- ビルトインエアコン
- 男女別トイレ
- 駐車場無料
- 一棟貸し
- 事務所向き
- type 快適オフィス
備考 ■内見希望・物件詳細ご質問は「貸店舗gallery・ライフギャラリー㈱」まで必ずご連絡ください ■当掲載物件情報を「当社以外の不動産業者へ持ち出す行為」「建物の管理者等へ直接取引を持ち掛ける行為」「ほか情報流用盗用行為」は厳禁です ※それら行為により被った当社損失は請求の対象となります。 主な周辺施設
- 兵庫県立兵庫工業高校約184m(徒歩3分)
- ローソンストア100兵庫笠松通店約450m(徒歩6分)
- 神戸和田崎郵便局約440m(徒歩6分)
- 薬仙寺約546m(徒歩7分)
- 三菱神戸病院約526m(徒歩7分)
- 医療法人社団顕鐘会神戸百年記念病院約743m(徒歩10分)
- ヤマダデンキテックランド神戸和田岬店約807m(徒歩11分)
- みなと銀行御崎支店約894m(徒歩12分)
- コープミニ御崎約1.1km(徒歩14分)
- イオンスタイル神戸南約1.2km(徒歩15分)
-
ホームページはこちら
兵庫県知事(4) 第11371号
ライフギャラリー(株)〒651-0094
TEL:078-251-6265
FAX:078-251-6266
営業時間:10:00~19:30
定休日:毎週 水曜
- 加入団体
- (公社)全日本不動産協会
- 保証協会
- (公社)不動産保証協会
- 公正取引協議会
- (公社)近畿地区不動産公正取引協議会
※連合隊は物件情報の精度向上に努めています:「物件情報に誤りがある」「成約済みである」などお気付きの点がございましたらこちらよりご連絡ください。
写真枚数:8枚
ライフギャラリー株式会社
ライフギャラリー株式会社
ライフギャラリー株式会社
ライフギャラリー株式会社
ライフギャラリー株式会社








神戸市内事業用テナント物件「探す」「見つける」「お店をOPENする」 ■ 物販SHOP・美容サロン・レストラン・カフェ・健康スタジオ・オフィスなど幅広い業種に対応できるアドバイザー在籍の不動産会社です
■事業用テナント物件の仲介実績続々増加中、当社との取引を経て新しいお店が神戸にたくさん誕生してます☆彡 ■テナント物件や開業に詳しいアドバイザーが在籍する神戸で数少ない経験値を備えた不動産会社なので、初めて開業を目指す個人事業者さんにも優しい対応が可能です ■スケルトン・居抜き・ロードサイド・チェーン店・プライベートサロン・原状回復など専門的な知識が必要な事業用テナントのコトは当社にお任せください