モトマチ商店街|エレベーターで4F
ここに注目!⁺°..・初めて開業を目指す事業者さんは⁺*まず面談⁺でもOK! その場合はサンノミヤ琴ノ緒町5にある当社officeまで事前予約の上ご訪問いただけます⁺*お気軽にmail・LINEください // ⁺°・..最寄り駅はJR線モトマチ駅..⁺*・神戸市中央区の商業エリアです // 複数駅からアクセス可能なのでお客様の来訪に便利ですね*⁺..・南京町が近くにアリ・KOBEはだいたいどこも治安は良好‥安心な都市です // σ*・。当物件は美容salon・健康studio・教育school・物販shop・事務所office・他サービス業に適してます / ※お問合せの際に"業種"を詳細にお聞かせいただくと進捗がスムーズです.・*°必要な設備 (上下水道・電気・ガス・排気など) についても判る範囲でお聞かせください⌒*・当方による調査ももちろん可能
希望条件を伝えて事業用テナント物件探しを依頼するにはコチラから‥
この物件は オフィス の居抜き物件です。
現状の設備が残されたまま取引されるため、初期費用を抑え速やかに事業を開始できるメリットがあります。
| 賃料・費用 |
お問合せ下さい
|
|---|---|
| 専有面積 | 43m² (13坪) |
| 住所 | 兵庫県神戸市中央区元町通2 |
| 交通 | 元町駅(徒歩4分)|旧居留地・大丸前駅(徒歩5分)道順を見る |
| 階/階建 | 4階 |
| 築年月 | 築55年(1970年4月) |
| 駐車場 |
空室確認、見学、詳細を知りたい方はこちら!
お電話の際は「連合隊の物件」とお伝えください。
情報掲載期限:あと18日(更新日 2025/11/25)
- 物件写真・概要
- 周辺地図
-
▼クリックで左の拡大画像が変わります。 すべての写真を拡大
空室確認、見学、詳細を知りたい方はこちら!
おすすめポイント
- 駅徒歩5分以内
- 複数路線利用可
- 商店街に面す
- エアコン付
- 出店するなら…この業種がおすすめ!
- 飲食全般(重飲食含む)

- 喫茶・カフェ(軽飲食)

- バー・クラブ・スナック

- 小売・物販

- 美容・健康・介護

- 医療

- 教育・スクール

- 事務所

- アミューズメント

※出店不可の業種:飲食全般
交通色がついているアイコンをクリックすると、本物件までの道順を見ることができます。
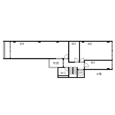
物件概要
所在階/建物の階建 4階 主要採光面 構造 鉄筋コンクリート(RC)造 間取り 契約期間 2年間 権利金 住宅保険 お問合せください 出店推奨業種 小売・物販、教育・スクール、事務所 出店不可業種 飲食全般 居抜き情報 [オフィス] の居抜き引渡し 相談 管理人 非常駐 取引態様 仲介 物件No 設備・特徴 - 複数路線利用可
- 商店街に面す
- エレベーター
- 照明器具付
- エアコン付
- 男女別トイレ(共用部)
- 事務所向き
- 物販店向き店舗
- 美容系向き物件
- 飲食店以外居抜き物件
- area 元町
- area 元町商店街
- type 小物販
- type 美容サロン
備考 ■内見希望・物件詳細ご質問は「貸店舗gallery・ライフギャラリー㈱」までご連絡ください ★彡 お考えの業種・スケジュール感・法人名など自己紹介が充実していると契約進行がスムーズです! ■家賃保証加入が必要な物件です (加入時・更新時に料金は発生します) 主な周辺施設色がついているアイコンをクリックすると、本物件までの道順を見ることができます。
-
ホームページはこちら
兵庫県知事(4) 第11371号
ライフギャラリー(株)〒651-0094
TEL:078-251-6265
FAX:078-251-6266
営業時間:10:00~19:30
定休日:毎週 水曜
- 加入団体
- (公社)全日本不動産協会
- 保証協会
- (公社)不動産保証協会
- 公正取引協議会
- (公社)近畿地区不動産公正取引協議会
写真枚数:22枚
当社は店舗オフィスなど事業用テナント物件を専門に扱うKOBEの不動産会社です / 開業に関する幅広いご相談に対応OK!!
当社は店舗オフィスなど事業用テナント物件を専門に扱うKOBEの不動産会社です / 開業に関する幅広いご相談に対応OK!!
元町商店街1番街
元町商店街1番街








神戸市内の事業用テナント物件のコトならお任せください! 物販SHOP・美容サロン・レストラン・cafe・健康スタジオ・オフィスなど幅広い業種に対応するサポート体制が整っております。
■事業用テナント仲介実績多数、たくさんの開業サポートによって培った経験と知識をもつ事業用専門スタッフが在籍しているので幅広い業種の物件探しをお手伝い可能です ■店舗内装デザイナー・融資アドバーザーとの連携でスムーズな開業サポートが可能、自治体の勉強会とは異なる「まちを歩いて情報を集める」リアルタイムな視点でのアドバイスが可能なことにより、あなたの初めての開業がよりスムーズに動き出すかも。