5階建|倉庫
ここに注目!臨海地区内・住吉浜町倉庫 / リフトあり / 検査済証あり / 工業地区の5階建て倉庫 °*:.‥⁺..法人事業・FC事業・多店舗展開もスムーズに取次できます*°・..⁺KOBEで事業用テナント仲介実績が増加中の⁺Life Gallery⁺⁺に「内見・申込・契約」業務はお任せください★
希望条件を伝えて事業用テナント物件探しを依頼するにはコチラから‥
この物件は居抜き物件です。
現状の設備が残されたまま取引されるため、初期費用を抑え速やかに事業を開始できるメリットがあります。
| 賃料・費用 |
517万円
(+管理費等 なし)
坪単価:約4,845円/坪
敷2,820万円礼1,034万円(2ヶ月)仲517万円
|
|---|---|
| 専有面積 | 3528m² (1067.22坪) |
| 住所 | 兵庫県神戸市東灘区住吉浜町15-2 |
| 交通 | 住吉駅(徒歩15分)|南魚崎駅(徒歩16分)|御影駅(徒歩19分)道順を見る |
| 階/階建 | 5階建 |
| 築年月 | 築32年(1993年11月) |
| 駐車場 |
あり (無料)
|
空室確認、見学、詳細を知りたい方はこちら!
お電話の際は「連合隊の物件」とお伝えください。
情報掲載期限:あと27日(更新日 2025/12/9)
- 物件写真・概要
- 周辺地図
-
▼クリックで左の拡大画像が変わります。 すべての写真を拡大
空室確認、見学、詳細を知りたい方はこちら!
おすすめポイント
- 駐車場あり
- 複数路線利用可
- 事務所付
- 大型車進入可
交通色がついているアイコンをクリックすると、本物件までの道順を見ることができます。
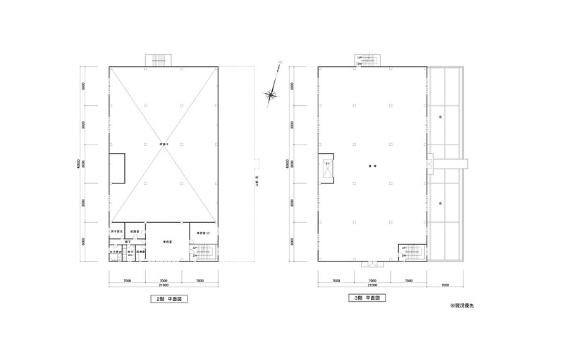
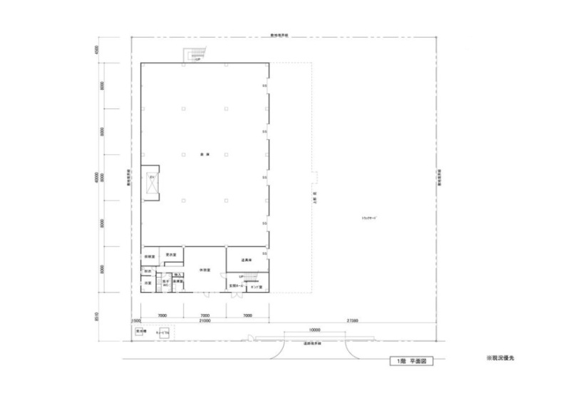
物件概要
所在階/建物の階建 地上5階建 主要採光面 構造 鉄骨造 間取り 契約期間 権利金 住宅保険 お問合せください 出店推奨業種 その他(倉庫) 出店不可業種 居抜き情報 [その他(倉庫)] の居抜き土地面積 2644.64m² (800坪)用途地域 - 工業専用地域(建ぺい率:60% / 容積率:200%)
引渡し 相談 管理人 非常駐 取引態様 仲介 物件No 設備・特徴 - 複数路線利用可
- 大型車進入可
- エレベーター
- 給排水設備
- 事務所付
- 駐車場無料
- 一棟貸し
- 飲食店以外居抜き物件
備考 ■内見希望・物件詳細ご質問は「貸店舗gallery・ライフギャラリー㈱」までご連絡ください ★彡 お考えの業種・スケジュール感・法人名など自己紹介が充実していると親近感が沸くタイプです! 主な周辺施設色がついているアイコンをクリックすると、本物件までの道順を見ることができます。
-
ホームページはこちら
兵庫県知事(4) 第11371号
ライフギャラリー(株)〒651-0094
TEL:078-251-6265
FAX:078-251-6266
営業時間:10:00~19:30
定休日:毎週 水曜
- 加入団体
- (公社)全日本不動産協会
- 保証協会
- (公社)不動産保証協会
- 公正取引協議会
- (公社)近畿地区不動産公正取引協議会
※連合隊は物件情報の精度向上に努めています:「物件情報に誤りがある」「成約済みである」などお気付きの点がございましたらこちらよりご連絡ください。
写真枚数:14枚
1F
2F / 3F
4F / 5F
当社は店舗オフィスなど事業用テナント物件を専門に扱うKOBEの不動産会社です / 開業に関する幅広いご相談に対応OK!!
当社は店舗オフィスなど事業用テナント物件を専門に扱うKOBEの不動産会社です / 開業に関する幅広いご相談に対応OK!!
国道43号線・御影
住吉川








神戸市内の事業用テナント物件のコトならお任せください! 物販SHOP・美容サロン・レストラン・cafe・健康スタジオ・オフィスなど幅広い業種に対応するサポート体制が整っております。
■事業用テナント仲介実績多数、たくさんの開業サポートによって培った経験と知識をもつ事業用専門スタッフが在籍しているので幅広い業種の物件探しをお手伝い可能です ■店舗内装デザイナー・融資アドバーザーとの連携でスムーズな開業サポートが可能、自治体の勉強会とは異なる「まちを歩いて情報を集める」リアルタイムな視点でのアドバイスが可能なことにより、あなたの初めての開業がよりスムーズに動き出すかも。