西元町|小さな建物の2F・3Fセット賃貸
ここに注目!西元町・人が行き交う広場前、気付かず通り過ぎてしまいそうな建物ですがカワイイお店を運営できそうな雰囲気の2Fと3Fセット賃貸です / 物販SHOPに、カフェに、ネイルやアイラッシュサロンにも適してるかも ⁺°..・*貸室内の状況・設備checkなど内見ご希望の際はお気軽にお申し付けください*・..※現在営業中ですので当社に無断で訪問は厳禁です!! 迷惑行為は入居お断りする場合も..
希望条件を伝えて事業用テナント物件探しを依頼するにはコチラから‥
この物件は 喫茶・カフェ の居抜き物件です。
現状の設備が残されたまま取引されるため、初期費用を抑え速やかに事業を開始できるメリットがあります。
| 賃料・費用 |
13万2,000円
(+管理費等 なし)
坪単価:約7,194円/坪
敷10万円礼26万2,000円仲13万2,000円
|
|---|---|
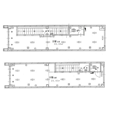
| 専有面積 | 60.69m² (18.35坪) |
| 住所 | 兵庫県神戸市中央区相生町 (詳細非公開) |
| 交通 | 西元町駅(徒歩3分)|神戸駅(徒歩6分)|高速神戸駅(徒歩8分) |
| 階/階建 | 2階 |
| 築年月 | 築29年(1996年9月) |
| 駐車場 |
空室確認、見学、詳細を知りたい方はこちら!
お電話の際は「連合隊の物件」とお伝えください。
情報掲載期限:あと19日(更新日 2026/3/14)
- 物件写真・概要
- 周辺地図
-
空室確認、見学、詳細を知りたい方はこちら!
おすすめポイント
- 駅徒歩3分以内
- 複数路線利用可
- 駅前立地
- 造作譲渡料無料
- 出店するなら…この業種がおすすめ!
- 飲食全般(重飲食含む)

- 喫茶・カフェ(軽飲食)

- バー・クラブ・スナック

- 小売・物販

- 美容・健康・介護

- 医療

- 教育・スクール

- 事務所

- アミューズメント

交通
- 西元町駅神戸高速東西線駅近!徒歩3分(約162m)
- 神戸駅JR神戸線(大阪~神戸)、JR神戸線(神戸~姫路)徒歩6分(約466m)
- 高速神戸駅神戸高速東西線徒歩8分(約608m)
物件概要
所在階/建物の階建 2階 主要採光面 構造 鉄骨造 間取り 契約期間 2年間 権利金 住宅保険 お問合せください 出店推奨業種 喫茶・カフェ(軽飲食)、小売・物販、美容・健康・介護 出店不可業種 居抜き情報 [喫茶・カフェ] の居抜き造作譲渡料 無料 引渡し 相談 管理人 非常駐 取引態様 仲介 物件No 設備・特徴 - 複数路線利用可
- 駅前立地
- 給排水設備
- 事務所向き
- 物販店向き店舗
- 美容系向き物件
- 飲食店OK店舗
- 飲食店向き店舗
- 飲食店居抜き物件
- area 元町
- area 西元町
- area 神戸大倉山
- type cafe
- type 小物販
- type 美容サロン
備考 ■家賃保証加入が必要な物件です (加入時・更新時に料金は発生します) ■内見希望・物件詳細ご質問は「貸店舗gallery・ライフギャラリー㈱」まで必ずご連絡ください ■当掲載物件情報を「当社以外の不動産業者へ持ち出す行為」「建物の管理者等へ直接取引を持ち掛ける行為」「ほか情報流用盗用行為」は厳禁です ※それら行為により被った当社損失は請求の対象となります。 主な周辺施設
- 神戸博愛病院約201m(徒歩3分)
- 神戸中央郵便局約206m(徒歩3分)
- ゆうちょ銀行神戸店約206m(徒歩3分)
- みなと銀行神戸駅前支店約212m(徒歩3分)
- 日新信用金庫宇治川支店約242m(徒歩4分)
- スターバックスコーヒーPLiCO神戸店約317m(徒歩4分)
- 成城石井プリコ神戸店約338m(徒歩5分)
- 神戸ハーバーランド約438m(徒歩6分)
- ホームセンターコーナンハーバーランド店約522m(徒歩7分)
-
ホームページはこちら
兵庫県知事(4) 第11371号
ライフギャラリー(株)〒651-0094
TEL:078-251-6265
FAX:078-251-6266
営業時間:10:00~19:30
定休日:毎週 水曜
- 加入団体
- (公社)全日本不動産協会
- 保証協会
- (公社)不動産保証協会
- 公正取引協議会
- (公社)近畿地区不動産公正取引協議会
※連合隊は物件情報の精度向上に努めています:「物件情報に誤りがある」「成約済みである」などお気付きの点がございましたらこちらよりご連絡ください。
写真枚数:9枚
西元町・相生町1
西元町・相生町1








神戸市内事業用テナント物件「探す」「見つける」「お店をOPENする」 ■ 物販SHOP・美容サロン・レストラン・カフェ・健康スタジオ・オフィスなど幅広い業種に対応できるアドバイザー在籍の不動産会社です
■事業用テナント物件の仲介実績続々増加中、当社との取引を経て新しいお店が神戸にたくさん誕生してます☆彡 ■テナント物件や開業に詳しいアドバイザーが在籍する神戸で数少ない経験値を備えた不動産会社なので、初めて開業を目指す個人事業者さんにも優しい対応が可能です ■スケルトン・居抜き・ロードサイド・チェーン店・プライベートサロン・原状回復など専門的な知識が必要な事業用テナントのコトは当社にお任せください