スーパー跡|スケルトン
ここに注目!最寄り駅は地下鉄海岸線和田岬駅..⁺*・神戸市兵庫区の海側住宅エリアです // 複数駅からアクセス可能なのでお客様の来訪に便利ですね*⁺..・スタジアムが近くにアリ・KOBEはだいたいどこも治安は良好‥安心な都市です // .......・*⁺..・⌒ ■注》》「①当社以外の不動産業者へ物件情報を持ち出す行為」「②建物の管理者等へ直接取引を持ち掛ける行為」「③情報無断流用・盗用行為」は固くお断りいたします。※不動産業者による同行為は法的措置の対象です
希望条件を伝えて事業用テナント物件探しを依頼するにはコチラから‥
| 賃料・費用 |
93万5,000円
(+管理費等 なし)
坪単価:約4,994円/坪
敷200万円礼100万円仲93万5,000円
|
|---|---|
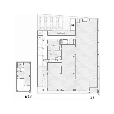
| 専有面積 | 619m² (187.24坪) |
| 住所 | 兵庫県神戸市兵庫区浜山通 (詳細非公開) |
| 交通 | 和田岬駅(徒歩4分)|御崎公園駅(徒歩11分) |
| 階/階建 | 路面 |
| 築年月 | 築59年(1966年10月) |
| 駐車場 |
あり (無料) 駐車可能台数:4台
※P4台分スペース有 (料金は賃料に含む) |
空室確認、見学、詳細を知りたい方はこちら!
お電話の際は「連合隊の物件」とお伝えください。
情報掲載期限:あと26日(更新日 2026/4/26)
- 物件写真・概要
- 周辺地図
-
空室確認、見学、詳細を知りたい方はこちら!
おすすめポイント
- 路面店
- 駅徒歩5分以内
- 幹線道路沿い
- 駐車2台以上可
- スケルトン
- 出店するなら…この業種がおすすめ!
- 飲食全般(重飲食含む)

- 喫茶・カフェ(軽飲食)

- バー・クラブ・スナック

- 小売・物販

- 美容・健康・介護

- 医療

- 教育・スクール

- 事務所

- アミューズメント

交通
- 和田岬駅JR山陽本線(兵庫~和田岬)、神戸市営地下鉄海岸線徒歩4分(約257m)
- 御崎公園駅神戸市営地下鉄海岸線徒歩11分(約841m)
物件概要
所在階/建物の階建 1階 主要採光面 構造 鉄骨造 間取り 契約期間 2年間 権利金 住宅保険 お問合せください 出店推奨業種 美容・健康・介護、医療、教育・スクール 出店不可業種 引渡し 相談 管理人 非常駐 取引態様 仲介 物件No ga014192 設備・特徴 - 幹線道路沿い
- 給排水設備
- ガス設備
- スケルトン
- 路面店
- 前面ガラス張り
- 1階路面店
- スケルトン引渡し物件
- type スケルトン
- 事務所向き
- 物販店向き店舗
- 美容系向き物件
- type 中物販
- type 美容サロン
備考 ■物件詳細・内見希望・開業相談・その他ご質問はお気軽に当社スタッフまでお尋ねください ■家賃保証加入が必要な契約です (加入時・更新時に料金は発生いたします / 詳細は当社スタッフまでお尋ねください) .....。.......⁺*..。 〖〇〗詳細問合せ先 / 当社 〖〇〗物件内見申請先 / 当社 〖〇〗物件申込先 / 当社 〖〇〗審査・契約窓口 / 当社 〖〇〗その他ご質問窓口 / 当社 主な周辺施設
- ローソンストア100兵庫笠松通店約235m(徒歩3分)
- 神戸小松郵便局約289m(徒歩4分)
- 御崎公園約312m(徒歩4分)
- ヤマダデンキテックランド神戸和田岬店約440m(徒歩6分)
- みなと銀行御崎支店約580m(徒歩8分)
- 医療法人社団顕鐘会神戸百年記念病院約636m(徒歩8分)
- 三菱神戸病院約610m(徒歩8分)
- 神戸和田崎郵便局約698m(徒歩9分)
- ホームセンターコーナン兵庫松原通生活館店約1.2km(徒歩15分)
- イオンスタイル神戸南約1.6km(徒歩20分)
-
ホームページはこちら
兵庫県知事(4) 第11371号
ライフギャラリー(株)〒651-0094
TEL:078-251-6265
FAX:078-251-6266
営業時間:10:00~19:30
定休日:毎週 水曜
- 加入団体
- (公社)全日本不動産協会
- 保証協会
- (公社)不動産保証協会
- 公正取引協議会
- (公社)近畿地区不動産公正取引協議会
※連合隊は物件情報の精度向上に努めています:「物件情報に誤りがある」「成約済みである」などお気付きの点がございましたらこちらよりご連絡ください。
写真枚数:13枚
浜山通2
浜山通2








⚓神戸市内事業用テナント物件「探す」「見つける」「お店をOPENする」👔物販SHOP・美容サロン・レストラン・カフェ・健康スタジオ・オフィスなど幅広い業種に対応できるアドバイザー在籍の不動産店です
💎事業用テナント物件の仲介実績続々増加中、当社との取引を経て新しいお店が神戸にたくさん誕生してます🎶テナント物件や開業に詳しいアドバイザーが在籍する神戸で数少ない経験値を備えた不動産会社なので、初めて開業を目指す個人事業者さんにも優しい対応が可能🌱スケルトン・居抜き・ロードサイド・チェーン店・プライベートサロン・原状回復など専門的な知識が必要な事業用テナントのコトは当社にお任せください