小事務所|元町・花隈・西元町エリア
ここに注目!★Life Gallery テナント専門スタッフの一言★ / 商店街で賑わうモトマチの小オフィス / エレベーター・共用トイレ(男女別)・給湯室 / 各沿線駅が徒歩圏内にありアクセス便利な好立地です / 【◎物件のコト ◎開業のコト ◎融資のコト ◎内装のコト ◎内見希望 ◎契約希望 /// テナント専門スタッフ在籍のライフギャラリー株式会社にお気軽にお問合せください /// 面談予約も受付中】
サイトには掲載しないテナント物件情報あり「貸店舗gallery」
この物件は オフィス の居抜き物件です。
現状の設備が残されたまま取引されるため、初期費用を抑え速やかに事業を開始できるメリットがあります。
| 賃料・費用 |
8万2,500円
(+管理費等 8,250円)
坪単価:約7,016円/坪
敷15万円礼16万5,000円(2ヶ月)仲8万2,500円
|
|---|---|
| 専有面積 | 38.88m² (11.76坪) |
| 住所 | 兵庫県神戸市中央区元町通4 |
| 交通 | 花隈駅(徒歩3分)|西元町駅(徒歩6分)|元町駅(徒歩7分)道順を見る |
| 階/階建 | 2階 |
| 築年月 | 築41年(1984年12月) |
| 駐車場 |
空室確認、見学、詳細を知りたい方はこちら!
お電話の際は「連合隊の物件」とお伝えください。
情報掲載期限:あと19日(更新日 2025/12/9)
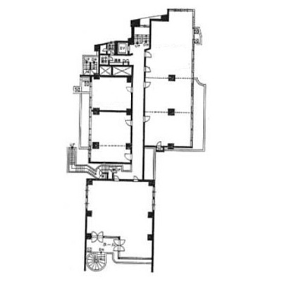
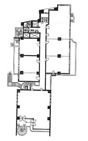
- 物件写真・概要
- 周辺地図
-
▼クリックで左の拡大画像が変わります。 すべての写真を拡大
空室確認、見学、詳細を知りたい方はこちら!
おすすめポイント
- 駅徒歩3分以内
- 出店するなら…この業種がおすすめ!
- 飲食全般(重飲食含む)

- 喫茶・カフェ(軽飲食)

- バー・クラブ・スナック

- 小売・物販

- 美容・健康・介護

- 医療

- 教育・スクール

- 事務所

- アミューズメント

交通色がついているアイコンをクリックすると、本物件までの道順を見ることができます。
物件概要
所在階/建物の階建 2階 主要採光面 構造 鉄骨鉄筋コンクリート(SRC)造 間取り 契約期間 2年間 権利金 住宅保険 お問合せください 出店推奨業種 事務所 出店不可業種 居抜き情報 [オフィス] の居抜き引渡し 2025年9月初旬 管理人 非常駐 取引態様 仲介 物件No 設備・特徴 - エレベーター
- 男女別トイレ(共用部)
- 事務所向き
- area 西元町
- area 元町
- area 元町商店街
備考 ■内見希望・物件詳細ご質問は「貸店舗gallery・ライフギャラリー㈱」までご連絡ください ★彡 お考えの業種・スケジュール感・法人名など自己紹介が充実していると親近感が沸くタイプです! ■家賃保証加入が必要な物件です (加入時・更新時に料金は発生します) 主な周辺施設色がついているアイコンをクリックすると、本物件までの道順を見ることができます。
-
ホームページはこちら
兵庫県知事(4) 第11371号
ライフギャラリー(株)〒651-0094
TEL:078-251-6265
FAX:078-251-6266
営業時間:10:00~19:30
定休日:毎週 水曜
- 加入団体
- (公社)全日本不動産協会
- 保証協会
- (公社)不動産保証協会
- 公正取引協議会
- (公社)近畿地区不動産公正取引協議会
※連合隊は物件情報の精度向上に努めています:「物件情報に誤りがある」「成約済みである」などお気付きの点がございましたらこちらよりご連絡ください。
写真枚数:10枚
理想のオフィスライフに向けて物件探しのご希望条件をお聞かせください / マッチする物件を見つけてご紹介することも可能です
当社は店舗オフィスなど事業用テナント物件を専門に扱うKOBEの不動産会社です / 開業に関する幅広いご相談に対応OK!!
元町商店街4番街
元町商店街4番街
元町商店街4番街








神戸市内の事業用テナント物件のコトならお任せください! 物販SHOP・美容サロン・レストラン・cafe・健康スタジオ・オフィスなど幅広い業種に対応するサポート体制が整っております。
■事業用テナント仲介実績多数、たくさんの開業サポートによって培った経験と知識をもつ事業用専門スタッフが在籍しているので幅広い業種の物件探しをお手伝い可能です ■店舗内装デザイナー・融資アドバーザーとの連携でスムーズな開業サポートが可能、自治体の勉強会とは異なる「まちを歩いて情報を集める」リアルタイムな視点でのアドバイスが可能なことにより、あなたの初めての開業がよりスムーズに動き出すかも。