1F+2F|計275坪の角地テナント
ここに注目!複数路線利用可能な好立地に、存在感ある大規模テナントが募集中。1Fと2Fを合わせた約275坪の広いスペースは、多様なビジネス展開を可能にします。角地に位置し、幹線道路沿いの路面店という視認性の高い立地は、集客力にもつながるでしょう。 もちろん貸室内レイアウト変更OKなので、お客様の業態に合わせて思い通りの空間を自由に創造できます。飲食全般から小売・物販まで、幅広い業種でご検討いただけます。ガス・給排水設備も整っており、厨房設備を導入したい方にも安心です。近隣には商業施設や公園も点在し、賑わいのあるエリアです。 .......・*⁺..・⌒ ■注》》「①当社以外の不動産業者へ物件情報を持ち出す行為」「②建物の管理者等へ直接取引を持ち掛ける行為」「③情報無断流用・盗用行為」は固くお断りいたします。※不動産業者による同行為は法的措置の対象です
サイトには掲載しないテナント物件情報あり「貸店舗gallery」
この物件は居抜き物件です。
現状の設備が残されたまま取引されるため、初期費用を抑え速やかに事業を開始できるメリットがあります。
| 賃料・費用 |
220万円
(+管理費等 -円)
坪単価:約8,007円/坪
敷1,200万円礼なし仲220万円
|
|---|---|
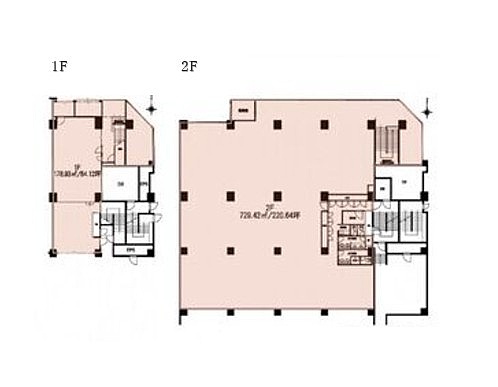
| 専有面積 | 908.35m² (274.77坪) |
| 住所 | 兵庫県神戸市長田区腕塚町 (詳細非公開) |
| 交通 | 新長田駅(徒歩6分)|西代駅(徒歩14分) |
| 階/階建 | 路面 |
| 築年月 | 築26年(1999年11月) |
| 駐車場 |
空室確認、見学、詳細を知りたい方はこちら!
お電話の際は「連合隊の物件」とお伝えください。
情報掲載期限:あと30日(更新日 2026/4/30)
- 物件写真・概要
- 周辺地図
-
空室確認、見学、詳細を知りたい方はこちら!
おすすめポイント
- 路面店
- 複数路線利用可
- 幹線道路沿い
- 出店するなら…この業種がおすすめ!
- 飲食全般(重飲食含む)

- 喫茶・カフェ(軽飲食)

- バー・クラブ・スナック

- 小売・物販

- 美容・健康・介護

- 医療

- 教育・スクール

- 事務所

- アミューズメント

交通
- 新長田駅神戸市営地下鉄西神・山手線、神戸市営地下鉄西神・山手線、神戸市営地下鉄海岸線、JR神戸線(神戸~姫路)徒歩6分(約411m)
- 西代駅山陽電鉄本線、神戸高速東西線徒歩14分(約1.2km)
物件概要
所在階/建物の階建 1階 主要採光面 構造 鉄骨鉄筋コンクリート(SRC)造 間取り 契約期間 2年間 権利金 住宅保険 お問合せください 出店推奨業種 小売・物販、美容・健康・介護、医療 出店不可業種 居抜き情報 [その他] の居抜き引渡し 相談 管理人 非常駐 取引態様 仲介 物件No ga014110 設備・特徴 - 幹線道路沿い
- 複数路線利用可
- 給排水設備
- ガス設備
- 路面店
- 1階路面店
- 事務所向き
- 物販店向き店舗
- 美容系向き物件
- 飲食店OK店舗
- 飲食店向き店舗
- type 中飲食
- type cafe
- type 中物販
- type 美容サロン
- 飲食店以外居抜き物件
備考 ■物件詳細・内見希望・開業相談・その他ご質問はお気軽に当社スタッフまでお尋ねください ■家賃保証加入が必要な契約です (加入時・更新時に料金は発生いたします / 詳細は当社スタッフまでお尋ねください) .....。.......⁺*..。 〖〇〗詳細問合せ先 / 当社 〖〇〗物件内見申請先 / 当社 〖〇〗物件申込先 / 当社 〖〇〗審査・契約窓口 / 当社 〖〇〗その他ご質問窓口 / 当社 主な周辺施設
- 但馬銀行長田支店約47m(徒歩1分)
- 新長田駅前郵便局約94m(徒歩2分)
- ケーズデンキ新長田店約169m(徒歩3分)
- スーパーマルハチ新長田店約365m(徒歩5分)
- 西友新長田店約337m(徒歩5分)
- 神戸二葉郵便局約377m(徒歩5分)
- 鉄人28号モニュメント約339m(徒歩5分)
- 若松公園約350m(徒歩5分)
-
ホームページはこちら
兵庫県知事(4) 第11371号
ライフギャラリー(株)〒651-0094
TEL:078-251-6265
FAX:078-251-6266
営業時間:10:00~19:30
定休日:毎週 水曜
- 加入団体
- (公社)全日本不動産協会
- 保証協会
- (公社)不動産保証協会
- 公正取引協議会
- (公社)近畿地区不動産公正取引協議会
※連合隊は物件情報の精度向上に努めています:「物件情報に誤りがある」「成約済みである」などお気付きの点がございましたらこちらよりご連絡ください。
写真枚数:16枚
国道2号線・新長田
アスタ新長田
アスタ新長田
アスタ新長田








⚓神戸市内事業用テナント物件「探す」「見つける」「お店をOPENする」👔物販SHOP・美容サロン・レストラン・カフェ・健康スタジオ・オフィスなど幅広い業種に対応できるアドバイザー在籍の不動産店です
💎事業用テナント物件の仲介実績続々増加中、当社との取引を経て新しいお店が神戸にたくさん誕生してます🎶テナント物件や開業に詳しいアドバイザーが在籍する神戸で数少ない経験値を備えた不動産会社なので、初めて開業を目指す個人事業者さんにも優しい対応が可能🌱スケルトン・居抜き・ロードサイド・チェーン店・プライベートサロン・原状回復など専門的な知識が必要な事業用テナントのコトは当社にお任せください