内見できます|山手幹線に面する2階テナント区画
ここに注目!★Life Gallery テナント専門スタッフの一言★ / 2F / エレベーターあり / 元スクールの一部内装残置あり状態での引渡し / KOBEの中でもファミリー層に人気の高い住宅エリアです *:.。.⁺°‥◎物件のコト ◎開業のコト ◎融資のコト ◎内装のコト ◎内見希望 ◎契約希望 /// テナント専門スタッフ在籍のライフギャラリー㈱にお気軽にお問合せください /// 面談予約も受付中
サイトには掲載しないテナント物件情報あり「貸店舗gallery」
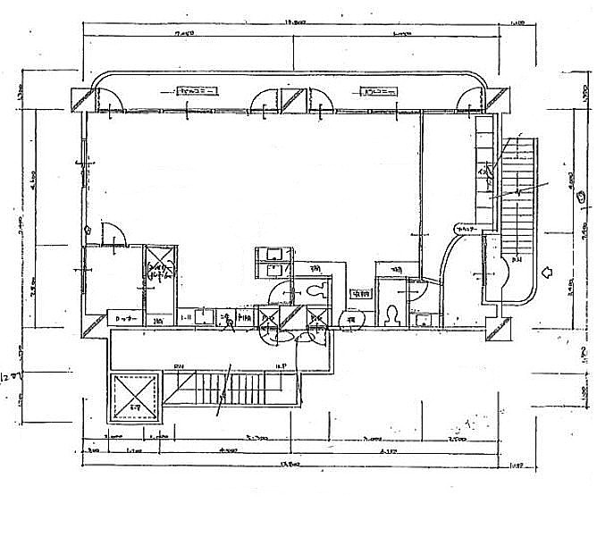
この物件は 塾・教室 の居抜き物件です。
現状の設備が残されたまま取引されるため、初期費用を抑え速やかに事業を開始できるメリットがあります。
| 賃料・費用 |
38万5,000円
(+管理費等 1万1,000円)
坪単価:約1.3万円/坪
敷200万円礼なし仲38万5,000円
敷引・償却金:110万円
|
|---|---|
| 専有面積 | 99.18m² (30坪) |
| 住所 | 兵庫県神戸市東灘区本山北町3 |
| 交通 | 岡本駅(徒歩5分)|摂津本山駅(徒歩4分)道順を見る |
| 階/階建 | 2階 |
| 築年月 | 築26年(1999年1月) |
| 駐車場 |
空室確認、見学、詳細を知りたい方はこちら!
お電話の際は「ホームページを見て」とお伝えください。
情報掲載期限:あと18日(更新日 2025/12/9)
- 物件写真・概要
- 周辺地図
-
▼クリックで左の拡大画像が変わります。 すべての写真を拡大
空室確認、見学、詳細を知りたい方はこちら!
おすすめポイント
- 駅徒歩5分以内
- 複数路線利用可
- 幹線道路沿い
- 造作譲渡料無料
- エアコン付
- 出店するなら…この業種がおすすめ!
- 飲食全般(重飲食含む)

- 喫茶・カフェ(軽飲食)

- バー・クラブ・スナック

- 小売・物販

- 美容・健康・介護

- 医療

- 教育・スクール

- 事務所

- アミューズメント

交通色がついているアイコンをクリックすると、本物件までの道順を見ることができます。
物件概要
所在階/建物の階建 2階 主要採光面 構造 鉄筋コンクリート(RC)造 間取り バルコニー あり契約期間 2年間 権利金 住宅保険 お問合せください 出店推奨業種 美容・健康・介護、医療、教育・スクール 出店不可業種 居抜き情報 [塾・教室] の居抜き造作譲渡料 無料 引渡し 相談 管理人 非常駐 取引態様 仲介 物件No 設備・特徴 - 複数路線利用可
- 幹線道路沿い
- エレベーター
- 給排水設備
- エアコン付
- 事務所向き
- 美容系向き物件
- 飲食店以外居抜き物件
- type 美容サロン
備考 ■内見希望・物件詳細ご質問は「貸店舗gallery・ライフギャラリー㈱」までご連絡ください ★彡 お考えの業種・スケジュール感・法人名など自己紹介が充実していると親近感が沸くタイプです! ■家賃保証加入が必要な物件です (加入時・更新時に料金は発生します) 主な周辺施設色がついているアイコンをクリックすると、本物件までの道順を見ることができます。
-
ホームページはこちら
兵庫県知事(4) 第11371号
ライフギャラリー(株)〒651-0094
TEL:078-251-6265
FAX:078-251-6266
営業時間:10:00~19:30
定休日:毎週 水曜
- 加入団体
- (公社)全日本不動産協会
- 保証協会
- (公社)不動産保証協会
- 公正取引協議会
- (公社)近畿地区不動産公正取引協議会
写真枚数:12枚
当社は店舗オフィスなど事業用テナント物件を専門に扱うKOBEの不動産会社です / 開業に関する幅広いご相談に対応OK!!
当社は店舗オフィスなど事業用テナント物件を専門に扱うKOBEの不動産会社です / 開業に関する幅広いご相談に対応OK!!
岡本1
JR摂津本山駅南








神戸市内の事業用テナント物件のコトならお任せください! 物販SHOP・美容サロン・レストラン・cafe・健康スタジオ・オフィスなど幅広い業種に対応するサポート体制が整っております。
■事業用テナント仲介実績多数、たくさんの開業サポートによって培った経験と知識をもつ事業用専門スタッフが在籍しているので幅広い業種の物件探しをお手伝い可能です ■店舗内装デザイナー・融資アドバーザーとの連携でスムーズな開業サポートが可能、自治体の勉強会とは異なる「まちを歩いて情報を集める」リアルタイムな視点でのアドバイスが可能なことにより、あなたの初めての開業がよりスムーズに動き出すかも。