旧居留地|重厚感!! 1階テラス付き店舗区画
ここに注目!★Life Gallery テナント専門スタッフの一言★ / 重厚感漂う、1階テラス付き店舗区画が募集開始! 洗練された街並みが魅力の神戸旧居留地エリアに、開放的な1階店舗が登場しました。阪急神戸三宮駅まで徒歩12分、JR元町駅まで徒歩11分と、複数路線利用可能でアクセスも軽快です。 約131㎡の広々とした空間は、スケルトン渡しのため、貴社のコンセプトに合わせて内装を自由にデザインできます。開放感あるテラスは、カフェや物販、美容・健康関連など、多様なビジネスに心地よい雰囲気を演出するでしょう。 24時間利用可能で24時間セキュリティ完備、共用部の男女別トイレや給排水設備、エレベーターも整い、快適なビジネス環境をサポート。 歴史と品格ある神戸の地で、新たなビジネスの舞台を創造しませんか? *:.。.⁺°‥◎物件のコト ◎開業のコト ◎融資のコト ◎内装のコト ◎内見希望 ◎契約希望 /// テナント専門スタッフ在籍のライフギャラリー㈱にお気軽にお問合せください /// 面談予約も受付中
サイトには掲載しないテナント物件情報あり「貸店舗gallery」
| 賃料・費用 |
お問合せ下さい
|
|---|---|
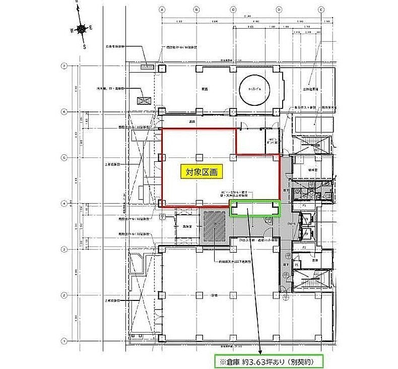
| 専有面積 | 131.57m² (39.79坪) |
| 住所 | 兵庫県神戸市中央区江戸町104 |
| 交通 | 神戸三宮駅(徒歩12分)|元町駅(徒歩11分)|三ノ宮駅(徒歩12分)道順を見る |
| 階/階建 | 1階 |
| 築年月 | 築42年(1983年10月) |
| 駐車場 |
あり (4万4,000円/台)
|
空室確認、見学、詳細を知りたい方はこちら!
お電話の際は「ホームページを見て」とお伝えください。
情報掲載期限:あと18日(更新日 2025/12/9)
- 物件写真・概要
- 周辺地図
-
▼クリックで左の拡大画像が変わります。 すべての写真を拡大
空室確認、見学、詳細を知りたい方はこちら!
おすすめポイント
- 複数路線利用可
- 駐車場あり
- スケルトン
- 24時間セキュリティー
- 出店するなら…この業種がおすすめ!
- 飲食全般(重飲食含む)

- 喫茶・カフェ(軽飲食)

- バー・クラブ・スナック

- 小売・物販

- 美容・健康・介護

- 医療

- 教育・スクール

- 事務所

- アミューズメント

交通色がついているアイコンをクリックすると、本物件までの道順を見ることができます。
物件概要
所在階/建物の階建 1階 主要採光面 構造 鉄骨鉄筋コンクリート(SRC)造 間取り 契約期間 3年間 権利金 住宅保険 お問合せください 出店推奨業種 喫茶・カフェ(軽飲食)、小売・物販、美容・健康・介護 出店不可業種 引渡し 相談 管理人 非常駐 取引態様 仲介 物件No 設備・特徴 - 複数路線利用可
- エレベーター
- 給排水設備
- 24時間セキュリティー
- 24時間利用可
- スケルトン
- 男女別トイレ(共用部)
- 1階路面店
- スケルトン引渡し物件
- 事務所向き
- 物販店向き店舗
- 美容系向き物件
- 飲食店OK店舗
- 飲食店向き店舗
- area さんのみや駅
- area 旧居留地
- area 元町
- type スケルトン
- type 小飲食
- type cafe
- type 小物販
- type 美容サロン
- type 快適オフィス
備考 ■内見希望・物件詳細ご質問は「貸店舗gallery・ライフギャラリー㈱」までご連絡ください ★彡 お考えの業種・スケジュール感・法人名など自己紹介が充実していると親近感が沸くタイプです! 主な周辺施設色がついているアイコンをクリックすると、本物件までの道順を見ることができます。
-
ホームページはこちら
兵庫県知事(4) 第11371号
ライフギャラリー(株)〒651-0094
TEL:078-251-6265
FAX:078-251-6266
営業時間:10:00~19:30
定休日:毎週 水曜
- 加入団体
- (公社)全日本不動産協会
- 保証協会
- (公社)不動産保証協会
- 公正取引協議会
- (公社)近畿地区不動産公正取引協議会
写真枚数:15枚
当社は店舗オフィスなど事業用テナント物件を専門に扱うKOBEの不動産会社です / 開業に関する幅広いご相談に対応OK!!
当社は店舗オフィスなど事業用テナント物件を専門に扱うKOBEの不動産会社です / 開業に関する幅広いご相談に対応OK!!
江戸町筋
江戸町筋
前町通








神戸市内の事業用テナント物件のコトならお任せください! 物販SHOP・美容サロン・レストラン・cafe・健康スタジオ・オフィスなど幅広い業種に対応するサポート体制が整っております。
■事業用テナント仲介実績多数、たくさんの開業サポートによって培った経験と知識をもつ事業用専門スタッフが在籍しているので幅広い業種の物件探しをお手伝い可能です ■店舗内装デザイナー・融資アドバーザーとの連携でスムーズな開業サポートが可能、自治体の勉強会とは異なる「まちを歩いて情報を集める」リアルタイムな視点でのアドバイスが可能なことにより、あなたの初めての開業がよりスムーズに動き出すかも。