下山手通2|スナック・ラウンジ店舗
ここに注目!★Life Gallery テナント専門スタッフの一言★ / エレベーターあり / 生田新道に面する飲食ビル / スナック・ラウンジ仕様に内装新調 / 1階路面に集合看板あり、集客力あるビルです *:.。.⁺°‥◎物件のコト ◎開業のコト ◎融資のコト ◎内装のコト ◎内見希望 ◎契約希望 /// テナント専門スタッフ在籍のライフギャラリー㈱にお気軽にお問合せください /// 面談予約も受付中
サイトには掲載しないテナント物件情報あり「貸店舗gallery」
この物件は クラブ・ラウンジ スナック・パブ の居抜き物件です。
現状の設備が残されたまま取引されるため、初期費用を抑え速やかに事業を開始できるメリットがあります。
| 賃料・費用 |
お問合せ下さい
|
|---|---|
| 専有面積 | 37.62m² (11.38坪) |
| 住所 | 兵庫県神戸市中央区下山手通2 |
| 交通 | 元町駅(徒歩9分)|三ノ宮駅(徒歩7分)|神戸三宮駅(徒歩4分)道順を見る |
| 階/階建 | 7階 |
| 築年月 | 築28年(1997年3月) |
| 駐車場 |
空室確認、見学、詳細を知りたい方はこちら!
お電話の際は「連合隊の物件」とお伝えください。
情報掲載期限:あと29日(更新日 2025/12/27)
- 物件写真・概要
- 周辺地図
-
▼クリックで左の拡大画像が変わります。 すべての写真を拡大
空室確認、見学、詳細を知りたい方はこちら!
おすすめポイント
- 駅徒歩5分以内
- 複数路線利用可
- 造作譲渡料無料
- 出店するなら…この業種がおすすめ!
- 飲食全般(重飲食含む)

- 喫茶・カフェ(軽飲食)

- バー・クラブ・スナック

- 小売・物販

- 美容・健康・介護

- 医療

- 教育・スクール

- 事務所

- アミューズメント

交通色がついているアイコンをクリックすると、本物件までの道順を見ることができます。
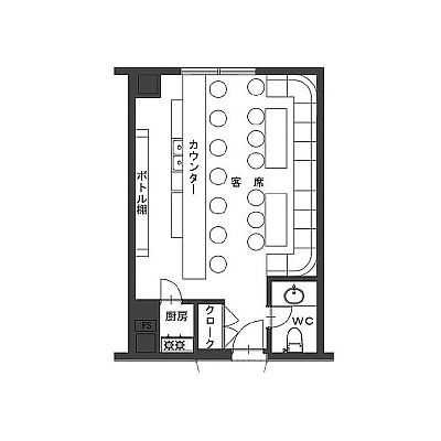
物件概要
所在階/建物の階建 7階 主要採光面 構造 鉄骨造 間取り 契約期間 2年間 権利金 住宅保険 お問合せください 出店推奨業種 バー・クラブ・スナック 出店不可業種 居抜き情報 [クラブ・ラウンジ、スナック・パブ] の居抜き造作譲渡料 無料 その他費用 毎月の費用 - ゴミ代:4,400円
- 警備費:4,400円
一時金 - 看板製作費(契約時のみ):8万8,000円
引渡し 相談 管理人 非常駐 取引態様 仲介 物件No 設備・特徴 - 複数路線利用可
- エレベーター
- 照明器具付
- ガス設備
- 給排水設備
- ビルトインエアコン
- 深夜営業相談可
- BARスナック向き物件
- area さんのみや駅
- area 元町
- type 隠れ家BAR
備考 ■内見希望・物件詳細ご質問は「貸店舗gallery・ライフギャラリー㈱」までご連絡ください ★彡 お考えの業種・スケジュール感・法人名など自己紹介が充実していると親近感が沸くタイプです! ■家賃保証加入が必要な物件です (加入時・更新時に料金は発生します) 主な周辺施設色がついているアイコンをクリックすると、本物件までの道順を見ることができます。
-
ホームページはこちら
兵庫県知事(4) 第11371号
ライフギャラリー(株)〒651-0094
TEL:078-251-6265
FAX:078-251-6266
営業時間:10:00~19:30
定休日:毎週 水曜
- 加入団体
- (公社)全日本不動産協会
- 保証協会
- (公社)不動産保証協会
- 公正取引協議会
- (公社)近畿地区不動産公正取引協議会
写真枚数:10枚
当社は店舗オフィスなど事業用テナント物件を専門に扱うKOBEの不動産会社です / 開業に関する幅広いご相談に対応OK!!
当社は店舗オフィスなど事業用テナント物件を専門に扱うKOBEの不動産会社です / 開業に関する幅広いご相談に対応OK!!
生田新道
生田新道








神戸市内の事業用テナント物件のコトならお任せください! 物販SHOP・美容サロン・レストラン・cafe・健康スタジオ・オフィスなど幅広い業種に対応するサポート体制が整っております。
■事業用テナント仲介実績多数、たくさんの開業サポートによって培った経験と知識をもつ事業用専門スタッフが在籍しているので幅広い業種の物件探しをお手伝い可能です ■店舗内装デザイナー・融資アドバーザーとの連携でスムーズな開業サポートが可能、自治体の勉強会とは異なる「まちを歩いて情報を集める」リアルタイムな視点でのアドバイスが可能なことにより、あなたの初めての開業がよりスムーズに動き出すかも。