万代町1-27 貸家
ここに注目!函館市万代町に、ご家族でゆったり暮らせる2階建て貸家が登場しました! 函館バス「万代町」停まで**徒歩3分**!毎日の通勤・通学に便利な好立地です。さらに、**マックスバリュ徒歩2分**、コンビニ徒歩3分と、お買い物施設も身近に揃い、忙しい日も安心の生活環境が魅力。 広々とした**6Kの間取り**は、それぞれのプライベート空間を確保しやすく、お子様がいらっしゃるご家庭にもおすすめです。水回りリフォーム済みで、いつでも快適にお使いいただけます。**システムキッチンは3口ガスコンロ対応**で料理もはかどります。**バス・トイレ別、温水洗浄トイレ、独立洗面台、室内洗濯機置場**など、暮らしに嬉しい設備が充実。 函館市立北星小学校まで**徒歩7分**とお子様の通学も安心の距離です。 この機会に、ぜひ一度現地をご覧ください。お問い合わせをお待ちしております!
| 賃料・費用 |
6万3,000円(+管理費等 なし)
敷なし礼6万3,000円(1ヶ月)仲6万9,300円
|
|---|---|
| 間取・専有 |
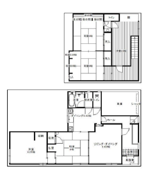
6K└ 1階:K L 和室8帖 洋室 / 2階:洋室 和室8帖 和室8帖
|
| 住所 | 北海道函館市万代町1番27号 |
| 交通 | 函館バス 「万代町」停(徒歩3分)|函館バス 「ガス会社前」停(徒歩7分) |
| 築年月 | 築46年(1979年5月) |
| 駐車場 |
あり 駐車可能台数:1台
車庫入れの為、軽自動車・小型車限定。現地確認要。 |
空室確認、見学、詳細を知りたい方はこちら!
お電話の際は「連合隊の物件」とお伝えください。
情報掲載期限:あと29日(更新日 2025/12/26)
- 物件写真・概要
- 周辺地図
-
空室確認、見学、詳細を知りたい方はこちら!
おすすめポイント
- オール電化
- 南向き
- 角地
- 都市ガス
- 車庫あり
- 駐車場あり
- エアコン付
- 平屋
- 追い焚き風呂
- ペット相談可
- リフォーム済み
- 敷金・礼金0円
- 近くて便利!徒歩5分以内にある施設
- 3分
3分- 2分
2分- 周辺施設を地図で確認
交通
- 函館バス 「万代町」停徒歩3分(約188m)
- 函館バス 「ガス会社前」停徒歩7分(約494m)
物件概要
建物の階建 地上2階建 主要採光面 東 構造 木造 契約期間 2年間 更新料/更新手数料 5,500円 住宅保険 1万9,000円(2年間) 入居可能時期 管理人 巡回 取引態様 仲介 物件No 設備・特徴 - 車庫あり
- 玄関フード
- 照明器具付
- 室内洗濯機置場
- バス/トイレ別
- システムキッチン
- LPガス
- 家賃保証会社利用可
- シューズボックス
- トイレ2ヶ所以上
- 温水洗浄トイレ
- 浴室に窓
- ガスコンロ
- コンロ3口以上
- 保証人不要
- 灯油ボイラー
- 3面採光
- 独立洗面台
- 灯油暖房
- シャワー付洗面化粧台
備考 ※保証会社をご利用いただくので連帯保証人様は原則不要となります。 【初回保証料家賃の50%(最低初回保証料15,000円)、月額保証料1.8%、年間更新料10,000円】 ※間取り現況優先とさせていただきます。 ※(注)車庫は、軽四自動車か小型車に限られます。 ※2台目駐車場要相談 ※灯油ストーブ残置物の為、修理、交換、廃棄等は借主の負担といたします。 学区色がついているアイコンをクリックすると、本物件までの道順を見ることができます。
主な周辺施設色がついているアイコンをクリックすると、本物件までの道順を見ることができます。
-
※連合隊は物件情報の精度向上に努めています:「物件情報に誤りがある」「成約済みである」などお気付きの点がございましたらこちらよりご連絡ください。
写真枚数:27枚
☆営業時間9:00~17:00☆ 定休日:毎週日曜日・祝日 不動産のことならなんでもお気軽にご相談ください。 ご連絡お待ちしております。