函館市大町1番店舗
ここに注目!函館市大町に、新たなビジネスチャンスを掴む貸店舗が登場!函館市電5系統「末広町」駅まで徒歩3分とアクセス良好な路面店です。 広々とした専有面積156.5㎡、1階の角地で視認性も良好。 現在室内はリフォーム中!新しく生まれ変わる空間で、あなたの理想のお店を実現しませんか?内観写真はリフォーム前のものですが、ご期待ください。 周辺には元町公園(徒歩3分)、ツルハドラッグ(徒歩4分)、ハセガワストア(徒歩7分)などの生活利便施設に加え、金森洋物館や赤レンガ倉庫群といった観光スポットも徒歩10分圏内。集客力も期待できる立地です。 この機会にぜひご検討ください。詳細はお気軽にお問い合わせください!
| 賃料・費用 |
16万5,000円
(+管理費等 なし)
坪単価:約3,486円/坪
敷15万円礼15万円仲16万5,000円
|
|---|---|
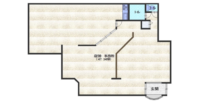
| 専有面積 | 156.5m² (47.34坪) |
| 住所 | 北海道函館市大町1-1 |
| 交通 | 末広町駅(徒歩3分)道順を見る |
| 階/階建 | 路面 / 2階建 |
| 築年月 | 築29年(1996年9月) |
| 駐車場 |
あり (無料) 駐車可能台数:2台
小型車は2台縦列可能 大き目の車種は不可 |
空室確認、見学、詳細を知りたい方はこちら!
お電話の際は「連合隊の物件」とお伝えください。
情報掲載期限:あと16日(更新日 2026/1/19)
- 物件写真・概要
- 周辺地図
-
空室確認、見学、詳細を知りたい方はこちら!
おすすめポイント
- 路面店
- 駅徒歩3分以内
- 駐車2台以上可
- 出店するなら…この業種がおすすめ!
- 飲食全般(重飲食含む)

- 喫茶・カフェ(軽飲食)

- バー・クラブ・スナック

- 小売・物販

- 美容・健康・介護

- 医療

- 教育・スクール

- 事務所

- アミューズメント

※出店不可の業種:重飲食(軽飲食は相談可)
交通色がついているアイコンをクリックすると、本物件までの道順を見ることができます。
物件概要
所在階/建物の階建 1階 / 地上2階建 主要採光面 南 構造 鉄骨造 間取り 契約期間 権利金 なし 住宅保険 お問合せください 出店推奨業種 喫茶・カフェ(軽飲食)、小売・物販、美容・健康・介護 出店不可業種 重飲食(軽飲食は相談可) 接道状況 角地 - 南東側幅18.00mの公道に接道
- 南西側幅9.00mの公道に接道
用途地域 - 第1種住居地域(建ぺい率:60% / 容積率:200%)
引渡し 2026年1月下旬(現在室内リフォーム中) 管理人 取引態様 仲介 物件No 設備・特徴 - 照明器具付
- ガス設備
- 給排水設備
- 路面店
- 男女別トイレ
備考 駐車場2台可(小型車のみ) 家賃保証会社利用可能 *現在室内リフォーム中、内観写真は以前のものです *退去時に清掃料がかかります *設備・間取りに関しては現状を優先とさせていただきます 主な周辺施設色がついているアイコンをクリックすると、本物件までの道順を見ることができます。
-
※連合隊は物件情報の精度向上に努めています:「物件情報に誤りがある」「成約済みである」などお気付きの点がございましたらこちらよりご連絡ください。
写真枚数:28枚
あなたの住まいに関するお悩みをワンストップで解決!!
不動産の売買・賃貸・仲介・管理・買取・リフォーム・リノベーションetc... 専門スタッフが親切丁寧に対応します。 悩む前にまずはお気軽に住まイルエステートにご相談ください。