壱番館
ここに注目!東川町のビル1棟の賃貸です。1階部分は事務所等に、2・3階部分は住居としてお使い頂けます。駐車場は広々とした車庫が付属しており、車種の確認は必要ですが4台程度駐車可能です。2・3階部分はもともとお使いだった法人様では社員用に貸し出していたくらい沢山の部屋数がございます。旧オーナーこだわりの水回り部分は是非ご覧頂きたいポイントです。 市場に数の少ないタイプの物件になりますので、ピッタリはまる方にはこれ以上ない物件かと思います。是非1度ご内見ください。 弊社は七飯町に事務所を設けておりますが、ご内見は現地集合・オンライン内見いずれも可能です。ご希望ございましたらお気軽にお申しつけください。
| 賃料・費用 |
22万円
(+管理費等 なし)
坪単価:約1,543円/坪
敷20万円礼20万円仲20万円
保証金:なし
|
|---|---|
| 専有面積 | 471.5m² (142.62坪) |
| 住所 | 北海道函館市東川町 (詳細非公開) |
| 交通 | 魚市場通駅(徒歩6分)|宝来町駅(徒歩7分)|函館バス 「栄町停」停(徒歩2分) |
| 階/階建 | 路面 / 3階建 |
| 築年月 | 築33年(1993年3月) |
| 駐車場 |
あり 駐車可能台数:4台
駐車は車庫内となります。 |
【WEB面談可】
空室確認、見学、詳細を知りたい方はこちら!
お電話の際は「連合隊の物件」とお伝えください。
情報掲載期限:あと16日(更新日 2026/3/3)
- 物件写真・概要
- 周辺地図
-
▼クリックで左の拡大画像が変わります。 すべての写真を拡大
【WEB面談可】
空室確認、見学、詳細を知りたい方はこちら!おすすめポイント
- 路面店
- 駐車2台以上可
- スケルトン
- 出店するなら…この業種がおすすめ!
- 飲食全般(重飲食含む)

- 喫茶・カフェ(軽飲食)

- バー・クラブ・スナック

- 小売・物販

- 美容・健康・介護

- 医療

- 教育・スクール

- 事務所

- アミューズメント

※出店不可の業種:飲食全般
交通
- 魚市場通駅函館市電2系統、函館市電5系統徒歩6分(約421m)
- 宝来町駅函館市電2系統徒歩7分(約547m)
- 函館バス 「栄町停」停徒歩2分(約98m)
物件概要
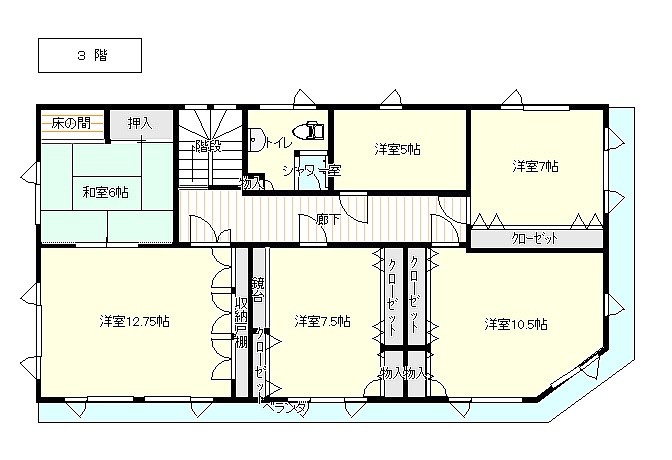
所在階/建物の階建 地上3階建 主要採光面 南西 構造 鉄骨造 間取り その他2階:和室12.5帖 LDK25.4帖 洋室3帖 / 3階:和室6帖 洋室5帖 洋室7帖 洋室10.5帖 洋室7.5帖 洋室12.75帖 バルコニー あり契約期間 権利金 住宅保険 出店推奨業種 小売・物販、事務所 出店不可業種 飲食全般 土地面積 184.5m² (55.81坪)(公簿)接道状況 角地 用途地域 - 近隣商業地域(建ぺい率:80% / 容積率:300%)
引渡し 相談 管理人 無 取引態様 仲介 物件No 設備・特徴 - エアコン付
- ビルトインエアコン
- 路面店
- スケルトン
- ガス設備
- 照明器具付
備考 主な周辺施設
- セブンイレブン函館東川町店約125m(徒歩2分)
- 認定こども園龍谷幼稚園約162m(徒歩3分)
- 認定こども園龍谷幼稚園約163m(徒歩3分)
- ローソン函館東川町店約245m(徒歩4分)
- タウンマート約301m(徒歩4分)
- DCMニコット宝来店約373m(徒歩5分)
- セイコーマート函館豊川店約385m(徒歩5分)
- 函館宝来郵便局約395m(徒歩5分)
- Can★Doイエローグローブ豊川店約454m(徒歩6分)
- イエローグローブ豊川店約455m(徒歩6分)
-
ホームページはこちら
北海道知事 渡島(4) 第1102号
マークリテール(株) 【WEB面談可】- 加入団体
- (公社)全日本不動産協会
- 保証協会
- (公社)不動産保証協会
- 公正取引協議会
- (一社)北海道不動産公正取引協議会
※連合隊は物件情報の精度向上に努めています:「物件情報に誤りがある」「成約済みである」などお気付きの点がございましたらこちらよりご連絡ください。
写真枚数:30枚
1階
1階
1階
1階
1階
1階
2階
2階
2階
2階
2階
2階
2階
2階
2階
2階
2階
2階
3階
3階
3階
3階
3階
3階
3階
不動産業界歴20年以上のベテランスタッフ在籍!売買・賃貸・管理の総合不動産会社です!
函館市近郊の歴史・文化も知り尽くしたベテランスタッフが【売買・賃貸・管理】を対応させて頂き、知識・経験を基にお客様のご要望にお応えいたします。金融機関とのファイナンス案件もお任せください。