北斗市七重浜8丁目食品工場
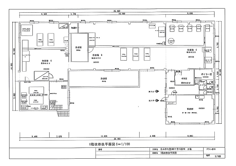
ここに注目!北斗市七重浜8丁目に位置する、食品工場として事業に最適な物件をご紹介します。 冷凍庫・冷蔵庫・真空機など、食品製造に欠かせない設備が整っており、スムーズな事業開始をサポートします。 さらに、従業員様の福利厚生に配慮した「寮完備」は、人材確保においても魅力的なポイントとなるでしょう。 敷地面積1300㎡超、専有面積873㎡超の広々とした空間は、様々な事業展開に対応できます。堅牢な鉄骨造2階建て、北と西に接道する角地のため、搬入出もスムーズに行えます。駐車場も完備しており、車両でのアクセスも便利です。 この機会に、貴社のビジネス拡大の拠点としてご検討ください。ご興味がございましたら、お気軽にお問い合わせください。
この物件は居抜き物件です。
現状の設備が残されたまま取引されるため、初期費用を抑え速やかに事業を開始できるメリットがあります。
| 賃料・費用 |
55万円
(+管理費等 -円)
坪単価:約2,081円/坪
敷100万円礼50万円仲55万円
|
|---|---|
| 専有面積 | 873.89m² (264.35坪) |
| 住所 | 北海道北斗市七重浜8-12-10 |
| 交通 | 東久根別駅(徒歩15分)道順を見る |
| 階/階建 | 2階建 |
| 築年月 | 築38年(1987年9月) |
| 駐車場 |
あり
|
空室確認、見学、詳細を知りたい方はこちら!
お電話の際は「連合隊の物件」とお伝えください。
新着 情報掲載期限:あと30日(更新日 2025/12/5)
- 物件写真・概要
- 周辺地図
-
空室確認、見学、詳細を知りたい方はこちら!
おすすめポイント
- 駐車場あり
交通色がついているアイコンをクリックすると、本物件までの道順を見ることができます。
物件概要
所在階/建物の階建 地上2階建 主要採光面 構造 鉄骨造 間取り 契約期間 3年間 更新料/更新手数料 なし 権利金 住宅保険 出店推奨業種 その他(工場・倉庫) 出店不可業種 居抜き情報 [その他] の居抜き土地面積 1300.22m² (393.31坪)(公簿)接道状況 角地 - 北側幅7.90mの道に接道
- 西側幅7.90mの道に接道
用途地域 - 工業地域(建ぺい率:60% / 容積率:200%)
引渡し 相談 管理人 非常駐 取引態様 仲介 物件No 設備・特徴 - 照明器具付
- ガス設備
- 給排水設備
備考 冷凍庫・冷蔵庫・真空機など食品工場に必要な設備が利用可能です。 主な周辺施設色がついているアイコンをクリックすると、本物件までの道順を見ることができます。
-
※連合隊は物件情報の精度向上に努めています:「物件情報に誤りがある」「成約済みである」などお気付きの点がございましたらこちらよりご連絡ください。
写真枚数:23枚
函館市内賃貸マンション・貸家・事業用地をお探しならマルエイプロパティマネジメント函館支社へ
マルエイプロパティマネジメント函館支社はグループ企業:創業1885年の老舗及能株式会社の物件を主に取り扱っております。賃貸・貸家・事業用地などお探しの物件ございましたら、お気軽にお問い合わせください。