グリーンエステートビル路面店舗
ここに注目!元中華料理屋の跡地!!内装品や厨房用品などの造作譲渡料100万円でお譲りいたします!!飲食店オープンをお考えなら、即座に開業出来ますね。 まずは内覧いかがでしょうか? OKハウスいさり火店☎0138-55-6565までお気軽にお問合せ下さい☆
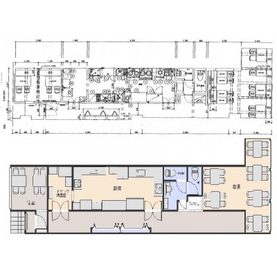
この物件は 居酒屋 レストラン 焼肉店 の居抜き物件です。
現状の設備が残されたまま取引されるため、初期費用を抑え速やかに事業を開始できるメリットがあります。
この物件は、仲介手数料がかかりません。
この物件の貸主は、情報を掲載している不動産会社です。仲介物件ではないため、仲介手数料は発生しません。
| 賃料・費用 |
14万3,000円
(+管理費等 なし)
坪単価:約5,358円/坪
敷26万円礼13万円仲なし
保証金:なし
|
|---|---|
| 専有面積 | 88.26m² (26.69坪) |
| 住所 | 北海道函館市本町22-11 |
| 交通 | 五稜郭公園前駅(徒歩3分)|中央病院前駅(徒歩8分)|杉並町駅(徒歩9分)|千代台駅(徒歩12分)|柏木町駅(徒歩16分)道順を見る |
| 階/階建 | 路面 / 8階建 |
| 築年月 | 築41年(1984年10月) |
| 駐車場 |
なし
|
空室確認、見学、詳細を知りたい方はこちら!
お電話の際は「連合隊の物件」とお伝えください。
情報掲載期限:あと30日(更新日 2026/3/21)
- 物件写真・概要
- 周辺地図
-
空室確認、見学、詳細を知りたい方はこちら!
おすすめポイント
- 路面店
- 駅徒歩3分以内
- 商店街に面す
- 出店するなら…この業種がおすすめ!
- 飲食全般(重飲食含む)

- 喫茶・カフェ(軽飲食)

- バー・クラブ・スナック

- 小売・物販

- 美容・健康・介護

- 医療

- 教育・スクール

- 事務所

- アミューズメント

交通色がついているアイコンをクリックすると、本物件までの道順を見ることができます。
- 五稜郭公園前駅函館市電2系統、函館市電5系統駅近!徒歩3分(約219m)
- 中央病院前駅函館市電5系統、函館市電2系統徒歩8分(約570m)
- 杉並町駅函館市電5系統、函館市電2系統徒歩9分(約709m)
- 千代台駅函館市電5系統、函館市電2系統徒歩12分(約935m)
- 柏木町駅函館市電5系統、函館市電2系統徒歩16分(約1.3km)
物件概要
所在階/建物の階建 1階 / 地上8階建 主要採光面 北 構造 鉄筋コンクリート(RC)造 間取り 契約期間 権利金 なし 住宅保険 出店推奨業種 飲食全般(重飲食含む) 出店不可業種 居抜き情報 [居酒屋、レストラン、焼肉店] の居抜き造作譲渡料 100万円 接道状況 一方 引渡し 相談(3月末退去予定) 管理人 取引態様 貸主 物件No 設備・特徴 - 商店街に面す
- 照明器具付
- ガス設備
- 給排水設備
- エアコン付
- 路面店
備考 ◇居抜き(現在焼肉店)現状渡しとなります。 主な周辺施設色がついているアイコンをクリックすると、本物件までの道順を見ることができます。
-
ホームページはこちら
国土交通大臣 (3) 第8578号
OKハウスいさり火通店 (株)小倉工務店- 加入団体
- (公社)北海道宅地建物取引業協会
- 保証協会
- (公社)全国宅地建物取引業保証協会
- 公正取引協議会
- 未加盟
※連合隊は物件情報の精度向上に努めています:「物件情報に誤りがある」「成約済みである」などお気付きの点がございましたらこちらよりご連絡ください。
写真枚数:30枚


お部屋探し!お役に立ちます★
お部屋を探しておいでのお客様! お気軽にOKハウスいさり火通店までお問合せ下さいませ。 お客様の立場に立ち、豊富な物件の中からぴったりのお部屋をご案内致します。 何でもお気軽にご相談ください!