本町貸店舗
この物件は、仲介手数料がかかりません。
この物件の貸主は、情報を掲載している不動産会社です。仲介物件ではないため、仲介手数料は発生しません。
| 賃料・費用 |
9万円
(+管理費等 -円)
坪単価:約9,434円/坪
敷なし礼なし仲なし
保証金:なし
|
|---|---|
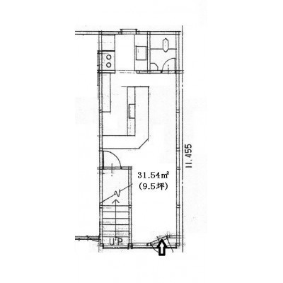
| 専有面積 | 31.54m² (9.54坪) |
| 住所 | 北海道函館市本町3-16 |
| 交通 | 中央病院前駅(徒歩1分) |
| 階/階建 | 1階 |
| 築年月 | 築36年(1989年4月) |
| 駐車場 |
なし
|
空室確認、見学、詳細を知りたい方はこちら!
お電話の際は「連合隊の物件」とお伝えください。
情報掲載期限:あと19日(更新日 2025/12/11)
- 物件写真・概要
- 周辺地図
-
空室確認、見学、詳細を知りたい方はこちら!
おすすめポイント
- 即入居可
- 駅徒歩1分以内
- 敷・礼・保0円
- 出店するなら…この業種がおすすめ!
- 飲食全般(重飲食含む)

- 喫茶・カフェ(軽飲食)

- バー・クラブ・スナック

- 小売・物販

- 美容・健康・介護

- 医療

- 教育・スクール

- 事務所

- アミューズメント

※出店不可の業種:美容・理容、アミューズメント
交通色がついているアイコンをクリックすると、本物件までの道順を見ることができます。
物件概要
所在階/建物の階建 1階 主要採光面 南 構造 木造 間取り ワンルーム 契約期間 5年間 更新料/更新手数料 なし 権利金 50万円 住宅保険 出店推奨業種 飲食全般(重飲食含む)、バー・クラブ・スナック 出店不可業種 美容・理容、アミューズメント 引渡し 即時 管理人 取引態様 貸主 物件No 20250701A 設備・特徴 備考 -
ホームページはこちら
北海道知事 渡島(14) 第283号
(有)日昇商事
※連合隊は物件情報の精度向上に努めています:「物件情報に誤りがある」「成約済みである」などお気付きの点がございましたらこちらよりご連絡ください。
写真枚数:2枚
「 歴史ある街に豊かさと潤いを 」
不動産全般のご相談承ります。