NEXTⅢ 1階テナント
ここに注目!大野新道沿いの角地! 駐車4台可!(賃料に含む) ショッピングモール(ポールスター)、市立函館病院近く! お問い合わせは管理会社の当社まで☆【ワイズストーリー 0138-84-5006】
| 賃料・費用 |
14万8,500円
(+管理費等 なし)
坪単価:約5,759円/坪
敷13万5,000円礼13万5,000円仲14万8,500円
|
|---|---|
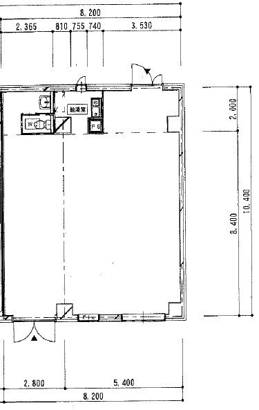
| 専有面積 | 85.28m² (25.79坪) |
| 住所 | 北海道函館市港町1-14-3 |
| 交通 | 函館バス「亀田港」停 (徒歩2分) |
| 階/階建 | 路面 / 5階建 |
| 築年月 | 築18年(2007年3月) |
| 駐車場 |
あり (無料) 駐車可能台数:4台
|
【WEB面談可】
空室確認、見学、詳細を知りたい方はこちら!
お電話の際は「連合隊の物件」とお伝えください。
情報掲載期限:あと27日(更新日 2025/12/12)
- 物件写真・概要
- 周辺地図
-
【WEB面談可】
空室確認、見学、詳細を知りたい方はこちら!おすすめポイント
- 即入居可
- 路面店
- 幹線道路沿い
- 駐車2台以上可
- 出店するなら…この業種がおすすめ!
- 飲食全般(重飲食含む)

- 喫茶・カフェ(軽飲食)

- バー・クラブ・スナック

- 小売・物販

- 美容・健康・介護

- 医療

- 教育・スクール

- 事務所

- アミューズメント

交通
- 函館バス「亀田港」停 徒歩2分
物件概要
所在階/建物の階建 1階(右) / 地上5階建 主要採光面 南 構造 鉄筋コンクリート(RC)造 間取り その他 契約期間 3年間 権利金 住宅保険 出店推奨業種 小売・物販、美容・健康・介護、事務所 出店不可業種 引渡し 即時 管理人 取引態様 仲介 物件No 設備・特徴 - 幹線道路沿い
- 給排水設備
- 路面店
備考 ■エアコンは残置物となります。 ■保証会社利用必須(初回保証料:賃料等総額の50% 月額保証料:800円税別 変動有・更新料:10,000円)■間取は現状を維持します。 主な周辺施設色がついているアイコンをクリックすると、本物件までの道順を見ることができます。
-
ホームページはこちら
北海道知事 渡島(2) 第1186号
函館不動産エージェント (株)ワイズストーリー 【WEB面談可】〒040-0015
TEL:0138-84-5006(物件についてのお問合せ先)
TEL:0138-84-5994(代表電話 兼 管理の問合せ先)
FAX:0138-84-5995
営業時間:10:00~17:00
定休日:毎週 土曜・日曜・祝日
- 保証協会
- (公社)全国宅地建物取引業保証協会
- 公正取引協議会
- (一社)北海道不動産公正取引協議会
※連合隊は物件情報の精度向上に努めています:「物件情報に誤りがある」「成約済みである」などお気付きの点がございましたらこちらよりご連絡ください。
写真枚数:30枚
函館不動産エージェント (株)ワイズストーリー
函館市・北斗市・七飯町を中心とした道南エリアの管理・仲介(賃貸/売買)は当社にお任せください。アパート・マンション・貸家はもちろんのこと、駐車場やテナント(店舗・事務所・倉庫)も取り扱いしております。