【新開町3丁目】賃貸物件(区分貸し)・事業用地(約500㎡)
ここに注目!苫小牧市新開町に、新しいビジネスの拠点にぴったりの貸事務所物件が登場しました!広々とした専有面積136.0㎡は、様々な業種に対応できるゆとりの空間。駐車場も完備しているので、お車での通勤や来客時も安心です。 鉄骨造のしっかりとした建物は、北東・北西の角地に位置しており、視認性も良好。内装はスケルトンなので、お客様のビジネススタイルに合わせて自由にレイアウトしていただけます。男女別トイレや給排水設備も整っており、快適なオフィス環境をサポート。 周辺にはコンビニが徒歩4分、ホームセンターも徒歩圏内にあり、日々の買い出しや急な資材調達にも困りません。賃料は税込45万円、敷金も同額です。定期借家2年で、計画的な事業展開を応援します。この機会に、理想のオフィス空間を実現しませんか?
この物件の契約期間は 2年間です。
定期借家物件は、賃貸借契約期間満了後、原則として契約の更新ができない物件です。再契約の可否については不動産会社にお問合せください。
| 賃料・費用 |
45万円
(+管理費等 -円)
坪単価:約1.1万円/坪
敷45万円(1ヶ月)仲45万円
保証金:なし(償却区分:年)
|
|---|---|
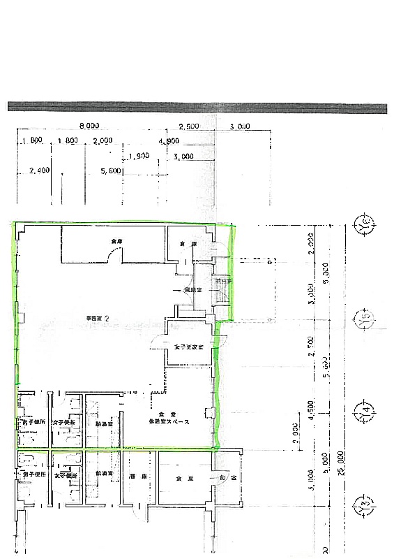
| 専有面積 | 136m² (41.14坪) |
| 住所 | 北海道苫小牧市新開町3-13-4 |
| 交通 | |
| 階/階建 | 1階 / 1階建 |
| 築年月 | 築29年(1996年11月) |
| 駐車場 |
あり
|
空室確認、見学、詳細を知りたい方はこちら!
お電話の際は「連合隊の物件」とお伝えください。
情報掲載期限:あと11日(更新日 2026/4/23)
- 物件写真・概要
- 周辺地図
-
空室確認、見学、詳細を知りたい方はこちら!
おすすめポイント
- 即入居可
- 駐車場あり
- スケルトン
- 男女別トイレ
物件概要
所在階/建物の階建 1階(B) / 地上1階建 主要採光面 構造 鉄骨造 間取り 契約期間 定期借家(2年間) 権利金 なし 住宅保険 土地面積 503m² (152.15坪)接道状況 角地 - 北東側幅18.00mの公道に66.46m接道
- 北西側幅12.00mの公道に43.78m接道
用途地域 - 準工業地域(建ぺい率:60% / 容積率:200%)
引渡し 即時 管理人 無 取引態様 仲介 物件No 設備・特徴 - 給排水設備
- スケルトン
- 男女別トイレ
備考 主な周辺施設色がついているアイコンをクリックすると、本物件までの道順を見ることができます。
-
ホームページはこちら
北海道知事 胆振(1) 第1077号
クレール(株)〒053-0813
TEL:0144-82-9918
FAX:0144-82-9917
営業時間:9:00~18:00
定休日:第2 日曜 / 第4 日曜 / 毎週 水曜
- 加入団体
- (公社)北海道宅地建物取引業協会
- 保証協会
- (公社)全国宅地建物取引業保証協会
- 公正取引協議会
- (一社)北海道不動産公正取引協議会
※連合隊は物件情報の精度向上に努めています:「物件情報に誤りがある」「成約済みである」などお気付きの点がございましたらこちらよりご連絡ください。
写真枚数:7枚
◇◇ゴールデンウィーク休業のお知らせ◇◇
誠に勝手ながら、2026年4月25日(土)~2026年5月6日(水)の期間を ゴールデンウィーク休業とさせていただきます。 休業期間中にいただきましたお問い合わせにつきましては、 5月7日(木)以降、順次対応させていただきます。