宮原アパート
ここに注目!【当社管理物件】 初期費用を抑えたい方に朗報です。敷金・礼金・権利金が全てゼロ円!さらに、嬉しい駐車場1台無料の特典付きです。 交通アクセスも便利で、函館バス「ポリテクセンター前」停まで徒歩2分。通勤・通学にも大変便利な立地です。 室内は使いやすい2LDKの間取り。広々とした8帖のLDKは、ご家族での団らんの時間をゆったりと過ごせます。落ち着いた和室が二間あり、くつろぎの空間としても、お子様の遊び場としても多用途に利用可能です。 最上階のお部屋なので、日当たりや風通しも良好。バス・トイレ別で快適に暮らせるほか、全居室収納や便利な物置もあり、お荷物が多い方も安心です。 徒歩5分圏内にコンビニ、徒歩8分圏内にスーパー「生鮮げんき市場」があり、毎日のお買い物もスムーズ。郵便局や銀行も近く、生活利便性に優れた住環境が魅力です。 お問い合わせをお待ちしております。ぜひ一度、現地をご見学ください!
| 賃料・費用 |
4万円(+管理費等 -円)
仲4万4,000円
|
|---|---|
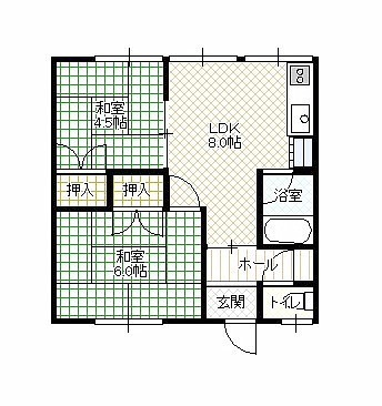
| 間取・専有 |
2LDK└ LD8帖 K 和室6帖 和室4.5帖
|
| 住所 | 北海道函館市日吉町3丁目13番21号 |
| 交通 | 函館バス「ポリテクセンター前」停 (徒歩2分) |
| 築年月 | 築51年(1974年3月) |
| 駐車場 |
あり 駐車可能台数:1台
|
空室確認、見学、詳細を知りたい方はこちら!
お電話の際は「ホームページを見て」とお伝えください。
情報掲載期限:あと21日(更新日 2025/12/11)
- 物件写真・概要
- 周辺地図
-
▼クリックで左の拡大画像が変わります。 すべての写真を拡大
空室確認、見学、詳細を知りたい方はこちら!
おすすめポイント
- バス/トイレ別
- オートロック
- 2階以上
- 都市ガス
- 室内洗濯機置場
- 駐車場あり
- エアコン付
- 独立洗面台
- 追い焚き風呂
- ペット相談可
- デザイナーズ
- 敷金・礼金0円
- 近くて便利!徒歩5分以内にある施設
- 5分
5分- 周辺施設を地図で確認
交通
- 函館バス「ポリテクセンター前」停 徒歩2分(約160m)
物件概要
所在階/建物の階建 2階(2F左から3戸目) / 地上2階建 総戸数 7戸 主要採光面 構造 木造 契約期間 2年間 住宅保険 1万5,000円(2年間) 入居可能時期 即時 管理人 無 取引態様 仲介 物件No TI-1074 設備・特徴 - 物置
- 最上階
- 照明器具付
- 室内洗濯機置場
- 全居室収納あり
- バス/トイレ別
- LPガス
- 灯油暖房
- 日当り良好
備考 学区色がついているアイコンをクリックすると、本物件までの道順を見ることができます。
主な周辺施設色がついているアイコンをクリックすると、本物件までの道順を見ることができます。
-
ホームページはこちら
北海道知事 渡島(7) 第935号
(有)富建不動産- 加入団体
- (公社)北海道宅地建物取引業協会
- 保証協会
- (公社)全国宅地建物取引業保証協会
- 公正取引協議会
- (一社)北海道不動産公正取引協議会
写真枚数:19枚
外観
(2F左から3戸目)*間取等、現況と異なる場合は現況優先と致し
玄関
玄関
居間
居間
居間
居間
キッチン
和室
和室
押入
和室
和室
押入
浴室
浴室
ホール
トイレ
笑顔のために
ハートフルアドバイザーがあなたのご希望の物件をお探しします! ハートフルアドバイザーが応援します!