白老町貸テナント(2階部)
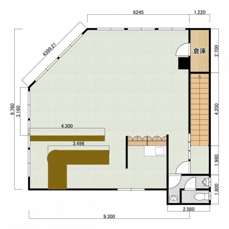
ここに注目!JR白老駅徒歩2分の立地です。駅前十字道路の角地。2階部の貸テナントとなります。室内はカウンターや食器カウンターがありますので飲食店向きの作りとなっております。現状有姿での貸し出しとなります。駐車場は南側に2台。徒歩1分の場所に月極駐車場1台3.000円もございます。家賃保証会社審査、契約必要。借家人保険加入必要。
| 賃料・費用 |
8万8,000円
(+管理費等 -円)
坪単価:約2,853円/坪
礼なし仲8万8,000円
|
|---|---|
| 専有面積 | 102m² (30.85坪) |
| 住所 | 北海道白老郡白老町東町2丁目1番1号 |
| 交通 | 白老駅(徒歩2分)道順を見る |
| 階/階建 | 2階 / 2階建 |
| 築年月 | |
| 駐車場 |
あり 駐車可能台数:2台
|
空室確認、見学、詳細を知りたい方はこちら!
お電話の際は「連合隊の物件」とお伝えください。
情報掲載期限:あと30日(更新日 2025/12/18)
- 物件写真・概要
- 周辺地図
-
空室確認、見学、詳細を知りたい方はこちら!
おすすめポイント
- 駅徒歩3分以内
- 複数路線利用可
- 駅前立地
- 商店街に面す
- 幹線道路沿い
- 駐車2台以上可
- 出店するなら…この業種がおすすめ!
- 飲食全般(重飲食含む)

- 喫茶・カフェ(軽飲食)

- バー・クラブ・スナック

- 小売・物販

- 美容・健康・介護

- 医療

- 教育・スクール

- 事務所

- アミューズメント

※出店不可の業種:水商売、アミューズメント
交通色がついているアイコンをクリックすると、本物件までの道順を見ることができます。
物件概要
所在階/建物の階建 2階 / 地上2階建 主要採光面 北西 構造 木造 間取り ワンルーム 契約期間 2年間 権利金 24万円 住宅保険 (2年間) 出店推奨業種 喫茶・カフェ(軽飲食) 出店不可業種 水商売、アミューズメント その他費用 一時金 - 退去時清掃料:8万8,000円
引渡し 相談 管理人 無 取引態様 仲介 物件No 設備・特徴 - 複数路線利用可
- 駅前立地
- 商店街に面す
- 幹線道路沿い
- 男女別トイレ(共用部)
備考 主な周辺施設色がついているアイコンをクリックすると、本物件までの道順を見ることができます。
-
※連合隊は物件情報の精度向上に努めています:「物件情報に誤りがある」「成約済みである」などお気付きの点がございましたらこちらよりご連絡ください。
写真枚数:22枚
白老駅
月極駐車場
年末年始休業のお知らせ 12月27日(土)より1月4日(日) 1月5日より営業いたします。
営業時間 9時~17時 定休日 水、日、祝日