明野南通りテナントB号
ここに注目!【新築】イオンモール苫小牧正面向かい!国道36号線沿いの視認性を誇るテナント 令和8年10月完成予定、国道36号線沿いの好立地に新築テナントが登場します。 本物件の最大の強みは、圧倒的な「集客力」と「視認性」です。 年間を通じて多くの買い物客で賑わう「イオンモール苫小牧」の正面向かいに位置し、隣接する大手キャリアショップ(au・docomo)と共に、昼夜を問わず多くの車・人が行き交うエリアです。 ■物件のポイント ・おすすめのロケーション: 国道36号線沿いで視認性が高く、看板効果も期待できます。 ・広々とした駐車場: 敷地内に駐車スペースを完備。お車での来店にもしっかり対応。 ・幅広い業種に対応: 物販、飲食、サービス業など、様々なビジネスモデルのご相談が可能です。 ・選べる区画: 約24.5坪の2区画(B・C)をご用意。一括借り(49坪)も可能です。 空港からのアクセスも良好なため、道外や関東圏からの新規出店・拠点展開にも非常におすすめです。新築ならではの清潔感あふれる店舗で、新たなビジネスをスタートさせませんか? 詳細や諸条件については、お気軽にお問い合わせください。
| 賃料・費用 |
68万5,000円
(+管理費等 -円)
坪単価:約3.2万円/坪
敷373万6,368円仲68万5,000円
保証金:124万5,456円
|
|---|---|
| 専有面積 | 71.21m² (21.54坪) |
| 住所 | 北海道苫小牧市明野新町1-1 |
| 交通 | 苫小牧市営バス 「職訓センター前」停(徒歩4分) |
| 階/階建 | 路面 / 1階建 |
| 築年月 | 建築中(2026年10月完成予定) |
| 駐車場 |
あり
|
空室確認、見学、詳細を知りたい方はこちら!
お電話の際は「連合隊の物件」とお伝えください。
情報掲載期限:あと29日(更新日 2026/5/10)
- 物件写真・概要
- 周辺地図
-
▼クリックで左の拡大画像が変わります。 すべての写真を拡大
空室確認、見学、詳細を知りたい方はこちら!
おすすめポイント
- 路面店
- 商店街に面す
- 幹線道路沿い
- 駐車場あり
- スケルトン
- 出店するなら…この業種がおすすめ!
- 飲食全般(重飲食含む)

- 喫茶・カフェ(軽飲食)

- バー・クラブ・スナック

- 小売・物販

- 美容・健康・介護

- 医療

- 教育・スクール

- 事務所

- アミューズメント

交通
- 苫小牧市営バス 「職訓センター前」停徒歩4分
物件概要
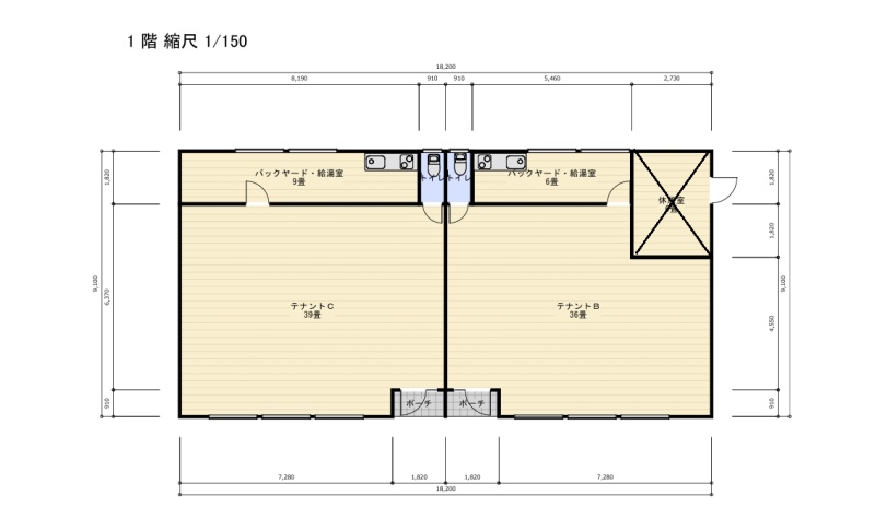
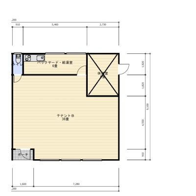
所在階/建物の階建 1階(B) / 地上1階建 主要採光面 南西 構造 木造 間取り その他その他36帖 その他6帖 契約期間 5年間 更新料/更新手数料 なし 権利金 住宅保険 出店推奨業種 小売・物販、医療、事務所 出店不可業種 接道状況 一方 用途地域 - 第2種住居地域(建ぺい率:60% / 容積率:200%)
引渡し 相談(完成後引き渡し) 管理人 無 取引態様 仲介 物件No 設備・特徴 - 商店街に面す
- 幹線道路沿い
- スケルトン
- 路面店
備考 完成予定令和8年10月を予定しております。室内の設備状況等は随時ネットにて更新致します。 尚、一部、別テナント様の休憩所として使用するスペースがございますが、出入り口は別となります。 B号とC号では、賃料が異なります。 主な周辺施設色がついているアイコンをクリックすると、本物件までの道順を見ることができます。
-
ホームページはこちら
北海道知事 胆振(2) 第1013号
(株)ニュートラルアドバンテージ- 加入団体
- (公社)北海道宅地建物取引業協会
- 保証協会
- (公社)全国宅地建物取引業保証協会
- 公正取引協議会
- (一社)北海道不動産公正取引協議会
※連合隊は物件情報の精度向上に努めています:「物件情報に誤りがある」「成約済みである」などお気付きの点がございましたらこちらよりご連絡ください。
写真枚数:10枚
建築予定画像
間取り予定図
予定画像
予定画像
B予定間取り図
テナントイメージ図(物販)
テナントイメージ図(オフィス)
テナントイメージ図2
不動産を売るなら!(株)ニュートラルアドバンテージへお任せください!
不動産売買を中心に、賃貸仲介・管理、資産運営など、不動産のことなら何でもご相談下さい!苫小牧市内及び近郊とサポート致します。