ウトナイ南14000坪・貸地「分割相談可」
ここに注目!北海道苫小牧市ウトナイ南に、広々とした約14,000坪(46,476.96㎡)の貸地が登場しました!平坦な地形に、北・西・南の三方向が公道に面した角地という恵まれた立地が魅力です。準工業地域に指定されており、モータープールや車両保管、土場、店舗開発など、幅広い事業展開にご活用いただけます。 お客様の事業計画に合わせて、分割のご相談も承っておりますので、お気軽にお申し付けください。また、事業用定期借地契約についても柔軟に対応可能ですのでお気軽にご相談下さい。 さらに、自社所有物件のため、通常発生する仲介手数料が不要なのも嬉しいポイント。初期費用を抑えて、新たなビジネスをスタートさせたい方にぴったりの物件です。周辺には保育園や公園、コンビニ、スーパーもあり、従業員の皆様にとっても便利な環境が整っています。この広大な土地で、夢のビジネスを実現しませんか? 事業用定期借地契約の場合契約金・賃料等の変動が御座います。
この物件は、仲介手数料がかかりません。
この物件の貸主は、情報を掲載している不動産会社です。仲介物件ではないため、仲介手数料は発生しません。
| 賃料・費用 |
480万円(+管理費等 なし)
坪単価:約342円/坪
敷480万円(1ヶ月)礼480万円(1ヶ月)仲なし
保証金:なし/敷引・償却金:なし
|
|---|---|
| 土地面積 | 46476.96m² (14059.28坪)(公簿) |
| 住所 | 北海道苫小牧市ウトナイ南1-907-1 |
| 交通 | |
| 用途地域 |
|
空室確認、見学、詳細を知りたい方はこちら!
お電話の際は「連合隊の物件」とお伝えください。
情報掲載期限:あと30日(更新日 2026/1/20)
- 物件写真・概要
- 周辺地図
-
空室確認、見学、詳細を知りたい方はこちら!
おすすめポイント
- 南道路
- 角地
- 都市ガス
- 上下水道
- 電気
物件概要
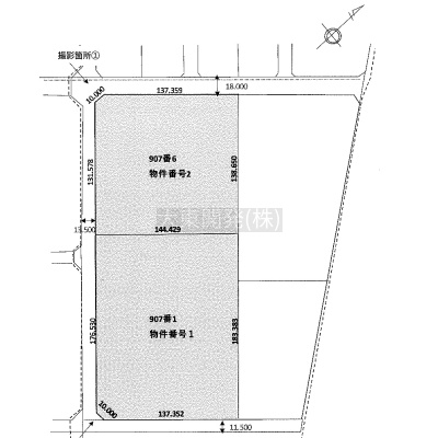
接道状況 角地 - 北側幅18.00mの公道に137.00m接道
- 西側幅13.50mの公道に307.00m接道
- 南側幅11.50mの公道に137.00m接道
都市計画 市街化区域 私道負担 なし 地目/地勢 宅地 地勢:平坦 国土法届出 不要 契約期間 更新料/更新手数料 なし / なし 住宅保険 引渡し 即時 取引態様 貸主 物件No 設備・特徴 - 角地
- 整形地
- 南道路
- 営業マンおすすめ
- 仲介料無
- 大型
備考 貸地・自社所有地・事業用定期借地契約相談可 主な周辺施設色がついているアイコンをクリックすると、本物件までの道順を見ることができます。
-
※連合隊は物件情報の精度向上に努めています:「物件情報に誤りがある」「成約済みである」などお気付きの点がございましたらこちらよりご連絡ください。
写真枚数:15枚
★創業51年になりました。市内約7000室の管理戸数で、お待ちしております。
★【福祉割引物件もスタート!】【びっくり賃料1~2か月お家賃サービス!】◆若草町国道36号線沿い、総合体育館道路むかいの平屋の建物が当社です。お得なお部屋探しのアイデアを続々発表しています!