時任町 一戸建て
ここに注目!小中学校まで徒歩10分以内の立地。スーパーや病院もあり交通の便も良いです。
| 賃料・費用 |
6万4,000円(+管理費等 -円)
敷6万4,000円(1ヶ月)礼6万4,000円(1ヶ月)仲7万400円
|
|---|---|
| 間取・専有 |
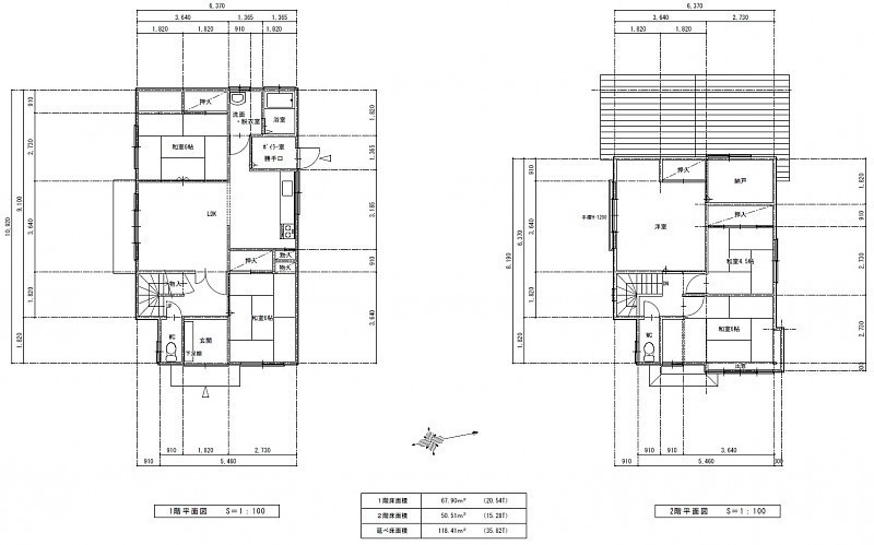
5LDK└ 1階:LD8帖 K6帖 和室6帖 / 2階:洋室9帖 S3帖 和室6帖 和室4.5帖
|
| 住所 | 北海道函館市時任町6番10号 |
| 交通 | 中央病院前駅(徒歩4分)|千代台駅(徒歩5分) |
| 築年月 | 築47年(1978年8月) |
| 駐車場 |
あり (無料) 駐車可能台数:1台
|
空室確認、見学、詳細を知りたい方はこちら!
お電話の際は「連合隊の物件」とお伝えください。
情報掲載期限:あと14日(更新日 2025/12/3)
- 物件写真・概要
- 周辺地図
-
▼クリックで左の拡大画像が変わります。 すべての写真を拡大
空室確認、見学、詳細を知りたい方はこちら!
おすすめポイント
- オール電化
- 南向き
- 角地
- 都市ガス
- 車庫あり
- 駐車場あり
- エアコン付
- 平屋
- 追い焚き風呂
- ペット相談可
- リフォーム済み
- 敷金・礼金0円
- 近くて便利!徒歩5分以内にある施設
- 5分
5分- 周辺施設を地図で確認
交通色がついているアイコンをクリックすると、本物件までの道順を見ることができます。
物件概要
建物の階建 地上2階建 主要採光面 西 構造 木造 契約期間 2年間 住宅保険 お問合せください 入居可能時期 相談 管理人 取引態様 仲介 物件No 設備・特徴 - バス/トイレ別
- 温水洗浄トイレ
- 独立洗面台
- 浴室に窓
- 都市ガス
- 灯油ボイラー
- 物置
- シューズボックス
- トイレ2ヶ所以上
- ガスコンロ
- コンロ3口以上
- システムキッチン
備考 学区色がついているアイコンをクリックすると、本物件までの道順を見ることができます。
主な周辺施設色がついているアイコンをクリックすると、本物件までの道順を見ることができます。
-
ホームページはこちら
北海道知事 渡島(2) 第1175号
(株)函館BASE建築事務所 サイエンスホーム函館店- 加入団体
- (公社)北海道宅地建物取引業協会
- 保証協会
- (公社)全国宅地建物取引業保証協会
- 公正取引協議会
- (一社)北海道不動産公正取引協議会
※連合隊は物件情報の精度向上に努めています:「物件情報に誤りがある」「成約済みである」などお気付きの点がございましたらこちらよりご連絡ください。
写真枚数:25枚
2018年撮影
2018年撮影
2018年撮影
2018年撮影
2018年撮影
2018年撮影
2018年撮影
2018年撮影
1階トイレ
2018年撮影
2階トイレ
函館BASE建築事務所は、お住まいを売るだけでなく、心豊かなライフスタイルをご提案します。
弊社でも冬は薪ストーブを焚き、夏は家庭菜園など少しラフなスタイルで仕事をしております。※※※※※※※ コロナ対策実施中 ※※※※※※※