パルティール港町
ここに注目!⭐ポールスターまで徒歩4分⭐ エントランスには防犯に効果的なオートロックを完備❗インターネットはWi-Fiが無料で使い放題なのでスマホもパソコンも何台でも繋げてご利用いただけます🎵契約、解約手続き不要👌 コンビニが近いので買い忘れやちょっとしたお買い物にも便利です😊🎵 最近は必須条件にする方も多いエアコン付きで暑い日も快適に過ごすことができますよ🎐🎐 👀オンライン内見可能です👀 現地待ち合わせ内見可能🚩 初期費用をクレジットカードでお支払いいただけます💳 函館近郊エリアのお部屋幅広くご紹介可✨ お問い合わせはエイブルNW函館五稜郭店【0138-84-8630】までお気軽に📩📩
| 賃料・費用 |
5万円(+管理費等 5,000円)
敷なし礼なし仲5万5,000円
保証金:なし
|
|---|---|
| 間取・専有 |
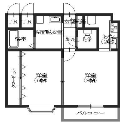
1LDK(40.93m²)└ LD8帖 K2.5帖 洋室6帖
|
| 住所 | 北海道函館市港町1-15-30 |
| 交通 | 函バス「亀田港」(徒歩1分) |
| 築年月 | 築23年(2002年3月) |
| 駐車場 |
あり (5,500円/台) 駐車可能台数:1台
|
【WEB面談可】
空室確認、見学、詳細を知りたい方はこちら!
お電話の際は「連合隊の物件」とお伝えください。
情報掲載期限:あと18日(更新日 2026/2/5)
- 物件写真・概要
- 周辺地図
-
【WEB面談可】
空室確認、見学、詳細を知りたい方はこちら!おすすめポイント
- バス/トイレ別
- オートロック
- 2階以上
- 都市ガス
- 室内洗濯機置場
- 駐車場あり
- エアコン付
- 独立洗面台
- 追い焚き風呂
- ペット相談可
- デザイナーズ
- 敷・礼・保0円
- 近くて便利!徒歩5分以内にある施設
- 5分
5分- 5分
5分- 周辺施設を地図で確認
交通
- 函バス「亀田港」徒歩1分
物件概要
所在階/建物の階建 2階(201) / 地上4階建 総戸数 64戸 主要採光面 東 構造 鉄筋コンクリート(RC)造 バルコニー あり契約期間 2年間 住宅保険 その他費用 毎月の費用 - 24時間管理費:2,750円
入居可能時期 2026年3月中旬(2/28退去予定) 管理人 無 取引態様 仲介 物件No AR 設備・特徴 - 照明器具付
- 室内洗濯機置場
- 納戸・トランクルーム
- バス/トイレ別
- シャワー付洗面化粧台
- 都市ガス
- ガス暖房
- オートロック
- BSアンテナ
- 保証人不要
- シューズボックス
- 独立洗面台
- インターネット利用料無料
- エアコン付
備考 ■保証会社利用必須(初回:月額賃料等総額80%~(最低32,000円)、月額:864円、更新:10,000円/年) ■初期費用をクレジットカードでお支払いいただけます。 学区色がついているアイコンをクリックすると、本物件までの道順を見ることができます。
主な周辺施設色がついているアイコンをクリックすると、本物件までの道順を見ることができます。
-
ホームページはこちら
北海道知事 渡島(5) 第1038号
エイブルネットワーク 函館五稜郭店 【WEB面談可】- 加入団体
- (公社)全日本不動産協会
- 保証協会
- (公社)不動産保証協会
- 公正取引協議会
- (一社)北海道不動産公正取引協議会
※連合隊は物件情報の精度向上に努めています:「物件情報に誤りがある」「成約済みである」などお気付きの点がございましたらこちらよりご連絡ください。
写真枚数:9枚
間取り
函館市・北斗市・七飯町のお部屋探しは当店へお任せ下さい👍豊富な情報の中から最適な物件をご紹介します
✨新築物件や初費用軽減キャンペーン物件など豊富な物件情報✨ 営業時間 9:00~18:00 定休日 水曜日 営業時間外もご相談ください👍 土・日・祝日も元気に営業中🎶ご来店お待ちしております😁