メゾンサンフクジュ
ここに注目!灯油暖房×灯油ボイラーで毎月の光熱費を抑えられます💡 洗面台が独立しており、歯磨きや洗顔など、大変使いやすい間取りとなっております🎈 スーパー・コンビニ・ドラッグストア徒歩圏内でお買い物便利な立地🌼 現地待ち合わせ内見可能🚩 初期費用をクレジットカードでお支払いいただけます💳 函館近郊エリアのお部屋幅広くご紹介可✨ お問い合わせはエイブルNW函館五稜郭店【0138-84-8630】までお気軽に📩📩
| 賃料・費用 |
4万5,000円(+管理費等 なし)
敷なし礼4万5,000円(1ヶ月)仲4万9,500円
保証金:なし
|
|---|---|
| 間取・専有 |
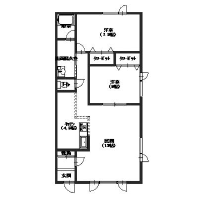
2LDK(69.83m²)└ LDK17.3帖 洋室7.5帖 洋室6帖
|
| 住所 | 北海道北斗市東浜2-2-24 |
| 交通 | 久根別駅(徒歩8分)道順を見る |
| 築年月 | 築21年(2004年7月) |
| 駐車場 |
あり (無料) 駐車可能台数:2台
|
【WEB面談可】
空室確認、見学、詳細を知りたい方はこちら!
お電話の際は「連合隊の物件」とお伝えください。
情報掲載期限:あと28日(更新日 2026/2/10)
- 物件写真・概要
- 周辺地図
-
【WEB面談可】
空室確認、見学、詳細を知りたい方はこちら!おすすめポイント
- バス/トイレ別
- オートロック
- 2階以上
- 都市ガス
- 室内洗濯機置場
- 駐車2台以上可
- エアコン付
- 独立洗面台
- 追い焚き風呂
- ペット相談可
- デザイナーズ
- 敷金・礼金0円
- 近くて便利!徒歩5分以内にある施設
- 4分
4分- 周辺施設を地図で確認
交通色がついているアイコンをクリックすると、本物件までの道順を見ることができます。
物件概要
所在階/建物の階建 2階(201) / 地上2階建 総戸数 主要採光面 構造 木造 契約期間 2年間 住宅保険 2万4,000円(2年間) その他費用 毎月の費用 - 24時間管理費:1,430円
一時金 - 契約時清掃料:3万3,000円
入居可能時期 即時 管理人 取引態様 仲介 物件No JA 設備・特徴 - 灯油ボイラー
- LPガス
- 温水洗浄トイレ
- バス/トイレ別
- シャワー付洗面化粧台
- 照明器具付
- 灯油暖房
- 室内洗濯機置場
- 独立洗面台
- モニタ付インターホン
- 角部屋
- 浴室乾燥機
- 保証人不要
- 最上階
備考 ■保証会社利用必須 (初回保証料:月額賃料等総額50%(最低20,000円) 月額保証料:合計賃料の1.5%・ 更新料:10,000円/年) ■初期費用をクレジットカードでお支払いいただけます。 ■間取り・内観は現状を優先いたします(反転あり) 学区色がついているアイコンをクリックすると、本物件までの道順を見ることができます。
主な周辺施設色がついているアイコンをクリックすると、本物件までの道順を見ることができます。
-
ホームページはこちら
北海道知事 渡島(5) 第1038号
エイブルネットワーク 函館五稜郭店 【WEB面談可】- 加入団体
- (公社)全日本不動産協会
- 保証協会
- (公社)不動産保証協会
- 公正取引協議会
- (一社)北海道不動産公正取引協議会
※連合隊は物件情報の精度向上に努めています:「物件情報に誤りがある」「成約済みである」などお気付きの点がございましたらこちらよりご連絡ください。
写真枚数:2枚
間取り
函館市・北斗市・七飯町のお部屋探しは当店へお任せ下さい👍豊富な情報の中から最適な物件をご紹介します
✨新築物件や初費用軽減キャンペーン物件など豊富な物件情報✨ 営業時間 9:00~18:00 定休日 水曜日 営業時間外もご相談ください👍 土・日・祝日も元気に営業中🎶ご来店お待ちしております😁