フジヒロ北5条ビル
ここに注目!🌟1階の約21坪ワンフロア🌟駐車場2台空き御座います◎🌸地下東西線「西28丁目」徒歩4分の駅チカテナント🎵幹線道路沿いです!事務所やスクール、医療系、福祉系、物販店舗等ご相談ください(^^♪
この物件の契約期間は 5年間です。
定期借家物件は、賃貸借契約期間満了後、原則として契約の更新ができない物件です。再契約の可否については不動産会社にお問合せください。
| 賃料・費用 |
33万円
(+管理費等 -円)
坪単価:約1.5万円/坪
敷90万円仲33万円
|
|---|---|
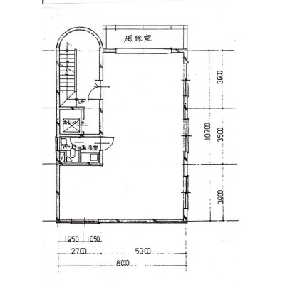
| 専有面積 | 71.27m² (21.55坪) |
| 住所 | 北海道札幌市中央区北五条西25丁目4-18 |
| 交通 | 西28丁目駅(徒歩6分)|二十四軒駅(徒歩14分)|円山公園駅(徒歩14分)|西18丁目駅(徒歩22分)道順を見る |
| 階/階建 | 路面 / 4階建 |
| 築年月 | 築34年(1991年8月) |
| 駐車場 |
あり (1万6,500円/台) 駐車可能台数:2台
|
【WEB面談可】
空室確認、見学、詳細を知りたい方はこちら!
お電話の際は「連合隊の物件」とお伝えください。
新着 情報掲載期限:あと27日(更新日 2026/3/18)
- 物件写真・概要
- 周辺地図
-
【WEB面談可】
空室確認、見学、詳細を知りたい方はこちら!おすすめポイント
- 路面店
- 駅前立地
- 幹線道路沿い
- 駐車2台以上可
- 光ファイバー
- 出店するなら…この業種がおすすめ!
- 飲食全般(重飲食含む)

- 喫茶・カフェ(軽飲食)

- バー・クラブ・スナック

- 小売・物販

- 美容・健康・介護

- 医療

- 教育・スクール

- 事務所

- アミューズメント

交通色がついているアイコンをクリックすると、本物件までの道順を見ることができます。
- 西28丁目駅札幌市営地下鉄東西線徒歩6分(約458m)
- 二十四軒駅札幌市営地下鉄東西線徒歩14分(約1.1km)
- 円山公園駅札幌市営地下鉄東西線徒歩14分(約1.1km)
- 西18丁目駅札幌市営地下鉄東西線徒歩22分(約1.7km)
物件概要
所在階/建物の階建 1階 / 地上4階建 主要採光面 東 構造 鉄筋コンクリート(RC)造 間取り 契約期間 定期借家(5年間) 権利金 住宅保険 出店推奨業種 美容・健康・介護、教育・スクール、事務所 出店不可業種 引渡し 相談 管理人 取引態様 仲介 物件No 設備・特徴 - 駅前立地
- 照明器具付
- 幹線道路沿い
- 給排水設備
- ガス設備
- エレベーター
- ブロードバンド回線(光ファイバー等の高速インターネット)
- その他インターネット
- 路面店
備考 保証会社の利用が必要です 主な周辺施設色がついているアイコンをクリックすると、本物件までの道順を見ることができます。
-
ホームページはこちら
北海道知事 石狩(2) 第8353号
(株)プラス 【WEB面談可】〒064-0822
TEL:011-215-5411
FAX:011-769-0923
営業時間:9:00~18:00
定休日:毎週 土曜・日曜・祝日
- 加入団体
- (公社)全日本不動産協会
- 保証協会
- (公社)不動産保証協会
※連合隊は物件情報の精度向上に努めています:「物件情報に誤りがある」「成約済みである」などお気付きの点がございましたらこちらよりご連絡ください。
写真枚数:2枚
開業・閉業のご相談お気軽にお待ちしております❕どこよりも迅速で丁寧なご対応を心がけております🎵
・メールでのお問い合わせは24時間365日ご対応可能。・営業時間内のお問合せは、どこよりも迅速なご対応を心がけております。・テナント探しの他、内装・融資等探すに当たってのポイントなどのご相談もお気軽に◎