西野4-9テナント
ここに注目!🌟🌟西区西野の約24坪☆1階1階路面テナント🌟🌟駐車場2台分可能◎空き予定での募集になります!元理容室になります。カフェや飲食店もご相談下さい◎2026年3月退去予定になりますが、ご内覧ご相談下さい!美容サロン系、整骨院、スクール、事務所、物販、テイクアウト専門店、福祉系・・その他業種は幅広くご相談可能で御座います🎵幹線道路【北1条・宮の沢通】沿いになりますので、目立つ建物です(^^♪
| 賃料・費用 |
19万8,000円
(+管理費等 -円)
坪単価:約7,930円/坪
敷36万円礼なし仲19万8,000円
|
|---|---|
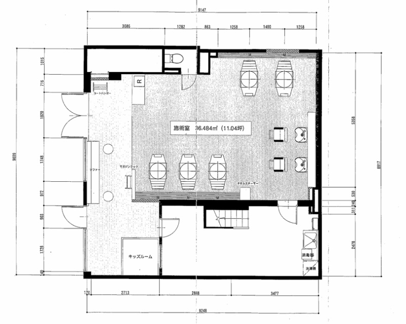
| 専有面積 | 82.56m² (24.97坪) |
| 住所 | 北海道札幌市西区西野四条9丁目1番15号 |
| 交通 | |
| 階/階建 | 路面 / 3階建 |
| 築年月 | |
| 駐車場 |
あり 駐車可能台数:2台
|
【WEB面談可】
空室確認、見学、詳細を知りたい方はこちら!
お電話の際は「連合隊の物件」とお伝えください。
情報掲載期限:あと18日(更新日 2025/12/18)
- 物件写真・概要
- 周辺地図
-
【WEB面談可】
空室確認、見学、詳細を知りたい方はこちら!おすすめポイント
- 路面店
- 幹線道路沿い
- 駐車2台以上可
- 出店するなら…この業種がおすすめ!
- 飲食全般(重飲食含む)

- 喫茶・カフェ(軽飲食)

- バー・クラブ・スナック

- 小売・物販

- 美容・健康・介護

- 医療

- 教育・スクール

- 事務所

- アミューズメント

物件概要
所在階/建物の階建 1階 / 地上3階建 主要採光面 構造 その他(木・鉄筋コンクリート造) 間取り 契約期間 3年間 権利金 住宅保険 出店推奨業種 喫茶・カフェ(軽飲食)、小売・物販、美容・健康・介護 出店不可業種 その他費用 一時金 - 保証会社初回保証委託料:19万8,000円
引渡し 相談 管理人 取引態様 仲介 物件No 設備・特徴 - 照明器具付
- ガス設備
- 給排水設備
- 路面店
- 幹線道路沿い
備考 保証会社の利用が必要です 空き予定での募集になります 主な周辺施設色がついているアイコンをクリックすると、本物件までの道順を見ることができます。
-

この物件の担当者 渡邊麻由子(わたなべまゆこ)
札幌市内・近郊のテナント物件探しお任せ下さい🎵増店・移転はもちろん、初めて開業される方も・・開業にあたりましてのご相談事、中々良い物件に出会えない、物件探しのコツ等どんな事でもお待ちしております🎵
ホームページはこちら北海道知事 石狩(2) 第8353号
(株)プラス 【WEB面談可】〒064-0822
TEL:011-215-5411
FAX:011-769-0923
営業時間:9:00~18:00
定休日:毎週 土曜・日曜・祝日
- 加入団体
- (公社)全日本不動産協会
- 保証協会
- (公社)不動産保証協会
※連合隊は物件情報の精度向上に努めています:「物件情報に誤りがある」「成約済みである」などお気付きの点がございましたらこちらよりご連絡ください。
写真枚数:12枚
開業・閉業のご相談お気軽にお待ちしております❕どこよりも迅速で丁寧なご対応を心がけております🎵
・メールでのお問い合わせは24時間365日ご対応可能。・営業時間内のお問合せは、どこよりも迅速なご対応を心がけております。・テナント探しの他、内装・融資等探すに当たってのポイントなどのご相談もお気軽に◎