オークラビル
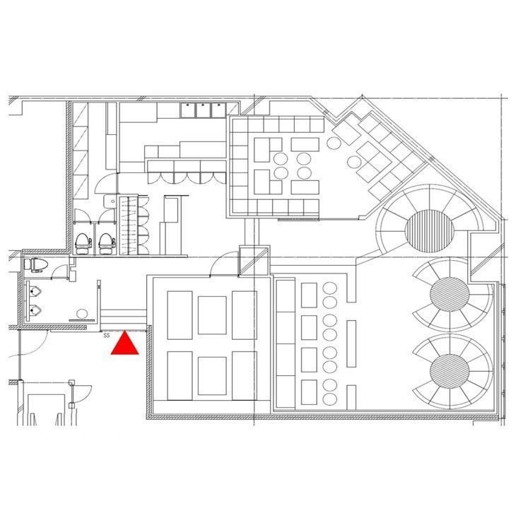
ここに注目!🌟🌟人気のすすきのエリア🌟飲食店ビル🌟2階の65坪🎵ラウンジ、ニュークラブ・実効面積:46.43坪・ボックス7卓28席、VIPルーム2室🌟クラブ向けテナントです🎵 人気の物件は、直ぐに決まってしまう為、少しでも気になりましたらお問合せをお待ちしております🎵メールでのお問合せは24時間年中無休でご対応させて頂きます(^^♪
この物件は クラブ・ラウンジ の居抜き物件です。
現状の設備が残されたまま取引されるため、初期費用を抑え速やかに事業を開始できるメリットがあります。
| 賃料・費用 |
90万213円
(+管理費等 21万6,051円)
坪単価:約1.4万円/坪
仲90万213円
保証金:654万7,000円
|
|---|---|
| 専有面積 | 216.43m² (65.47坪) |
| 住所 | 北海道札幌市中央区南五条西2丁目1-1 |
| 交通 | 豊水すすきの駅(徒歩1分)|すすきの駅(徒歩6分)|狸小路駅(徒歩8分)|資生館小学校前駅(徒歩10分)|西4丁目駅(徒歩11分) |
| 階/階建 | 2階 / 7階建(地下1階) |
| 築年月 | |
| 駐車場 |
近隣月極駐車場
|
【WEB面談可】
空室確認、見学、詳細を知りたい方はこちら!
お電話の際は「連合隊の物件」とお伝えください。
情報掲載期限:あと14日(更新日 2025/12/4)
- 物件写真・概要
- 周辺地図
-
【WEB面談可】
空室確認、見学、詳細を知りたい方はこちら!おすすめポイント
- 駅徒歩1分以内
- 複数路線利用可
- 駅前立地
- 商店街に面す
- 光ファイバー
- 出店するなら…この業種がおすすめ!
- 飲食全般(重飲食含む)

- 喫茶・カフェ(軽飲食)

- バー・クラブ・スナック

- 小売・物販

- 美容・健康・介護

- 医療

- 教育・スクール

- 事務所

- アミューズメント

交通色がついているアイコンをクリックすると、本物件までの道順を見ることができます。
- 豊水すすきの駅札幌市営地下鉄東豊線駅近!徒歩1分(約43m)
- すすきの駅札幌市営地下鉄南北線、札幌市電山鼻線徒歩6分(約443m)
- 狸小路駅札幌市電山鼻線徒歩8分(約608m)
- 資生館小学校前駅札幌市電山鼻線徒歩10分(約733m)
- 西4丁目駅札幌市電山鼻線徒歩11分(約833m)
物件概要
所在階/建物の階建 2階(D) / 地上7階 地下1階建 主要採光面 構造 鉄骨鉄筋コンクリート(SRC)造 間取り 契約期間 権利金 住宅保険 出店推奨業種 喫茶・カフェ(軽飲食)、バー・クラブ・スナック 出店不可業種 居抜き情報 [クラブ・ラウンジ] の居抜きその他費用 毎月の費用 - エレベーター負担金:1万1,336円
引渡し 期日指定 管理人 取引態様 仲介 物件No 設備・特徴 - 複数路線利用可
- 駅前立地
- 商店街に面す
- エレベーター
- ブロードバンド回線(光ファイバー等の高速インターネット)
- その他インターネット
- 深夜営業相談可
備考 主な周辺施設色がついているアイコンをクリックすると、本物件までの道順を見ることができます。
-

この物件の担当者 渡邊麻由子(わたなべまゆこ)
札幌市内・近郊のテナント物件探しお任せ下さい🎵増店・移転はもちろん、初めて開業される方も・・開業にあたりましてのご相談事、中々良い物件に出会えない、物件探しのコツ等どんな事でもお待ちしております🎵
ホームページはこちら北海道知事 石狩(2) 第8353号
(株)プラス 【WEB面談可】〒064-0822
TEL:011-215-5411
FAX:011-769-0923
営業時間:9:00~18:00
定休日:毎週 土曜・日曜・祝日
- 加入団体
- (公社)全日本不動産協会
- 保証協会
- (公社)不動産保証協会
※連合隊は物件情報の精度向上に努めています:「物件情報に誤りがある」「成約済みである」などお気付きの点がございましたらこちらよりご連絡ください。
写真枚数:2枚
開業・閉業のご相談お気軽にお待ちしております❕どこよりも迅速で丁寧なご対応を心がけております🎵
・メールでのお問い合わせは24時間365日ご対応可能。・営業時間内のお問合せは、どこよりも迅速なご対応を心がけております。・テナント探しの他、内装・融資等探すに当たってのポイントなどのご相談もお気軽に◎