第2山崎ビル
ここに注目!🌟札幌駅徒歩4分の駅チカ🌟1坪の小規模事務所向けテナント🌟近隣にコインパーキング多数御座います🌟喫煙所あります!会議室も使用可能!24時間営業可能です🌟セキュリティ対策も◎
| 賃料・費用 |
10万9,395円
(+管理費等 2万5,740円)
坪単価:約9,358円/坪
敷59万6,700円礼なし仲10万9,395円
|
|---|---|
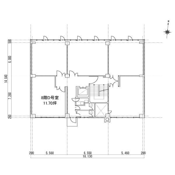
| 専有面積 | 38.67m² (11.69坪) |
| 住所 | 北海道札幌市北区北六条西6丁目 |
| 交通 | 札幌駅(徒歩7分)|桑園駅(徒歩19分)|バスセンター前駅(徒歩25分) |
| 階/階建 | 8階 / 9階建 |
| 築年月 | 築52年(1973年8月) |
| 駐車場 |
近隣月極駐車場
近隣駐車場利用可能(250m)/空き1台/16,500円(税込) 高さ1.85m 幅2.5mまで |
【WEB面談可】
空室確認、見学、詳細を知りたい方はこちら!
お電話の際は「連合隊の物件」とお伝えください。
情報掲載期限:あと27日(更新日 2025/12/18)
- 物件写真・概要
- 周辺地図
-
【WEB面談可】
空室確認、見学、詳細を知りたい方はこちら!おすすめポイント
- 複数路線利用可
- 駅前立地
- 光ファイバー
- 24時間セキュリティー
- 出店するなら…この業種がおすすめ!
- 飲食全般(重飲食含む)

- 喫茶・カフェ(軽飲食)

- バー・クラブ・スナック

- 小売・物販

- 美容・健康・介護

- 医療

- 教育・スクール

- 事務所

- アミューズメント

交通色がついているアイコンをクリックすると、本物件までの道順を見ることができます。
- 札幌駅札幌市営地下鉄南北線、札幌市営地下鉄東豊線、JR札沼線、JR千歳線、JR函館本線徒歩7分(約509m)
- 桑園駅JR札沼線、JR函館本線徒歩19分(約1.5km)
- バスセンター前駅札幌市営地下鉄東西線徒歩25分(約2km)
物件概要
所在階/建物の階建 8階(D) / 地上9階建 主要採光面 構造 鉄骨造 間取り 契約期間 権利金 住宅保険 出店推奨業種 事務所 出店不可業種 その他費用 毎月の費用 - 共用部水光熱費:3,340円
引渡し 相談 管理人 取引態様 仲介 物件No 設備・特徴 - 複数路線利用可
- 駅前立地
- 照明器具付
- ガス暖房
- 24時間セキュリティー
- ブロードバンド回線(光ファイバー等の高速インターネット)
- その他インターネット
- 深夜営業相談可
- 24時間利用可
備考 主な周辺施設色がついているアイコンをクリックすると、本物件までの道順を見ることができます。
-
ホームページはこちら
北海道知事 石狩(2) 第8353号
(株)プラス 【WEB面談可】〒064-0822
TEL:011-215-5411
FAX:011-769-0923
営業時間:9:00~18:00
定休日:毎週 土曜・日曜・祝日
- 加入団体
- (公社)全日本不動産協会
- 保証協会
- (公社)不動産保証協会
※連合隊は物件情報の精度向上に努めています:「物件情報に誤りがある」「成約済みである」などお気付きの点がございましたらこちらよりご連絡ください。
写真枚数:4枚
開業・閉業のご相談お気軽にお待ちしております❕どこよりも迅速で丁寧なご対応を心がけております🎵
・メールでのお問い合わせは24時間365日ご対応可能。・営業時間内のお問合せは、どこよりも迅速なご対応を心がけております。・テナント探しの他、内装・融資等探すに当たってのポイントなどのご相談もお気軽に◎