SWビル
ここに注目!🍀一棟貸し🍀 🍀地下鉄中島公園駅徒歩1分🍀 1F店舗スケルトン状態、2F・3F事務所使用可能 3Fにトイレ・2F事務所内に給湯場所あり(ガスコンロあり残置物)
| 賃料・費用 |
77万円
(+管理費等 -円)
坪単価:約9,829円/坪
敷210万円礼なし仲77万円
|
|---|---|
| 専有面積 | 259m² (78.34坪) |
| 住所 | 北海道札幌市中央区南九条西4丁目2-11 |
| 交通 | |
| 階/階建 | 路面 |
| 築年月 | 築39年(1986年10月) |
| 駐車場 |
あり 駐車可能台数:1台
|
空室確認、見学、詳細を知りたい方はこちら!
お電話の際は「連合隊の物件」とお伝えください。
情報掲載期限:あと15日(更新日 2025/12/23)
- 物件写真・概要
- 周辺地図
-
空室確認、見学、詳細を知りたい方はこちら!
おすすめポイント
- 路面店
- 駐車場あり
- スケルトン
- 出店するなら…この業種がおすすめ!
- 飲食全般(重飲食含む)

- 喫茶・カフェ(軽飲食)

- バー・クラブ・スナック

- 小売・物販

- 美容・健康・介護

- 医療

- 教育・スクール

- 事務所

- アミューズメント

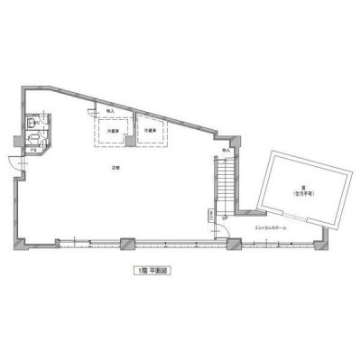
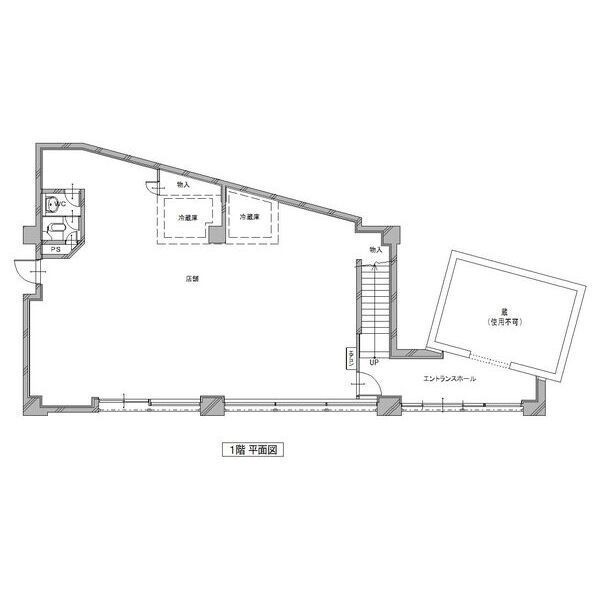
物件概要
所在階/建物の階建 000 主要採光面 構造 鉄骨鉄筋コンクリート(SRC)造 間取り 契約期間 3年間 権利金 住宅保険 出店推奨業種 事務所 出店不可業種 接道状況 一方 引渡し 管理人 取引態様 仲介 物件No 設備・特徴 - 照明器具付
- ガス設備
- 給排水設備
- スケルトン
- 路面店
備考 主な周辺施設色がついているアイコンをクリックすると、本物件までの道順を見ることができます。
-
ホームページはこちら
北海道知事 石狩(1) 第9357号
(株)おいでや不動産
※連合隊は物件情報の精度向上に努めています:「物件情報に誤りがある」「成約済みである」などお気付きの点がございましたらこちらよりご連絡ください。
写真枚数:11枚
☆【店舗/事務所】のことならおいでや不動産へご相談ください☆
弊社は『札幌で1番アットホームな不動産屋さん』というスローガンをもち、ご対応させていただいております。大事な決断だからこそより話しやすい環境を心掛けております。まずはお気軽にお問い合わせください♪