第21松井ビル【☆☆☆平和通り大型1階路面店舗☆☆☆】
ここに注目!その他、ご要望・気になる点がございましたら、いつでもお気軽にご相談ください(^^♪ 1階路面 新築 テナント経験豊富なスタッフが親切丁寧にご対応致します。 ※好立地で綺麗な物件はスグに成約になりますので、お早めにご検討ください 🌸内覧希望・業種確認・初期費用のご相談等、いつでもお問合せお待ちしております🌸
| 賃料・費用 |
127万4,039円
(+管理費等 -円)
坪単価:約4,015円/坪
敷463万2,872円礼なし仲127万4,039円
|
|---|---|
| 専有面積 | 1049m² (317.32坪) |
| 住所 | 北海道札幌市白石区平和通2丁目北9番3号 |
| 交通 | 白石駅(徒歩5分)道順を見る |
| 階/階建 | 路面 / 5階建 |
| 築年月 | 築46年(1979年10月) |
| 駐車場 |
なし
|
空室確認、見学、詳細を知りたい方はこちら!
お電話の際は「連合隊の物件」とお伝えください。
新着 情報掲載期限:あと29日(更新日 2026/3/23)
- 物件写真・概要
- 周辺地図
-
空室確認、見学、詳細を知りたい方はこちら!
おすすめポイント
- 路面店
- 駅徒歩5分以内
- 駅前立地
- 出店するなら…この業種がおすすめ!
- 飲食全般(重飲食含む)

- 喫茶・カフェ(軽飲食)

- バー・クラブ・スナック

- 小売・物販

- 美容・健康・介護

- 医療

- 教育・スクール

- 事務所

- アミューズメント

交通色がついているアイコンをクリックすると、本物件までの道順を見ることができます。
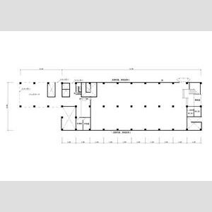
物件概要
所在階/建物の階建 1階(1階路面店舗) / 地上5階建 主要採光面 構造 鉄筋コンクリート(RC)造 間取り 契約期間 3年間 権利金 住宅保険 出店推奨業種 美容・健康・介護、教育・スクール、事務所 出店不可業種 引渡し 相談 管理人 取引態様 仲介 物件No 設備・特徴 - 照明器具付
- 駅前立地
- 路面店
備考 土日・祝日もご気軽にご連絡下さい 毎月かかる費用は別途消費税かかります。 大型物件 サービス業 🏢 テナント経験豊富なスタッフが親切丁寧にご対応致します。 🌸内覧希望・業種確認・初期費用のご相談等、いつでもお問い合わせお待ちしております🌸 ※札幌市内すべてのテナントご紹介可能です※ 類似物件もご紹介可能です! 主な周辺施設色がついているアイコンをクリックすると、本物件までの道順を見ることができます。
-
ホームページはこちら
北海道知事 石狩(1) 第9428号
テナント館 (株)H&T
※連合隊は物件情報の精度向上に努めています:「物件情報に誤りがある」「成約済みである」などお気付きの点がございましたらこちらよりご連絡ください。
写真枚数:3枚
🏢テナント館🏢 札幌市近郊のテナント仲介専門店【テナント館】にお任せ下さい♪
テナント仲介18年以上の経験と知識で、増店・移転はもちろん、初めて開業される方のご相談や物件探しなどオープンまで全面サポート致します。