サザンシティ30
ここに注目!札幌市東区「サザンシティ30」の1階路面店舗のご案内です! 約58㎡の広々とした空間は、美容・健康・介護施設、教育・スクール、または事務所としてのご利用に大変おすすめです。 全面ガラス張りの開放的なデザインは、高い視認性を誇り、お客様の目を引くことでしょう。 幹線道路沿い、そして商店街に面した立地は、集客力も期待できます。周辺にはスーパーやコンビニ、銀行、郵便局など生活利便施設が充実しており、ビジネスをサポートする環境が整っています。 複数路線が利用可能で、アクセス面も良好。駐車場は3台分確保可能(別途費用)で、お車でのご来店や通勤にも便利です。 高速インターネット対応で、快適なビジネス環境も提供。 初期費用を抑えたい方に嬉しい礼金ゼロの物件です。 この機会に、理想のビジネス拠点を見つけませんか?詳細はお気軽にお問い合わせください!
| 賃料・費用 |
9万7,900円
(+管理費等 なし)
坪単価:約5,582円/坪
敷50万円礼なし仲9万7,900円
保証金:なし/敷引・償却金:なし
|
|---|---|
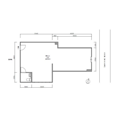
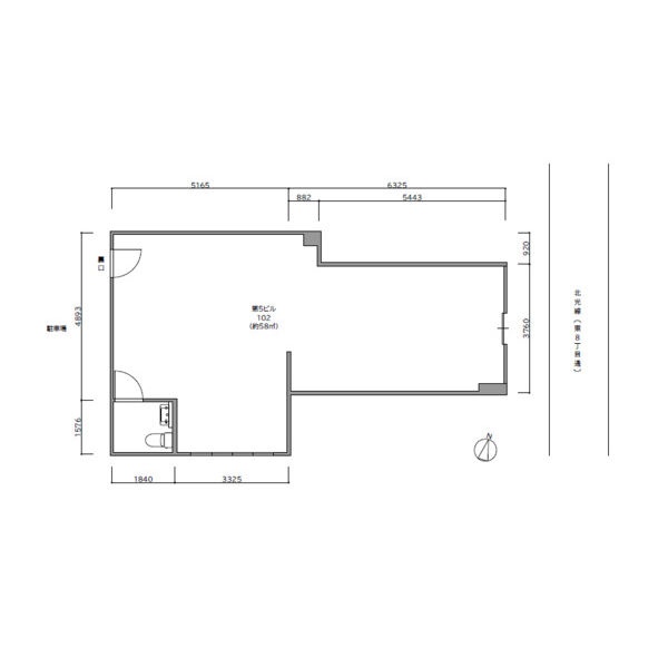
| 専有面積 | 58m² (17.54坪) |
| 住所 | 北海道札幌市東区北三十条東7丁目2-16 |
| 交通 | 新道東駅(徒歩18分)|元町駅(徒歩20分)|北34条駅(徒歩21分)|北24条駅(徒歩27分)道順を見る |
| 階/階建 | 路面 / 3階建 |
| 築年月 | 築38年(1987年4月) |
| 駐車場 |
あり (1万6,500円/台) 駐車可能台数:3台
|
空室確認、見学、詳細を知りたい方はこちら!
お電話の際は「連合隊の物件」とお伝えください。
情報掲載期限:あと15日(更新日 2025/12/19)
- 物件写真・概要
- 周辺地図
-
空室確認、見学、詳細を知りたい方はこちら!
おすすめポイント
- 即入居可
- 路面店
- 複数路線利用可
- 商店街に面す
- 幹線道路沿い
- 駐車2台以上可
- デザイナーズ
- 光ファイバー
- 出店するなら…この業種がおすすめ!
- 飲食全般(重飲食含む)

- 喫茶・カフェ(軽飲食)

- バー・クラブ・スナック

- 小売・物販

- 美容・健康・介護

- 医療

- 教育・スクール

- 事務所

- アミューズメント

交通色がついているアイコンをクリックすると、本物件までの道順を見ることができます。
- 新道東駅札幌市営地下鉄東豊線徒歩18分(約1.4km)
- 元町駅札幌市営地下鉄東豊線徒歩20分(約1.6km)
- 北34条駅札幌市営地下鉄南北線徒歩21分(約1.7km)
- 北24条駅札幌市営地下鉄南北線徒歩27分(約2.1km)
物件概要
所在階/建物の階建 1階(102) / 地上3階建 主要採光面 構造 鉄骨造 間取り 契約期間 3年間 更新料/更新手数料 なし 権利金 なし 住宅保険 出店推奨業種 美容・健康・介護、教育・スクール、事務所 出店不可業種 引渡し 即時 管理人 取引態様 仲介 物件No 設備・特徴 - 複数路線利用可
- 幹線道路沿い
- 商店街に面す
- ブロードバンド回線(光ファイバー等の高速インターネット)
- 路面店
- 前面ガラス張り
- デザイナーズ
- その他インターネット
備考 ※札幌市内すべてのテナントご紹介可能です※ 1階路面店舗 類似物件もご紹介可能です! 全面ガラス張り 保証会社利用 駐車場多数可能 主な周辺施設色がついているアイコンをクリックすると、本物件までの道順を見ることができます。
-
ホームページはこちら
北海道知事 石狩(1) 第9428号
テナント館 (株)H&T
※連合隊は物件情報の精度向上に努めています:「物件情報に誤りがある」「成約済みである」などお気付きの点がございましたらこちらよりご連絡ください。
写真枚数:12枚
🏢テナント館🏢 札幌市近郊のテナント仲介専門店【テナント館】にお任せ下さい♪
テナント仲介18年以上の経験と知識で、増店・移転はもちろん、初めて開業される方のご相談や物件探しなどオープンまで全面サポート致します。