シーズンビル■事務所や展示・ギャラリーに最適
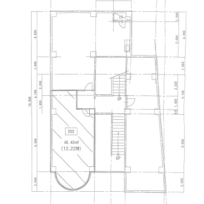
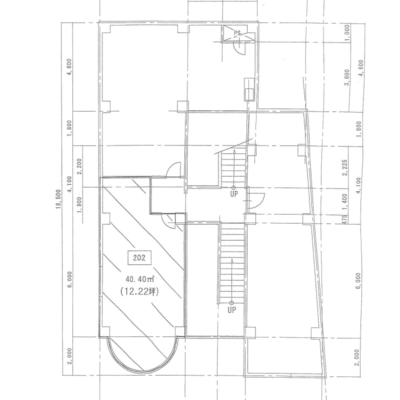
ここに注目!札幌市中央区、人気の円山裏参道エリアに位置する「シーズンビル」で、新しいビジネスを始めてみませんか? 札幌市営地下鉄東西線「円山公園」駅まで徒歩6分とアクセスも良く、周辺にはスーパーや銀行、コンビニなどがあり、日々の利便性の高さも魅力です。 こちらは2階部分、広々とした40.4㎡の空間。共用部は吹き抜けのコンクリート打ちっぱなしで、洗練されたデザイナーズの雰囲気がお客様をお迎えします。前面ガラス張りで開放感があり、西向きの明るい空間は、物販店や美容系テナント、事務所として最適です。 エアコンやブロードバンド回線、24時間セキュリティも完備しており、快適で安心なビジネス環境をサポートいたします。 敷金はございますが、礼金は不要なのも嬉しいポイントです。あなたの夢を叶える素敵なステージが、ここにあります。ぜひ一度ご内覧ください。
| 賃料・費用 |
12万5,400円
(+管理費等 1万1,000円)
坪単価:約1.0万円/坪
敷45万6,000円礼なし仲12万5,400円
保証金:なし
|
|---|---|
| 専有面積 | 40.4m² (12.22坪) |
| 住所 | 北海道札幌市中央区南一条西22丁目2-15 |
| 交通 | 円山公園駅(徒歩6分)|西18丁目駅(徒歩8分)|西15丁目駅(徒歩14分)|西28丁目駅(徒歩16分)道順を見る |
| 階/階建 | 2階 / 3階建(地下1階) |
| 築年月 | 築39年(1986年4月) |
| 駐車場 |
なし
|
空室確認、見学、詳細を知りたい方はこちら!
お電話の際は「連合隊の物件」とお伝えください。
情報掲載期限:あと17日(更新日 2025/12/27)
- 物件写真・概要
- 周辺地図
-
空室確認、見学、詳細を知りたい方はこちら!
おすすめポイント
- 即入居可
- デザイナーズ
- エアコン付
- 光ファイバー
- 24時間セキュリティー
- 出店するなら…この業種がおすすめ!
- 飲食全般(重飲食含む)

- 喫茶・カフェ(軽飲食)

- バー・クラブ・スナック

- 小売・物販

- 美容・健康・介護

- 医療

- 教育・スクール

- 事務所

- アミューズメント

※出店不可の業種:飲食全般、重飲食(軽飲食は相談可)
交通色がついているアイコンをクリックすると、本物件までの道順を見ることができます。
- 円山公園駅札幌市営地下鉄東西線徒歩6分(約453m)
- 西18丁目駅札幌市営地下鉄東西線徒歩8分(約626m)
- 西15丁目駅札幌市電山鼻線徒歩14分(約1.1km)
- 西28丁目駅札幌市営地下鉄東西線徒歩16分(約1.3km)
物件概要
所在階/建物の階建 2階(202) / 地上3階 地下1階建 主要採光面 西 構造 鉄筋コンクリート(RC)造 間取り 契約期間 3年間 権利金 なし 住宅保険 (3年間) 出店推奨業種 小売・物販、事務所 出店不可業種 飲食全般、重飲食(軽飲食は相談可) 用途地域 - 近隣商業地域
その他費用 毎月の費用 - 看板使用料:1,100円
引渡し 即時 管理人 巡回 取引態様 仲介 物件No 設備・特徴 - エアコン付
- 24時間セキュリティー
- デザイナーズ
- 前面ガラス張り
- ビルトインエアコン
- ブロードバンド回線(光ファイバー等の高速インターネット)
備考 ■事務所・店舗 ■円山裏参道エリア ■共用トイレ ※保証会社利用必須:初回保証料月額賃料等の1ヶ月~1.5か月分/保証会社年間更新料 月額賃料等の10%/月次事務手数料等 440円 主な周辺施設色がついているアイコンをクリックすると、本物件までの道順を見ることができます。
-
ホームページはこちら
北海道知事 石狩(1) 第9413号
(株)K'sエステート- 加入団体
- (公社)北海道宅地建物取引業協会
- 保証協会
- (公社)全国宅地建物取引業保証協会
- 公正取引協議会
- (一社)北海道不動産公正取引協議会
※連合隊は物件情報の精度向上に努めています:「物件情報に誤りがある」「成約済みである」などお気付きの点がございましたらこちらよりご連絡ください。
写真枚数:20枚
円山エリアの賃貸・テナントショップです!
お客様の出会いを大切に一機一会のご縁に感謝し地域密着型の営業を行っております。お住まいは勿論のこと、住居タイプ事務所、店舗なども取り扱っておりますので お気軽にご相談ください。