アイハウス
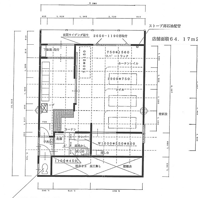
ここに注目!札幌市白石区菊水元町8条に、ビジネスの可能性を広げる貸店舗・貸事務所「アイハウス」1階の区画が登場しました。賃料は165,000円(税込)です。 幹線道路沿いの角地に立地し、視認性の良い路面店。周辺にはドラッグストアやコンビニ、スーパーが徒歩5分圏内に揃い、日常の利便性も高く、集客にも期待が持てます。 広々とした64.17㎡の専有スペースは、様々な業種に対応可能です。エアコンや灯油暖房、照明器具が設置済みで、個別空調も完備。24時間利用可能なので、ビジネスチャンスを逃しません。さらに、無料駐車場2台分も確保されており、お客様にも従業員様にも便利です。 元整骨院でした。小売・物販、美容・健康・介護、医療関係の事業をお考えの方に特におすすめです。初期費用を抑えられる礼金ゼロも魅力。この機会に、理想のビジネス拠点を見つけてみませんか?ご興味をお持ちいただけましたら、ぜひお気軽にお問い合わせください。
| 賃料・費用 |
16万5,000円
(+管理費等 -円)
坪単価:約8,501円/坪
敷45万円礼なし仲16万5,000円
|
|---|---|
| 専有面積 | 64.17m² (19.41坪) |
| 住所 | 北海道札幌市白石区菊水元町八条1丁目10番28号 |
| 交通 | 環状通東駅(徒歩44分)|苗穂駅(徒歩42分)|白石駅(徒歩36分)道順を見る |
| 階/階建 | 路面 / 2階建 |
| 築年月 | 築49年(1976年11月) |
| 駐車場 |
あり 駐車可能台数:2台
|
【WEB面談可】
空室確認、見学、詳細を知りたい方はこちら!
お電話の際は「連合隊の物件」とお伝えください。
情報掲載期限:あと16日(更新日 2025/12/19)
- 物件写真・概要
- 周辺地図
-
【WEB面談可】
空室確認、見学、詳細を知りたい方はこちら!おすすめポイント
- 路面店
- 商店街に面す
- 幹線道路沿い
- 駐車2台以上可
- エアコン付
- 出店するなら…この業種がおすすめ!
- 飲食全般(重飲食含む)

- 喫茶・カフェ(軽飲食)

- バー・クラブ・スナック

- 小売・物販

- 美容・健康・介護

- 医療

- 教育・スクール

- 事務所

- アミューズメント

交通色がついているアイコンをクリックすると、本物件までの道順を見ることができます。
物件概要
所在階/建物の階建 1階(101) / 地上2階建 主要採光面 南東 構造 木造 間取り 契約期間 3年間 権利金 住宅保険 お問合せください 出店推奨業種 小売・物販、美容・健康・介護、医療 出店不可業種 接道状況 角地 用途地域 - 準住居地域(建ぺい率:60% / 容積率:200%)
引渡し 相談 管理人 無 取引態様 代理 物件No 3-101.102 設備・特徴 - 商店街に面す
- 幹線道路沿い
- 照明器具付
- ガス設備
- 給排水設備
- エアコン付
- 灯油暖房
- 個別空調
- 24時間利用可
- 路面店
備考 主な周辺施設色がついているアイコンをクリックすると、本物件までの道順を見ることができます。
-
ホームページはこちら
北海道知事 石狩(1) 第9340号
(株)わのまま 【WEB面談可】〒060-0054
TEL:011-206-7224
TEL:080-7108-3392(不在時はこちらにお願い致します。)
FAX:011-206-7382
営業時間:9:00~17:30
定休日:毎週 土曜・日曜・祝日
- 加入団体
- (公社)全日本不動産協会
- 保証協会
- (公社)不動産保証協会
- 公正取引協議会
- (一社)北海道不動産公正取引協議会
※連合隊は物件情報の精度向上に努めています:「物件情報に誤りがある」「成約済みである」などお気付きの点がございましたらこちらよりご連絡ください。
写真枚数:2枚
10年間、建築業界の経験をし、その後不動産業界で11年経験を積み独立開業致しました。 不動産に関する様々な、賃貸・売買・管理をワンストップで対応できる強みがあります。