本町10-13貸店舗
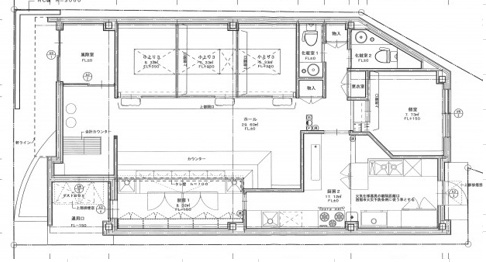
ここに注目!函館市本町の旧すし店跡の居抜き店舗です! カウンター9席、小上がり4卓×4名、テーブル席1卓×6名の広さがあります。 厨房機器はもちろん、食器類までもほぼ揃っていますので、開店初期費用を大幅に軽減できるのではないでしょうか。 周辺には郵便局や銀行、ショッピングセンター、スーパー、ドラッグストアなどが徒歩圏内に充実しており、お客様にとっても従業員様にとっても大変便利な環境です。観光名所の五稜郭タワーも近く、集客力も期待できるでしょう。 内覧もできますので、是非お問い合わせください。
この物件は 寿司屋 の居抜き物件です。
現状の設備が残されたまま取引されるため、初期費用を抑え速やかに事業を開始できるメリットがあります。
| 賃料・費用 |
27万5,000円
(+管理費等 -円)
坪単価:約1.0万円/坪
敷100万円礼25万円仲27万5,000円
|
|---|---|
| 専有面積 | 89.31m² (27.01坪) |
| 住所 | 北海道函館市本町10-13 |
| 交通 | 五稜郭公園前駅(徒歩5分)道順を見る |
| 階/階建 | 1階建 |
| 築年月 | 築11年(2014年9月) |
| 駐車場 |
なし
|
空室確認、見学、詳細を知りたい方はこちら!
お電話の際は「連合隊の物件」とお伝えください。
新着 情報掲載期限:あと30日(更新日 2026/3/3)
- 物件写真・概要
- 周辺地図
-
空室確認、見学、詳細を知りたい方はこちら!
おすすめポイント
- 駅徒歩5分以内
- 造作譲渡料無料
- 出店するなら…この業種がおすすめ!
- 飲食全般(重飲食含む)

- 喫茶・カフェ(軽飲食)

- バー・クラブ・スナック

- 小売・物販

- 美容・健康・介護

- 医療

- 教育・スクール

- 事務所

- アミューズメント

交通色がついているアイコンをクリックすると、本物件までの道順を見ることができます。
物件概要
建物の階建 地上1階建 総戸数 1戸 構造 鉄骨造 間取り 契約期間 3年間 権利金 住宅保険 出店推奨業種 飲食全般(重飲食含む) 出店不可業種 居抜き情報 [寿司屋] の居抜き造作譲渡料 無料 用途地域 - 商業地域
引渡し 相談 管理人 取引態様 仲介 物件No 設備・特徴 - 照明器具付
- ガス設備
- 給排水設備
- エアコン付
- 男女別トイレ
備考 ・契約には保証会社との契約が必要です。初回保証料 賃料の150%、年間保証料 賃料の10%、月額口座振替手数料 440円がかかります。・室内の厨房機器等の点検・修理・メンテナンス・交換は借主様のご負担となります。 主な周辺施設色がついているアイコンをクリックすると、本物件までの道順を見ることができます。
-
ホームページはこちら
北海道知事 石狩(3) 第7934号
(株)常口アトム 函館支店〒041-0806
TEL:0138-85-8306(函館支店)
TEL:0138-54-7740(函館五稜郭店)
FAX:0138-85-8320
営業時間:10:00~18:30
定休日:毎週 水曜
- 加入団体
- (公社)北海道宅地建物取引業協会
- 保証協会
- (公社)全国宅地建物取引業保証協会
※連合隊は物件情報の精度向上に努めています:「物件情報に誤りがある」「成約済みである」などお気付きの点がございましたらこちらよりご連絡ください。
写真枚数:18枚
函館市内及び市内近郊の賃貸物件、商業テナント及び売買物件をメインに取扱をしております。
函館市内及び市内近郊の賃貸物件・売買物件・商業物件をメインに取扱をしております。売買物件は査定も行っております。又、弊社では賃貸客付・賃貸管理も行っておりますので、不動産全般お気軽にご相談ください!