花園町37番貸店舗
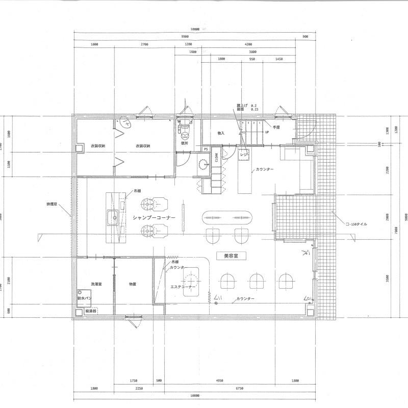
ここに注目!函館市花園町に、理容室&美容室の貸店舗が登場しました! 広々とした専有面積92.52㎡の1階路面店で、視認性も良く、お客様を迎えやすい環境です。 お車での来店に便利な駐車場を3台分確保。 エアコン、照明器具、給排水設備が完備されており、開業準備をスムーズに進められます。 周辺にはツルハドラッグ(徒歩2分)、函館日吉郵便局(徒歩3分)、コープさっぽろ(徒歩7分)、ローソン(徒歩7分)などがあり、生活利便性も高く、集客にも期待が持てます。 理美容室以外の業種の方もご相談できますので、この機会にぜひ一度ご内覧ください!
この物件は 美容室・床屋 の居抜き物件です。
現状の設備が残されたまま取引されるため、初期費用を抑え速やかに事業を開始できるメリットがあります。
| 賃料・費用 |
11万円
(+管理費等 -円)
坪単価:約3,932円/坪
礼10万円仲11万円
|
|---|---|
| 専有面積 | 92.52m² (27.98坪) |
| 住所 | 北海道函館市花園町37-5 |
| 交通 | 深堀町駅(徒歩21分)|柏木町駅(徒歩26分)道順を見る |
| 階/階建 | 1階 / 2階建 |
| 築年月 | 築21年(2004年9月) |
| 駐車場 |
あり 駐車可能台数:3台
|
空室確認、見学、詳細を知りたい方はこちら!
お電話の際は「連合隊の物件」とお伝えください。
新着 情報掲載期限:あと26日(更新日 2025/12/6)
- 物件写真・概要
- 周辺地図
-
空室確認、見学、詳細を知りたい方はこちら!
おすすめポイント
- 駐車2台以上可
- 造作譲渡料無料
- 出店するなら…この業種がおすすめ!
- 飲食全般(重飲食含む)

- 喫茶・カフェ(軽飲食)

- バー・クラブ・スナック

- 小売・物販

- 美容・健康・介護

- 医療

- 教育・スクール

- 事務所

- アミューズメント

※出店不可の業種:重飲食(軽飲食は相談可)、水商売、アミューズメント、飲食全般
交通色がついているアイコンをクリックすると、本物件までの道順を見ることができます。
物件概要
所在階/建物の階建 1階 / 地上2階建 主要採光面 構造 鉄骨造 間取り 契約期間 3年間 権利金 住宅保険 出店推奨業種 美容・健康・介護 出店不可業種 重飲食(軽飲食は相談可)、水商売、アミューズメント、飲食全般 居抜き情報 [美容室・床屋] の居抜き造作譲渡料 無料 用途地域 - 第2種中高層住居専用地域(建ぺい率:60% / 容積率:200%)
引渡し 相談 管理人 取引態様 仲介 物件No 設備・特徴 - 照明器具付
- 給排水設備
- エアコン付
備考 契約には保証会社との契約が必要です。初回保証料 賃料の150%、年間保証料 賃料の10%、月額口座振替手数料 440円。室内の設備に関しては残置機器扱いとなり、修理・交換等の費用は借主負担となります。 主な周辺施設色がついているアイコンをクリックすると、本物件までの道順を見ることができます。
-
ホームページはこちら
北海道知事 石狩(3) 第7934号
(株)常口アトム 函館支店〒041-0806
TEL:0138-85-8306(函館支店)
TEL:0138-54-7740(函館五稜郭店)
FAX:0138-85-8320
営業時間:10:00~18:30
定休日:毎週 水曜
※連合隊は物件情報の精度向上に努めています:「物件情報に誤りがある」「成約済みである」などお気付きの点がございましたらこちらよりご連絡ください。
写真枚数:10枚
函館市内及び市内近郊の賃貸物件、商業テナント及び売買物件をメインに取扱をしております。
函館市内及び市内近郊の賃貸物件・売買物件・商業物件をメインに取扱をしております。売買物件は査定も行っております。又、弊社では賃貸客付・賃貸管理も行っておりますので、不動産全般お気軽にご相談ください!