日乃出町デイサービス向けテナント
ここに注目!【賃料改定しました!】デイサービスセンターの居抜きのテナント募集になります。バリアフリーやスプリンクラー、消防設備など一式揃っています。内観写真を掲載しましたので、ご確認ください。もちろん、デイサービスに限らず、診療所など介護系や医療系のご利用につきましてもご相談ください。内覧ご希望の際は、当社までご連絡ください。
| 賃料・費用 |
33万円
(+管理費等 -円)
坪単価:約4,725円/坪
敷30万円礼33万円(1ヶ月)仲33万円
|
|---|---|
| 専有面積 | 230.91m² (69.85坪) |
| 住所 | 北海道函館市日乃出町22-36 |
| 交通 | 昭和橋駅(徒歩21分)|堀川町駅(徒歩21分)道順を見る |
| 階/階建 | 1階 / 5階建 |
| 築年月 | 築25年(2000年6月) |
| 駐車場 |
あり 駐車可能台数:3台
|
空室確認、見学、詳細を知りたい方はこちら!
お電話の際は「連合隊の物件」とお伝えください。
情報掲載期限:あと22日(更新日 2026/4/23)
- 物件写真・概要
- 周辺地図
-
空室確認、見学、詳細を知りたい方はこちら!
おすすめポイント
- 駐車2台以上可
- 男女別トイレ
- エアコン付
交通色がついているアイコンをクリックすると、本物件までの道順を見ることができます。
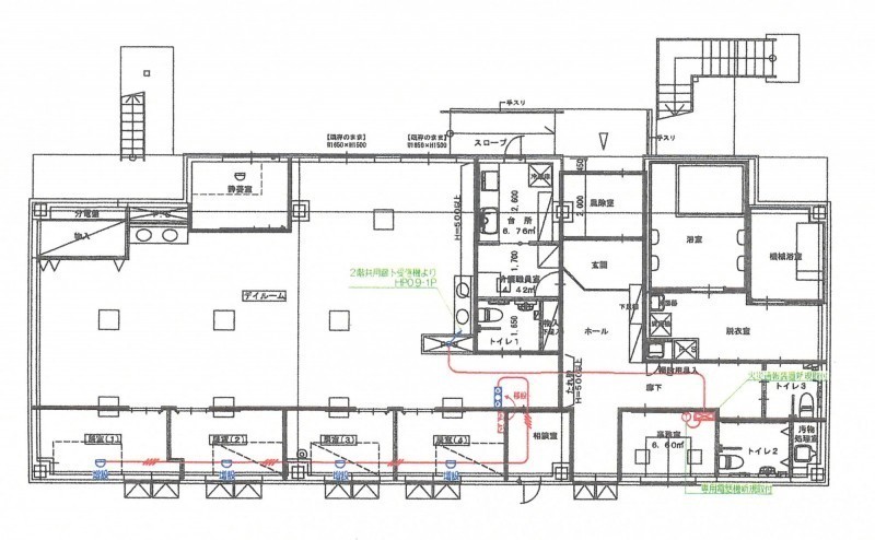
物件概要
所在階/建物の階建 1階 / 地上5階建 主要採光面 構造 鉄骨造 間取り 契約期間 2年間 権利金 住宅保険 出店推奨業種 出店不可業種 用途地域 - 準工業地域(建ぺい率:60% / 容積率:200%)
引渡し 相談 管理人 取引態様 仲介 物件No 設備・特徴 - 照明器具付
- ガス設備
- 給排水設備
- エアコン付
- 個別空調
- 男女別トイレ
備考 備品関係につきましては、個別でご相談を承ります。契約には保証会社との契約が必要です。初回保証料 賃料の150%、年間保証料 賃料の10%、月額口座振替手数料 440円がかかります。 主な周辺施設色がついているアイコンをクリックすると、本物件までの道順を見ることができます。
-
ホームページはこちら
北海道知事 石狩(3) 第7934号
(株)常口アトム 函館支店〒041-0806
TEL:0138-85-8306(函館支店)
TEL:0138-54-7740(函館五稜郭店)
FAX:0138-85-8320
営業時間:10:00~18:30
定休日:毎週 水曜
- 加入団体
- (公社)北海道宅地建物取引業協会
- 保証協会
- (公社)全国宅地建物取引業保証協会
※連合隊は物件情報の精度向上に努めています:「物件情報に誤りがある」「成約済みである」などお気付きの点がございましたらこちらよりご連絡ください。
写真枚数:20枚
赤十字病院
函館中央郵便局
函館市役所
函館市内及び市内近郊の賃貸物件、商業テナント及び売買物件をメインに取扱をしております。
函館市内及び市内近郊の賃貸物件・売買物件・商業物件をメインに取扱をしております。売買物件は査定も行っております。又、弊社では賃貸客付・賃貸管理も行っておりますので、不動産全般お気軽にご相談ください!