Central Cliff (セントラルクリフ)【2階28.7坪】
ここに注目!札幌駅南口エリアの2階28.7坪のテナントが募集となりました!業種は幅広く募集しております。ご相談くださいませ!【本物件は入札形式で5月20日までの受付となります。6月1日を目途に貸主様にて選定となります。】 業種・条件などお気軽にご相談ください! 【土日祝も営業しております】
この物件の契約期間は 2046年12月までです。
定期借家物件は、賃貸借契約期間満了後、原則として契約の更新ができない物件です。再契約の可否については不動産会社にお問合せください。
| 賃料・費用 |
59万9,830円
(+管理費等 9万4,710円)
坪単価:約8,400円/坪
敷654万3,600円礼なし仲59万9,830円
|
|---|---|
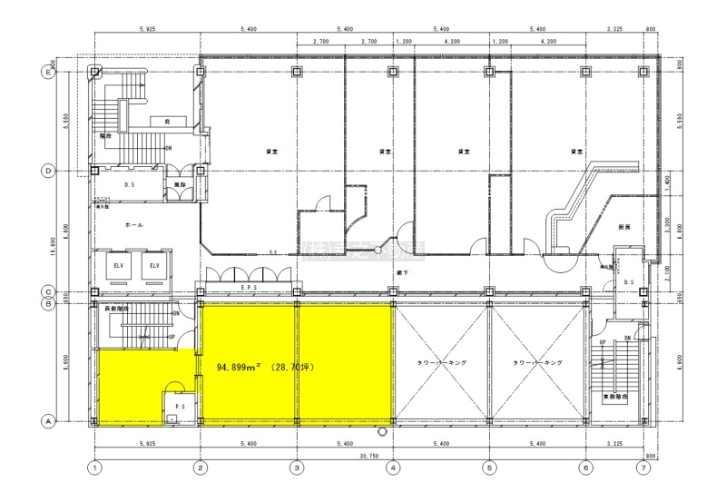
| 専有面積 | 236.08m² (71.41坪) |
| 住所 | 北海道札幌市中央区北三条西2丁目1-13 |
| 交通 | 札幌駅(徒歩6分)|大通駅(徒歩10分)|西4丁目駅(徒歩12分)|バスセンター前駅(徒歩14分)|北12条駅(徒歩16分)道順を見る |
| 階/階建 | 路面 / 8階建(地下1階) |
| 築年月 | 築42年(1983年10月) |
| 駐車場 |
【WEB面談可】
空室確認、見学、詳細を知りたい方はこちら!
お電話の際は「連合隊の物件」とお伝えください。
情報掲載期限:あと19日(更新日 2026/4/18)
- 物件写真・概要
- 周辺地図
-
【WEB面談可】
空室確認、見学、詳細を知りたい方はこちら!おすすめポイント
- 路面店
- 複数路線利用可
- 駅前立地
- 幹線道路沿い
- スケルトン
- デザイナーズ
- エアコン付
- 24時間セキュリティー
- 出店するなら…この業種がおすすめ!
- 飲食全般(重飲食含む)

- 喫茶・カフェ(軽飲食)

- バー・クラブ・スナック

- 小売・物販

- 美容・健康・介護

- 医療

- 教育・スクール

- 事務所

- アミューズメント

交通色がついているアイコンをクリックすると、本物件までの道順を見ることができます。
- 札幌駅札幌市営地下鉄南北線、札幌市営地下鉄東豊線、JR札沼線、JR千歳線、JR函館本線徒歩6分(約438m)
- 大通駅札幌市営地下鉄南北線、札幌市営地下鉄東豊線、札幌市営地下鉄東西線徒歩10分(約721m)
- 西4丁目駅札幌市電山鼻線徒歩12分(約946m)
- バスセンター前駅札幌市営地下鉄東西線徒歩14分(約1.2km)
- 北12条駅札幌市営地下鉄南北線徒歩16分(約1.3km)
物件概要
所在階/建物の階建 2階(B) / 地上8階 地下1階建 主要採光面 構造 鉄骨鉄筋コンクリート(SRC)造 間取り 契約期間 定期借家(2046年12月まで) 権利金 住宅保険 出店推奨業種 飲食全般(重飲食含む)、小売・物販、医療 出店不可業種 その他費用 毎月の費用 - 看板料:2万2,000円
一時金 - 初回保証料(駐車場を借りない場合):71万6,540円
引渡し 相談 管理人 取引態様 仲介 物件No 設備・特徴 - 幹線道路沿い
- 駅前立地
- 複数路線利用可
- デザイナーズ
- 前面ガラス張り
- スケルトン
- 路面店
- エアコン付
- 24時間セキュリティー
- 給排水設備
- 男女別トイレ(共用部)
備考 本物件の申し込みは、「2026/5/20まで」に届いた申込書の中から、賃貸人が、賃料・契約期間・業種・交渉事項等を考慮し、賃借人を決定します。概ね2026/6/1までに選考結果をお知らせいたします。現在区画新設工事中であるため、電気料等の請求方法については、工事完了後に変更になる場合があることがございます。貸室内にお手洗いを造作していただく必要があります。 主な周辺施設色がついているアイコンをクリックすると、本物件までの道順を見ることができます。
-
ホームページはこちら北海道知事 石狩(1) 第9236号
(株)幸之不動産 【WEB面談可】
※連合隊は物件情報の精度向上に努めています:「物件情報に誤りがある」「成約済みである」などお気付きの点がございましたらこちらよりご連絡ください。
写真枚数:15枚