アルファ千歳駅前ビル【5階80坪】
ここに注目!JR千歳駅徒歩50mほどの新築オフィス物件5階分割80坪区画です!契約期間:定期借家3年~。現在の募集区画は13坪、41坪、52坪、80坪、146坪となっております。※区画分割、増床もご相談ください!お気軽にお問合せ下さいませ! 【土日祝も営業しております!】
この物件の契約期間は 3年間です。
定期借家物件は、賃貸借契約期間満了後、原則として契約の更新ができない物件です。再契約の可否については不動産会社にお問合せください。
| 賃料・費用 |
150万2,908円
(+管理費等 17万6,792円)
坪単価:約1.9万円/坪
敷819万7,680円礼なし仲150万2,908円
|
|---|---|
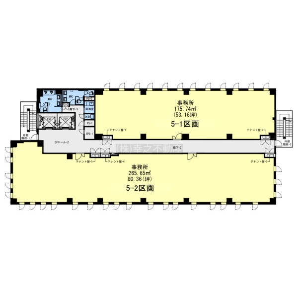
| 専有面積 | 265.65m² (80.35坪) |
| 住所 | 北海道千歳市末広6丁目3-6 |
| 交通 | 千歳駅(徒歩1分)|南千歳駅(徒歩38分)|長都駅(徒歩48分)|サッポロビール庭園駅(徒歩87分)|新千歳空港駅(徒歩98分)道順を見る |
| 階/階建 | 5階 / 7階建 |
| 築年月 | 建築中(2026年5月完成予定) |
| 駐車場 |
あり (1万6,500円/台) 駐車可能台数:14台
1台16,500円~22,000円(税込)、契約台数相談 |
【WEB面談可】
空室確認、見学、詳細を知りたい方はこちら!
お電話の際は「連合隊の物件」とお伝えください。
情報掲載期限:あと18日(更新日 2026/2/15)
- 物件写真・概要
- 周辺地図
-
【WEB面談可】
空室確認、見学、詳細を知りたい方はこちら!おすすめポイント
- 駅徒歩1分以内
- 駅前立地
- 駐車2台以上可
- デザイナーズ
- エアコン付
- OAフロア
交通色がついているアイコンをクリックすると、本物件までの道順を見ることができます。
- 千歳駅JR千歳線駅近!徒歩1分(約80m)
- 南千歳駅JR石勝線、JR千歳線徒歩38分(約3km)
- 長都駅JR千歳線徒歩48分(約3.8km)
- サッポロビール庭園駅JR千歳線徒歩87分(約7km)
- 新千歳空港駅JR千歳線徒歩98分(約7.8km)
物件概要
所在階/建物の階建 5階(2) / 地上7階建 主要採光面 構造 鉄骨造 間取り 契約期間 定期借家(3年間) 権利金 住宅保険 その他費用 一時金 - 初回保証料:167万9,700円
引渡し 相談(2026年5月完成予定) 管理人 取引態様 仲介 物件No 設備・特徴 - 駅前立地
- エレベーター
- デザイナーズ
- OAフロア
- 照明器具付
- エアコン付
- 男女別トイレ(共用部)
備考 定期借家3年~、階数の指定ができない場合があります。区画増床・分割もご相談ください。保証会社利用の場合があります 主な周辺施設色がついているアイコンをクリックすると、本物件までの道順を見ることができます。
-
ホームページはこちら北海道知事 石狩(1) 第9236号
(株)幸之不動産 【WEB面談可】
※連合隊は物件情報の精度向上に努めています:「物件情報に誤りがある」「成約済みである」などお気付きの点がございましたらこちらよりご連絡ください。
写真枚数:7枚
5F分割パターン
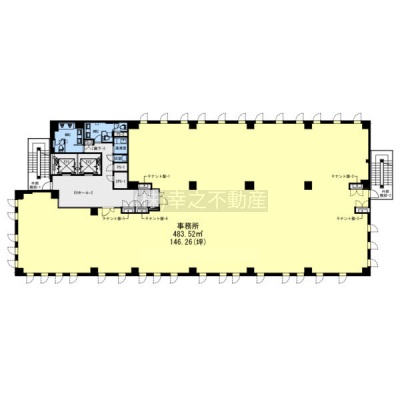
4Fワンフロア
6F分割区画
7F分割区画