ターミナルハイツ白石【2階店舗利用可】
ここに注目!地下鉄白石駅直結の2階21坪区画が募集になりました!前業種は不動産仲介店舗です。業種ご相談ください!※管理組合の業種承諾も必要になる場合があります。 1階エントランスへ看板掲示も相談可。 内覧可能です。お気軽にお問合せ下さい! 【土日祝も営業しております!】
この物件は オフィス の居抜き物件です。
現状の設備が残されたまま取引されるため、初期費用を抑え速やかに事業を開始できるメリットがあります。
| 賃料・費用 |
27万5,000円
(+管理費等 なし)
坪単価:約1.3万円/坪
敷150万円礼なし仲27万5,000円
|
|---|---|
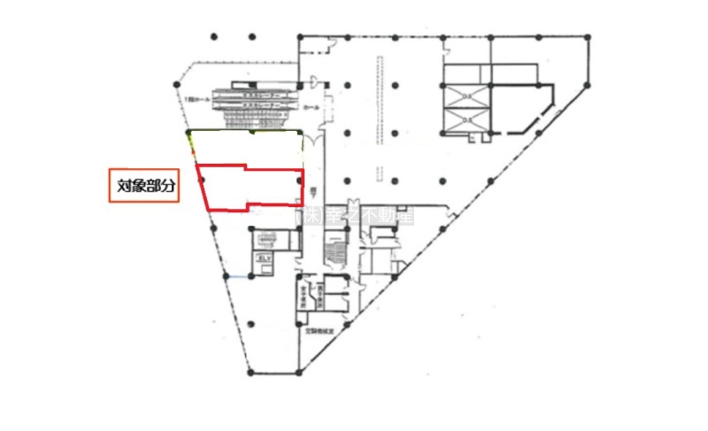
| 専有面積 | 69.82m² (21.12坪) |
| 住所 | 北海道札幌市白石区東札幌二条6丁目5-1 |
| 交通 | 白石駅(徒歩1分)|東札幌駅(徒歩14分)|南郷7丁目駅(徒歩20分)|豊平公園駅(徒歩27分)|白石駅(徒歩28分)道順を見る |
| 階/階建 | 2階 / 9階建(地下2階) |
| 築年月 | 築49年(1976年3月) |
| 駐車場 |
なし
|
【WEB面談可】
空室確認、見学、詳細を知りたい方はこちら!
お電話の際は「連合隊の物件」とお伝えください。
情報掲載期限:あと21日(更新日 2026/2/18)
- 物件写真・概要
- 周辺地図
-
【WEB面談可】
空室確認、見学、詳細を知りたい方はこちら!おすすめポイント
- 駅徒歩1分以内
- 複数路線利用可
- 駅前立地
- 幹線道路沿い
- 造作譲渡料無料
- デザイナーズ
- エアコン付
- 出店するなら…この業種がおすすめ!
- 飲食全般(重飲食含む)

- 喫茶・カフェ(軽飲食)

- バー・クラブ・スナック

- 小売・物販

- 美容・健康・介護

- 医療

- 教育・スクール

- 事務所

- アミューズメント

交通色がついているアイコンをクリックすると、本物件までの道順を見ることができます。
- 白石駅札幌市営地下鉄東西線駅近!徒歩1分(約50m)
- 東札幌駅札幌市営地下鉄東西線徒歩14分(約1.1km)
- 南郷7丁目駅札幌市営地下鉄東西線徒歩20分(約1.6km)
- 豊平公園駅札幌市営地下鉄東豊線徒歩27分(約2.2km)
- 白石駅JR千歳線、JR函館本線徒歩28分(約2.2km)
物件概要
所在階/建物の階建 2階 / 地上9階 地下2階建 主要採光面 構造 鉄骨鉄筋コンクリート(SRC)造 間取り 契約期間 3年間 権利金 住宅保険 出店推奨業種 美容・健康・介護、教育・スクール、事務所 出店不可業種 居抜き情報 [オフィス] の居抜き造作譲渡料 無料 その他費用 毎月の費用 - 暖房料(10月~5月):3万2,880円
一時金 - 初回保証料:27万5,000円
引渡し 相談(2026年1月20日退去予定) 管理人 取引態様 仲介 物件No 設備・特徴 - 複数路線利用可
- 駅前立地
- 幹線道路沿い
- デザイナーズ
- エレベーター
- エアコン付
- ガス暖房
- 男女別トイレ(共用部)
備考 現状渡し、保証会社利用必須、業種相談、1階エントランス部分の看板は管理組合の承認が必要です。(無料)、飲食業は不可ではありませんが、管理組合の判断となります。 主な周辺施設色がついているアイコンをクリックすると、本物件までの道順を見ることができます。
-
ホームページはこちら北海道知事 石狩(1) 第9236号
(株)幸之不動産 【WEB面談可】
※連合隊は物件情報の精度向上に努めています:「物件情報に誤りがある」「成約済みである」などお気付きの点がございましたらこちらよりご連絡ください。
写真枚数:17枚