第1三雄ビル【5階13坪】
ここに注目!【6月1日入居可】★狸小路~大通エリア★小規模店舗・事務所向き5階13坪テナント★事務所・美容系業種にオススメの物件です!※水道を使用する業種・シェアサロンはNGです。区画内に給排水設備の引込はありません。★【掲載写真は同タイプの別区画の参考写真です】給湯室、トイレは共用です。エレベーターあり★事前調整で内覧可能です。人気物件ですので気になる方はお早めにお問合せ下さいませ! ★【土日祝も営業しています】
| 賃料・費用 |
18万5,900円
(+管理費等 2万8,600円)
坪単価:約1.4万円/坪
敷なし礼なし仲18万5,900円
保証金:101万4,000円
|
|---|---|
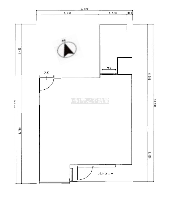
| 専有面積 | 42.98m² (13坪) |
| 住所 | 北海道札幌市中央区南二条西5丁目31-5 |
| 交通 | バスセンター前駅(徒歩15分)|西11丁目駅(徒歩12分)|すすきの駅(徒歩6分)|西4丁目駅(徒歩5分)|大通駅(徒歩3分)道順を見る |
| 階/階建 | 5階 / 10階建(地下1階) |
| 築年月 | 築37年(1988年11月) |
| 駐車場 |
なし
|
【WEB面談可】
空室確認、見学、詳細を知りたい方はこちら!
お電話の際は「連合隊の物件」とお伝えください。
情報掲載期限:あと24日(更新日 2026/1/14)
- 物件写真・概要
- 周辺地図
-
【WEB面談可】
空室確認、見学、詳細を知りたい方はこちら!おすすめポイント
- 駅徒歩3分以内
- 複数路線利用可
- デザイナーズ
- エアコン付
- 24時間セキュリティー
- 敷金・礼金0円
- 出店するなら…この業種がおすすめ!
- 飲食全般(重飲食含む)

- 喫茶・カフェ(軽飲食)

- バー・クラブ・スナック

- 小売・物販

- 美容・健康・介護

- 医療

- 教育・スクール

- 事務所

- アミューズメント

交通色がついているアイコンをクリックすると、本物件までの道順を見ることができます。
- バスセンター前駅札幌市営地下鉄東西線徒歩15分(約1.2km)
- 西11丁目駅札幌市電山鼻線、札幌市営地下鉄東西線徒歩12分(約912m)
- すすきの駅札幌市営地下鉄南北線、札幌市電山鼻線徒歩6分(約475m)
- 西4丁目駅札幌市電山鼻線徒歩5分(約344m)
- 大通駅札幌市営地下鉄南北線、札幌市営地下鉄東豊線、札幌市営地下鉄東西線駅近!徒歩3分(約240m)
物件概要
所在階/建物の階建 5階(510) / 地上10階 地下1階建 主要採光面 構造 鉄筋コンクリート(RC)造 間取り 契約期間 3年間 権利金 住宅保険 出店推奨業種 美容・健康・介護、教育・スクール、事務所 出店不可業種 その他費用 毎月の費用 - 電気基本料:1万1,000円
- 水道基本料:2,200円
一時金 - 初回保証料:34万1,550円
引渡し 相談(2026年6月1日入居可) 管理人 取引態様 仲介 物件No 設備・特徴 - 複数路線利用可
- エレベーター
- デザイナーズ
- エアコン付
- 男女別トイレ(共用部)
- 24時間セキュリティー
備考 保証会社利用必須、業種相談(区画内に水道を使用する業種・シェアサロンはNGです) 主な周辺施設色がついているアイコンをクリックすると、本物件までの道順を見ることができます。
-
ホームページはこちら北海道知事 石狩(1) 第9236号
(株)幸之不動産 【WEB面談可】
※連合隊は物件情報の精度向上に努めています:「物件情報に誤りがある」「成約済みである」などお気付きの点がございましたらこちらよりご連絡ください。
写真枚数:9枚
別区画の写真です
別区画の写真です
別区画の写真です