F-60【事務所 118坪】
ここに注目!大通公園沿いのデザイナーズオフィス物件に退去予定が出ました!【5階ワンフロア118坪】オシャレな共用ラウンジあり! 普通車・ハイルーフ車の駐車場契約可。2026年5月中旬退去予定です。お気軽にお問合せくださいませ! 【土日祝も営業しております!】
この物件の契約期間は 3年間です。
定期借家物件は、賃貸借契約期間満了後、原則として契約の更新ができない物件です。再契約の可否については不動産会社にお問合せください。
| 賃料・費用 |
221万2,210円
(+管理費等 39万390円)
坪単価:約1.9万円/坪
敷なし礼なし仲221万2,210円
保証金:2,413万3,200円
|
|---|---|
| 専有面積 | 391.08m² (118.3坪) |
| 住所 | 北海道札幌市中央区大通西8丁目1-8 |
| 交通 | 西8丁目駅(徒歩3分)|西11丁目駅(徒歩6分)|大通駅(徒歩10分)|すすきの駅(徒歩13分)|さっぽろ駅(徒歩16分)道順を見る |
| 階/階建 | 5階 / 9階建 |
| 築年月 | 築15年(2010年4月) |
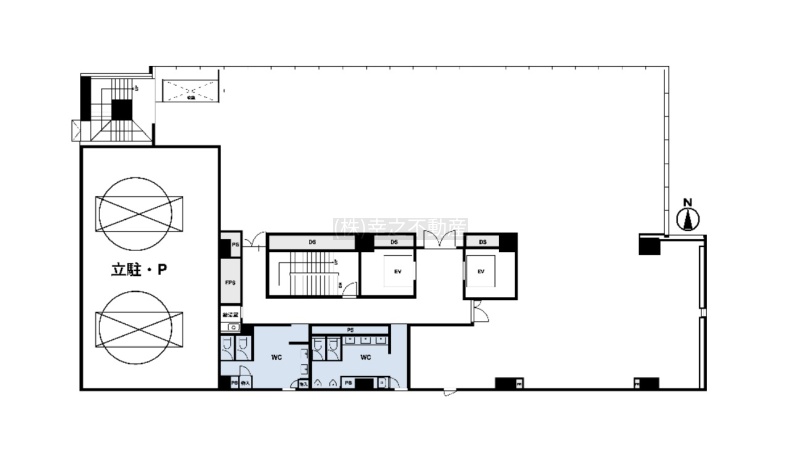
| 駐車場 |
あり (3万3,000円/台)
普通車4台・ハイルーフ車2台空き有 |
【WEB面談可】
空室確認、見学、詳細を知りたい方はこちら!
お電話の際は「連合隊の物件」とお伝えください。
情報掲載期限:あと20日(更新日 2025/12/26)
- 物件写真・概要
- 周辺地図
-
【WEB面談可】
空室確認、見学、詳細を知りたい方はこちら!おすすめポイント
- 駅徒歩3分以内
- 複数路線利用可
- 駐車場あり
- デザイナーズ
- エアコン付
- OAフロア
- 敷金・礼金0円
交通色がついているアイコンをクリックすると、本物件までの道順を見ることができます。
- 西8丁目駅札幌市電山鼻線駅近!徒歩3分(約182m)
- 西11丁目駅札幌市電山鼻線、札幌市営地下鉄東西線徒歩6分(約451m)
- 大通駅札幌市営地下鉄南北線、札幌市営地下鉄東豊線、札幌市営地下鉄東西線徒歩10分(約732m)
- すすきの駅札幌市営地下鉄南北線、札幌市電山鼻線徒歩13分(約988m)
- さっぽろ駅札幌市営地下鉄南北線、札幌市営地下鉄東豊線、JR札沼線、JR千歳線、JR函館本線徒歩16分(約1.3km)
物件概要
所在階/建物の階建 5階 / 地上9階建 主要採光面 構造 鉄骨鉄筋コンクリート(SRC)造 間取り 契約期間 定期借家(3年間) 更新料/更新手数料 2万2,000円 権利金 住宅保険 その他費用 毎月の費用 - 電気基本料(+使用料):7万980円
一時金 - 看板書替料:33万3,000円
- 初回保証料:267万3,580円
引渡し 相談(2026年5月11日退去予定) 管理人 取引態様 仲介 物件No 設備・特徴 - 複数路線利用可
- エレベーター
- デザイナーズ
- エアコン付
- OAフロア
- 前面ガラス張り
- 男女別トイレ(共用部)
備考 保証会社利用必須、定期借家3年、床:OA(タイルカーペット仕様)/壁:EP塗装/天井:ユニット式システム天井/天井高2,800mm、個別空調、照明LED(予定)/各フロア随時改修予定/立体駐車場82台(内12台ハイルーフ予定 主な周辺施設色がついているアイコンをクリックすると、本物件までの道順を見ることができます。
-
ホームページはこちら北海道知事 石狩(1) 第9236号
(株)幸之不動産 【WEB面談可】
※連合隊は物件情報の精度向上に努めています:「物件情報に誤りがある」「成約済みである」などお気付きの点がございましたらこちらよりご連絡ください。
写真枚数:9枚
デスク・チェアはイメージです
デスク・チェアはイメージです
9階ラウンジ
1階エントランス