コルテナⅡ-D
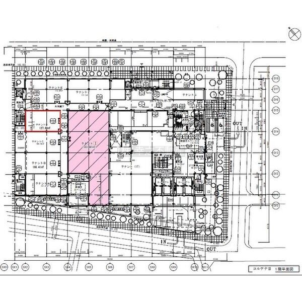
ここに注目!【琴似エリア】127.69㎡の貸店舗・貸事務所★JR函館本線「琴似」駅から徒歩8分、地下鉄東西線「琴似」駅から徒歩11分で複数路線利用可★近隣月極駐車場あり★周辺にはショッピングセンターやスーパー、コンビニも充実で利便性高◎ 業種・条件などお気軽にご相談ください! 【土日祝も営業しております!】 内覧可能です。お気軽にお問合せ下さい!
この物件の契約期間は 5年間です。
定期借家物件は、賃貸借契約期間満了後、原則として契約の更新ができない物件です。再契約の可否については不動産会社にお問合せください。
| 賃料・費用 |
38万2,437円
(+管理費等 8万4,986円)
坪単価:約9,903円/坪
敷208万6,020円仲38万2,437円
|
|---|---|
| 専有面積 | 127.69m² (38.62坪) |
| 住所 | 北海道札幌市西区琴似四条2丁目1-2 |
| 交通 | 琴似駅(徒歩8分)|琴似駅(徒歩11分)|発寒中央駅(徒歩16分)|発寒南駅(徒歩18分)|八軒駅(徒歩25分)道順を見る |
| 階/階建 | 1階 / 4階建 |
| 築年月 | |
| 駐車場 |
近隣月極駐車場
台数等都度確認 |
【WEB面談可】
空室確認、見学、詳細を知りたい方はこちら!
お電話の際は「連合隊の物件」とお伝えください。
新着 情報掲載期限:あと27日(更新日 2025/12/24)
- 物件写真・概要
- 周辺地図
-
【WEB面談可】
空室確認、見学、詳細を知りたい方はこちら!おすすめポイント
- 即入居可
- 複数路線利用可
- デザイナーズ
- 出店するなら…この業種がおすすめ!
- 飲食全般(重飲食含む)

- 喫茶・カフェ(軽飲食)

- バー・クラブ・スナック

- 小売・物販

- 美容・健康・介護

- 医療

- 教育・スクール

- 事務所

- アミューズメント

交通色がついているアイコンをクリックすると、本物件までの道順を見ることができます。
- 琴似駅JR函館本線徒歩8分(約603m)
- 琴似駅札幌市営地下鉄東西線徒歩11分(約843m)
- 発寒中央駅JR函館本線徒歩16分(約1.3km)
- 発寒南駅札幌市営地下鉄東西線徒歩18分(約1.4km)
- 八軒駅JR札沼線徒歩25分(約2km)
物件概要
所在階/建物の階建 1階(1T-D) / 地上4階建 主要採光面 構造 鉄骨造 間取り 契約期間 定期借家(5年間) 権利金 住宅保険 出店推奨業種 医療、教育・スクール、事務所 出店不可業種 その他費用 一時金 - 初回保証料:46万7,423円
引渡し 即時 管理人 取引態様 仲介 物件No 設備・特徴 - 複数路線利用可
- エレベーター
- デザイナーズ
- 男女別トイレ(共用部)
備考 看板製作費実費 主な周辺施設色がついているアイコンをクリックすると、本物件までの道順を見ることができます。
-
ホームページはこちら北海道知事 石狩(1) 第9236号
(株)幸之不動産 【WEB面談可】
※連合隊は物件情報の精度向上に努めています:「物件情報に誤りがある」「成約済みである」などお気付きの点がございましたらこちらよりご連絡ください。
写真枚数:6枚