フラーテ札幌メゾネット区画【事務所限定】
ここに注目!【2026年3月に一部クロスとタイルカーペット貼り替えました!大変キレイな内装状況です!】【専任物件】大通~狸小路エリアのメゾネットタイプの事務所物件32坪!【1階:14.8坪、2階:17.2坪】事務所限定募集です。※不動産業の事務所で使用していました。一部のクロスとタイルカーペットを貼り替えました!【定期借家3年契約・再契約可】内覧可能です。諸条件ご相談下さい。お問合わせお待ちしております!【仲介業者様もお気軽にお問合せくださいませ】
この物件の契約期間は 3年間です。
定期借家物件は、賃貸借契約期間満了後、原則として契約の更新ができない物件です。再契約の可否については不動産会社にお問合せください。
| 賃料・費用 |
24万2,000円
(+管理費等 なし)
坪単価:約7,535円/坪
敷44万円礼なし仲24万2,000円
|
|---|---|
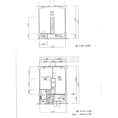
| 専有面積 | 106.2m² (32.12坪) |
| 住所 | 北海道札幌市中央区南二条東1丁目1-12 |
| 交通 | 大通駅(徒歩6分)|バスセンター前駅(徒歩6分)|豊水すすきの駅(徒歩8分)|すすきの駅(徒歩10分)|さっぽろ駅(徒歩17分)道順を見る |
| 階/階建 | 11階 / 12階建(地下1階) |
| 築年月 | 築46年(1979年9月) |
| 駐車場 |
なし
|
【WEB面談可】
空室確認、見学、詳細を知りたい方はこちら!
お電話の際は「連合隊の物件」とお伝えください。
情報掲載期限:あと21日(更新日 2026/3/26)
- 物件写真・概要
- 周辺地図
-
【WEB面談可】
空室確認、見学、詳細を知りたい方はこちら!おすすめポイント
- 即入居可
- 複数路線利用可
- 駅前立地
- デザイナーズ
- エアコン付
交通色がついているアイコンをクリックすると、本物件までの道順を見ることができます。
- 大通駅札幌市営地下鉄南北線、札幌市営地下鉄東豊線、札幌市営地下鉄東西線徒歩6分(約422m)
- バスセンター前駅札幌市営地下鉄東西線徒歩6分(約444m)
- 豊水すすきの駅札幌市営地下鉄東豊線徒歩8分(約611m)
- すすきの駅札幌市営地下鉄南北線、札幌市電山鼻線徒歩10分(約743m)
- さっぽろ駅札幌市営地下鉄南北線、札幌市営地下鉄東豊線、JR札沼線、JR千歳線、JR函館本線徒歩17分(約1.4km)
物件概要
所在階/建物の階建 11階(11階・12階メゾネット) / 地上12階 地下1階建 主要採光面 構造 鉄筋コンクリート(RC)造 間取り 契約期間 定期借家(3年間) 更新料/更新手数料 なし / 2万7,500円 権利金 住宅保険 用途地域 - 商業地域
その他費用 一時金 - 初回保証料:24万2,000円
引渡し 即時 管理人 日勤 取引態様 仲介 物件No 設備・特徴 - 複数路線利用可
- 駅前立地
- 幹線道路沿い
- 商店街に面す
- エレベーター
- デザイナーズ
- 照明器具付
- 給排水設備
- エアコン付
- 灯油暖房
備考 事務所限定利用、定期借家契約・再契約可、保証会社利用必須、ウインドエアコン設置あり、諸条件ご相談ください!【所有様への直接のお問合せはお控え下さい。】 主な周辺施設色がついているアイコンをクリックすると、本物件までの道順を見ることができます。
-
ホームページはこちら北海道知事 石狩(1) 第9236号
(株)幸之不動産 【WEB面談可】
※連合隊は物件情報の精度向上に努めています:「物件情報に誤りがある」「成約済みである」などお気付きの点がございましたらこちらよりご連絡ください。
写真枚数:30枚